BTC: 7.89473684
ETH: 241.93548387
Cooling
• Central Air
Lot
• Lot: 0.67 Acres
Other Property Information
• Parcel Number: 3240189
• Zoning: 02T4
Type and style
• Property Type: Commercial Sale
• Property Sub Type: Retail
Utility
• Public
Other financial information
• Annual tax amount: $12,576
Source details
• MLS ID: O6365620
Other facts
• Construction Materials: Block / Brick
• Foundation Details: Slab
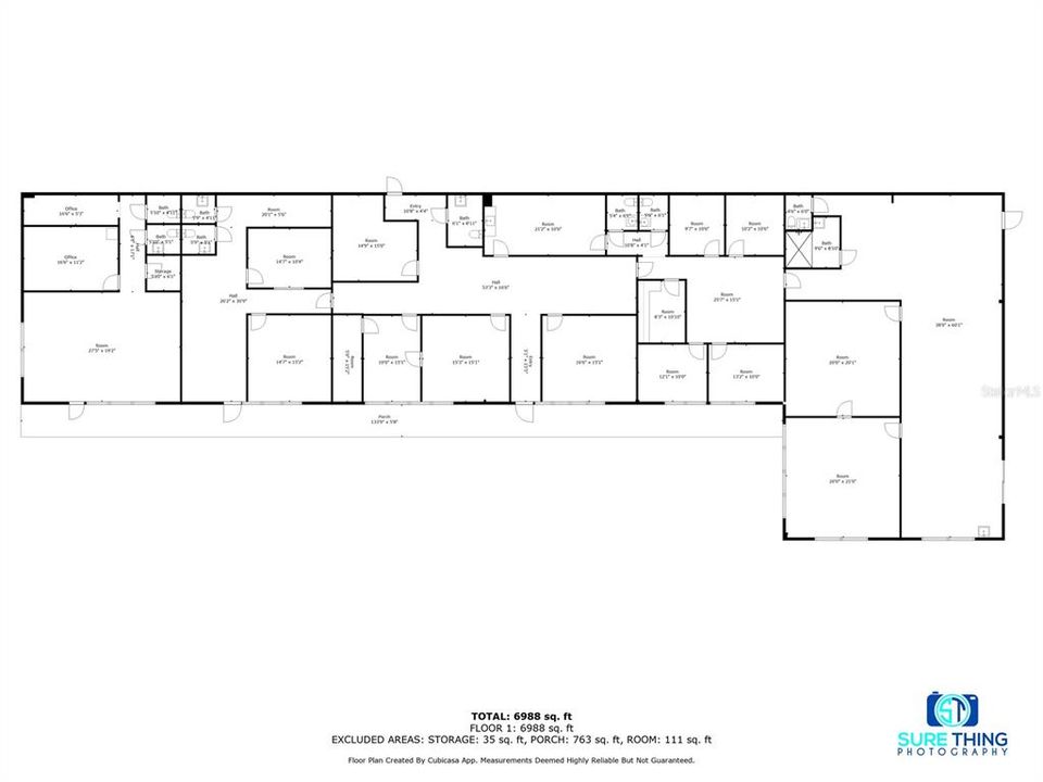
• Living Area: 7492
• Water Source: Public
• Lot Size Dimensions: IRR
• Subdivision Name: MASON AVE
The multiple listing information is provided by the Stellar MLS from a copyrighted compilation of listings. The compilation of listings and each individual listing are ©2026-present Stellar MLS. All Rights Reserved. The information provided is for consumers' personal, noncommercial use and may not be used for any purpose other than to identify prospective properties consumers may be interested in purchasing. All properties are subject to prior sale or withdrawal. All information provided is deemed reliable but is not guaranteed accurate, and should be independently verified. Listing courtesy of: COLDWELL BANKER REALTY