Contact
Tell us about your needs

1501 E 9TH AVENUE UNIT A & B

For Sale
$78,660

BTC: 1.17842697

ETH: 37.81730769

82 days
0 room(s)
8,226 sqft
Est. Estimated sales range: $0 - $0
$0

Overview

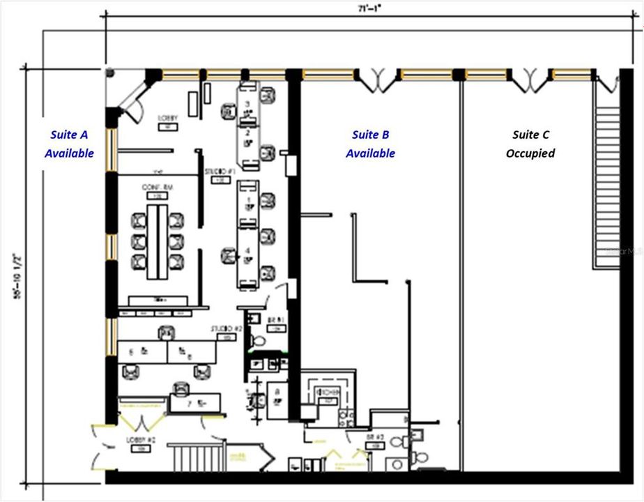
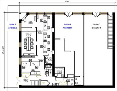
Prime corner location available for lease at the intersection of North 15th Street and East 9th Avenue. This versatile ground-floor space is currently configured as a professional office but is well-suited for use as a retail storefront. The total available square footage is 2,622 SF, divided between two suites: Suite A offers 1,586 SF including a loft, and Suite B provides 1,036 SF. The space features an attractive double-door entrance leading into a flexible floor plan with versatile office or retail options, hardwood and ceramic tile flooring, a restroom, kitchen, storage nook, and a spacious area filled with natural light. Exposed brick walls add character, and the layout is highly functional, ready for tenant improvements and immediate occupancy. This is an excellent opportunity for a start-up, expansion, or relocation in a thriving, walkable area. The property boasts outstanding visibility, prominent street signage, and easy accessibility, with an average of 2,350 vehicles passing daily. Located directly across from Hillsborough Community College, the site also benefits from heavy pedestrian traffic and is just one block north of the Trolley Streetcar Society Station (#3). It’s a short commute to Centro Ybor, numerous restaurants, shops, and established residential neighborhoods. The surrounding area is dense and demographically strong, with a one-mile radius population of 18,110, an average household income of $68,310, and nearly 9,000 households. The location also offers quick access to Downtown Tampa, the Channel District, Tampa Riverwalk, Hyde Park, and major roadways including I-275, I-4, and the Selmon Expressway.

Location

Florida TAMPA 33605 For Sale

Facts and features

Type:
Commercial Lease
Parking:
Common / Curb Parking / Lighted / Other
Year Built:
1905
Lot:
0.09 Acres
Heating:
Central
Price/sqft:
$10
Cooling:
Central Air
HOA:
No Data
All facts and features
  • Heating

    • Central

    Cooling

    • Central Air

  • Parking

    • Common

    • Curb Parking

    • Lighted

    • Other

    Property

    • Levels: One

    Lot

    • Lot: 0.09 Acres

    Other Property Information

    • Parcel Number: A18291950N00004800005.0

    • Zoning: YC-1

  • Type and style

    • Property Type: Commercial Lease

    • Property Sub Type: Retail

  • Utility

    • Electricity Available

    • Phone Available

    • Public

    • Sewer Nearby

    • Water Nearby

  • Other financial information

    • Annual tax amount: $31,677

  • Source details

    • MLS ID: TB8439241

    Other facts

    • Construction Materials: Brick / Concrete

    • Foundation Details: Slab

    • Lot Features: Corner Lot / Historic District / City Lot / Sidewalk / Special Taxing District / Street Lights

    • Direction Faces: North

    • Living Area: 8226

    • Water Source: Public

    • Subdivision Name: YBOR CITY BLK Y

Similar Homes

3013 N 48TH STREET UNIT 1/2 placeholder 3013 N 48TH STREET UNIT 1/2
47 days
For Sale
Lots/Land
$80,000
0 room(s)
3013 N 48TH STREET UNIT 1/2
830 W KENNEDY BOULEVARD placeholder 830 W KENNEDY BOULEVARD
51 days
For Sale
$55,900
0 room(s) 22,455 sqft
830 W KENNEDY BOULEVARD
DELEUIL AVE placeholder DELEUIL AVE
-$2K (2026/01/06)
For Sale
Lots/Land
$97,000
0 room(s)
DELEUIL AVE
DELEUIL AVE placeholder DELEUIL AVE
-$2K (2026/01/06)
For Sale
Lots/Land
$97,000
0 room(s)
DELEUIL AVE
DELEUIL AVE placeholder DELEUIL AVE
-$2K (2026/01/06)
For Sale
Lots/Land
$97,000
0 room(s)
DELEUIL AVE
337 S PLANT AVENUE placeholder 337 S PLANT AVENUE
-$5K (2025/10/14)
For Sale
$76,740
0 room(s) 5,036 sqft
337 S PLANT AVENUE
4002 E 12th, Tampa FL 33605 placeholder 4002 E 12th, Tampa FL 33605
96 days
For Sale
Commercial
$60,000
0 room(s)
4002 E 12th, Tampa FL 33605
3402 N 15TH STREET placeholder 3402 N 15TH STREET
120 days
For Sale
$71,940
0 room(s) 3,183 sqft
3402 N 15TH STREET

The multiple listing information is provided by the Stellar MLS from a copyrighted compilation of listings. The compilation of listings and each individual listing are ©2026-present Stellar MLS. All Rights Reserved. The information provided is for consumers' personal, noncommercial use and may not be used for any purpose other than to identify prospective properties consumers may be interested in purchasing. All properties are subject to prior sale or withdrawal. All information provided is deemed reliable but is not guaranteed accurate, and should be independently verified. Listing courtesy of: FLORIDA COMMERCIAL GROUP