Contact
Tell us about your needs

1535 E 7TH AVENUE

Commercial For Sale
$6,950,000

BTC: 73.15789474

ETH: 2,241.93548387

+$750K (2024/06/14)
1218 days
0 room(s)
7,114 sqft
Est. Estimated sales range: $0 - $0
$0

Overview

Florida Commercial Group presents a fantastic 7th Avenue purchase opportunity on the main drag of bustling Ybor City. This property offers limitless opportunities for a new owner seeking value-add real estate with a long-term multi-national anchor tenant. This purchase will include a 2-story- 7,114 SF building directly on 7th Avenue, 2 nearby parking lots one block south of the site on 16th Street and 6th & 5th Avenues- a rare find in Ybor City :: A modernized historic building that may be renovated to feature 2nd and 3rd story office/ retail :: Roof top bar or eatery may also be built out for additional income :: Current 7-Eleven tenant is on a 10 year NNN lease, call Broker for additional lease details :: Highest and Best Use: Convenience store with second story residential/ creative space, professional office, retail and or restaurant with balcony/ terrace :: Artists, Professionals or Consultants can do well here as occupying tenants :: Located at the intersection of 7th Avenue and 16th Street :: Minutes from Downtown Tampa, Channel District, Tampa River Walk, Hyde Park, Seminole Heights, Interstate 275, Interstate 4, Selmon Expressway and other major travel arteries :: Property sits 1 block south of the trolley line and is in walking distance of the Centro Ybor Trolley Station (#2) on 8th Avenue :: This area is exploding with brand new Commercial, Retail and Residential growth and is surrounded by countless development and redevelopment projects :: Neighboring businesses include: Hotel Haya, Hampton Inn and Suites, Centro Ybor, Hillsborough Community College, Ybor City Tap House, Truist Bank, Gasworx, Casa Marti, Casa Gomez, Casa Pedroso, Casa Bomberos, Tampa Bay Sun FC practice field and others etc… :: High-energy business and retail district that is frequented by local and regional visitors- a great place to invest, relocate or expand your business. Call today for additional property details.

Location

Facts and features

Type:
Commercial Sale
Parking:
No Data
Year Built:
1908
Lot:
0.09 Acres
Heating:
No Data
Price/sqft:
$977
Cooling:
Central Air
HOA:
No Data
All facts and features
  • Cooling

    • Central Air

  • Lot

    • Lot: 0.09 Acres

    Other Property Information

    • Parcel Number: A18291950N00004600001.0

    • Zoning: YC-1

  • Type and style

    • Property Type: Commercial Sale

    • Property Sub Type: Retail

  • Other financial information

    • Annual tax amount: $16,165

  • Source details

    • MLS ID: T3401081

    Other facts

    • Construction Materials: Brick

    • Foundation Details: Slab

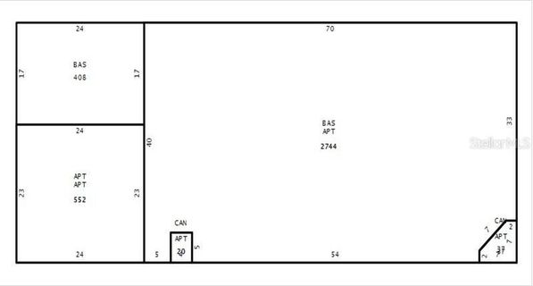
    • Living Area: 7114

    • Lot Size Dimensions: 41 x 95

    • Subdivision Name: YBOR CITY BLK Y

Similar Homes

520 N TAMPA ST UNIT 4003 placeholder 520 N TAMPA ST UNIT 4003
28 days
For Sale
Condo/Co-op
$4,999,000
3 bds 4 ba 3,715 sqft
520 N TAMPA ST UNIT 4003
520 N TAMPA ST UNIT 4201 placeholder 520 N TAMPA ST UNIT 4201
28 days
For Sale
Condo/Co-op
$5,399,000
3 bds 4 ba 3,785 sqft
520 N TAMPA ST UNIT 4201
96 ADALIA AVENUE placeholder 96 ADALIA AVENUE
51 days
For Sale
House
$4,950,000
4 bds 4 ba 4,546 sqft
96 ADALIA AVENUE
815 BAYSHORE BOULEVARD placeholder 815 BAYSHORE BOULEVARD
-$100K (2025/11/17)
For Sale
House
$5,100,000
5 bds 5 ba 5,061 sqft
815 BAYSHORE BOULEVARD
301 CASPIAN STREET placeholder 301 CASPIAN STREET
129 days
For Sale
House
$5,200,000
6 bds 6 ba 7,854 sqft
301 CASPIAN STREET
214 BLANCA AVENUE placeholder 214 BLANCA AVENUE
-$200K (2025/11/20)
For Sale
Lots/Land
$8,750,000
0 room(s)
214 BLANCA AVENUE
2011 W CLEVELAND STREET placeholder 2011 W CLEVELAND STREET
-$349K (2026/01/07)
For Sale
Commercial
$4,950,000
0 room(s) 9,680 sqft
2011 W CLEVELAND STREET
142 W PLATT STREET UNIT 1 and 2 placeholder 142 W PLATT STREET UNIT 1 and 2
233 days
For Sale
Commercial
$7,100,000
0 room(s) 10,942 sqft
142 W PLATT STREET UNIT 1 and 2

The multiple listing information is provided by the Stellar MLS from a copyrighted compilation of listings. The compilation of listings and each individual listing are ©2026-present Stellar MLS. All Rights Reserved. The information provided is for consumers' personal, noncommercial use and may not be used for any purpose other than to identify prospective properties consumers may be interested in purchasing. All properties are subject to prior sale or withdrawal. All information provided is deemed reliable but is not guaranteed accurate, and should be independently verified. Listing courtesy of: FLORIDA COMMERCIAL GROUP