Contact
Tell us about your needs

1016 HOWELL BRANCH ROAD

House For Sale
$1,836,000

BTC: 61.20000000

ETH: 918.00000000

45 days
Waterfront
4 bds
3 ba
3,142 sqft
Est. Estimated sales range: $0 - $0
$0

Overview

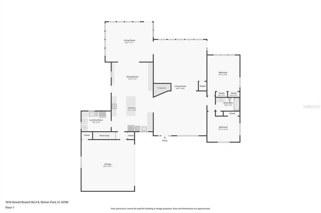
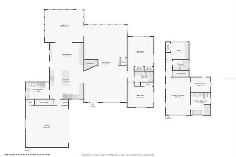
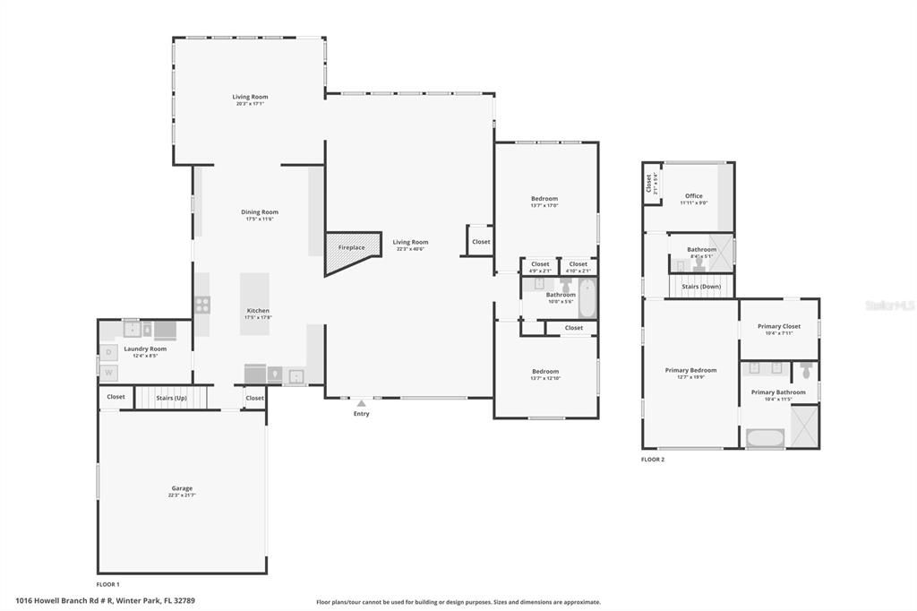
Canal Front Oasis on the Winter Park Chain of Lakes! Welcome to 1016 Howell Branch Road, where every day feels like a getaway. This beautifully reimagined 4-bedroom, 3-bath residence offers 3,142 square feet of inspired living space set amid lush, tropical landscaping — all within the best of Winter Park and Maitland. *The canal allows for full Lake Maitland and Winter Park Chain of Lakes access by powerboat. (Current owners have a 19' outboard they use to pull tubes, ski, wakeboard, quick trips to dog island and entertaining via scenic tours through the Winter Park Chain of Lakes.) Originally built in 1959 and completely renovated in 2022, this two-story retreat combines rustic charm with modern luxury. Step inside to discover an open floor plan anchored by a gas fireplace, open kitchen and dining room, warm custom woodwork, and thoughtful built-ins throughout. The renovation includes new electrical, plumbing, new kitchen and baths, engineered hardwood flooring throughout, amongst many more upgrades. The redesigned layout adds over 1,000 square feet, featuring a spacious first-floor laundry room and an all-new second story with a luxurious primary suite, a guest bedroom (currently used as an office), and a full bathroom. Outdoors, enjoy a new boathouse on a canal and an inviting outdoor living area — perfect for entertaining or unwinding along the peaceful canal that connects directly to Lake Maitland and the renowned Winter Park Chain of Lakes. The rear of the property backs up to a wooded conservation area that provides privacy and tranquility. The current owner received a variance for a future pool, and Orange County previously had no objections to pool installation (new owner would need to reapply). The property sits in one of Central Florida’s most sought-after school zones: Dommerich Elementary, Maitland Middle, and Winter Park High. Families here often bike or walk to school. Enjoy regular walks through scenic streets lined with mature cypress trees, palms, vibrant native vegetation and beautiful homes that line Lake Maitland. With no HOA, residents may optionally join the neighborhood association (approx. $120/year) for access to two lakefront parks and a private boat ramp. From the modern amenities and artful landscaping to the serene waterfront setting, this is truly a one-of-a-kind property that blends nature, comfort, and sophistication in the heart of Winter Park. *Canal boat tour video that showcases the trip from the canal to Lake Maitland is available via the virtual tour link in the listing.

Location

Facts and features

Type:
Residential
Parking:
Driveway / Electric Vehicle Charging Station(s) / Garage Door Opener / Garage Faces Side
Year Built:
1959
Lot:
0.37 Acres
Heating:
Central / Electric / Exhaust Fan / Heat Pump
Price/sqft:
$584
Cooling:
Central Air / Mini-Split Unit(s)
HOA:
No Data
All facts and features
  • Flooring

    • Engineered Hardwood

    Heating

    • Central

    • Electric

    • Exhaust Fan

    • Heat Pump

    Cooling

    • Central Air

    • Mini-Split Unit(s)

    Appliances

    • Built-In Oven

    • Cooktop

    • Dishwasher

    • Disposal

    • Exhaust Fan

    • Ice Maker

    • Microwave

    • Range

    • Range Hood

    Other interior features

    • Built-in Features

    • Ceiling Fan(s)

    • Crown Molding

    • Eating Space In Kitchen

    • High Ceilings

    • Open Floorplan

    • PrimaryBedroom Upstairs

    • Stone Counters

    • Thermostat

    • Vaulted Ceiling(s)

    • Walk-In Closet(s)

    • Window Treatments

    Bedrooms and bathrooms

    • Bedrooms: 4

    • Full bathrooms: 3

  • Parking

    • Driveway

    • Electric Vehicle Charging Station(s)

    • Garage Door Opener

    • Garage Faces Side

    Property

    • Levels: Two

    • Exterior Features: Irrigation System / Lighting / Private Mailbox / Rain Gutters / Storage

    Lot

    • Lot: 0.37 Acres

    Other Property Information

    • Parcel Number: 322130548000030

    • Zoning: R-1AA

  • Type and style

    • Property Type: Residential

    • Property Sub Type: Single Family Residence

  • Utility

    • BB/HS Internet Available

    • Cable Available

    • Electricity Connected

    • Fiber Optics

    • Propane

    • Sewer Connected

    • Underground Utilities

    • Water Connected

  • Other financial information

    • Annual tax amount: $8,653

  • Source details

    • MLS ID: O6354284

    Other facts

    • Construction Materials: Block / HardiPlank Type / Wood Frame / Wood Siding

    • Foundation Details: Slab

    • Fireplace Features: Gas / Living Room

    • Laundry Features: Laundry Room

    • Patio And Porch Features: Covered / Patio

    • Window Features: Shades

    • Direction Faces: North

    • Other Structures: Boat House

    • Waterfront: Yes

    • Fireplace: Yes

    • Water Body Name: WINTER PARK CHAIN OF LAKES

    • Garage Spaces: 2

    • Attached Garage: Yes

    • Garage: Yes

    • Living Area: 3142

    • Water Source: Canal/Lake For Irrigation / Public

    • Subdivision Name: MAITLAND SHORES

Similar Homes

1624 BARCELONA WAY placeholder 1624 BARCELONA WAY
1 days
For Sale
House
$2,380,000
3 bds 3 ba 3,828 sqft
1624 BARCELONA WAY
105 TANGELO COURT placeholder 105 TANGELO COURT
1 days
For Sale
House
$1,799,000
5 bds 4 ba 3,203 sqft
105 TANGELO COURT
2412 CHANTILLY AVENUE placeholder 2412 CHANTILLY AVENUE
8 days
For Sale
House
$2,350,000
5 bds 6 ba 4,506 sqft
2412 CHANTILLY AVENUE
102 BELL PLACE placeholder 102 BELL PLACE
9 days
For Sale
House
$1,499,000
4 bds 3 ba 2,459 sqft
102 BELL PLACE
1807 YORKSHIRE DRIVE placeholder 1807 YORKSHIRE DRIVE
11 days
For Sale
House
$1,450,000
4 bds 4 ba 3,565 sqft
1807 YORKSHIRE DRIVE
1421 SUNNYSIDE DRIVE placeholder 1421 SUNNYSIDE DRIVE
14 days
For Sale
House
$1,300,000
4 bds 2 ba 2,116 sqft
1421 SUNNYSIDE DRIVE
1630 CHESTNUT AVENUE placeholder 1630 CHESTNUT AVENUE
21 days
For Sale
House
$1,750,000
3 bds 4 ba 3,164 sqft
1630 CHESTNUT AVENUE
1885 TEMPLE DRIVE placeholder 1885 TEMPLE DRIVE
23 days
For Sale
House
$2,295,000
5 bds 3 ba 3,691 sqft
1885 TEMPLE DRIVE

The multiple listing information is provided by the Stellar MLS from a copyrighted compilation of listings. The compilation of listings and each individual listing are ©2025-present Stellar MLS. All Rights Reserved. The information provided is for consumers' personal, noncommercial use and may not be used for any purpose other than to identify prospective properties consumers may be interested in purchasing. All properties are subject to prior sale or withdrawal. All information provided is deemed reliable but is not guaranteed accurate, and should be independently verified. Listing courtesy of: PLAID PROPERTIES, LLC