Contact
Tell us about your needs

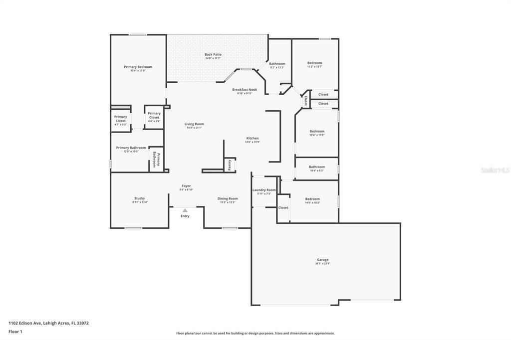
1102 EDISON AVENUE

House For Sale
$445,000

BTC: 5.74193548

ETH: 193.47826087

24 days
4 bds
3 ba
2,289 sqft
Est. Estimated sales range: $0 - $0
$0

Overview

4 bedroom 3 bath 3 CAR Garage HALF ACRE new construction home in Lehigh Acres FLorida. Sabal Palm Plus floor plan offers plenty of space for the whole family. The seperate dinning and living rooms can also be used as flex spaces. The vaulted ceilings, hurricane rated windows and doors and extra large garage on this half acre lot set this home apart from the others. Primary bedroom is 14 X 17 and has two walk in closets the bathroom has seperate tub and shower and two sinks. A split floor plan offers 2 bedrooms that share a bathroom and another bedroom with it's own full bathroom with a door to the lanai. Great room is ready for a large TV with a wood feature accent wall. Kitchen has all stainless appliances, a large granite island and a nice sized dinning area for your everyday meals. Seller is offering a rate to buy down buyers rate which will significatly lower the payment. This home is a must see and stands out from the others and comes with a 1 year warranty.

Location

Facts and features

Type:
Residential
Parking:
Driveway / Garage Door Opener
Year Built:
2025
Lot:
0.50 Acres
Heating:
Central / Electric
Price/sqft:
$194
Cooling:
Central Air
HOA:
No Data
All facts and features
  • Flooring

    • Tile

    Heating

    • Central

    • Electric

    Cooling

    • Central Air

    Appliances

    • Dishwasher

    • Microwave

    • Range

    • Refrigerator

    Other interior features

    • Ceiling Fan(s)

    • High Ceilings

    • Open Floorplan

    • Thermostat

    • Vaulted Ceiling(s)

    • Walk-In Closet(s)

    Bedrooms and bathrooms

    • Bedrooms: 4

    • Full bathrooms: 3

  • Parking

    • Driveway

    • Garage Door Opener

    Property

    • Levels: One

    • Exterior Features: Lighting / Sliding Doors

    Lot

    • Lot: 0.50 Acres

    Other Property Information

    • Parcel Number: 204427L211044.0120

    • Zoning: RS-1

  • Type and style

    • Property Type: Residential

    • Property Sub Type: Single Family Residence

  • Utility

    • Cable Available

    • Electricity Connected

    • Sewer Connected

    • Water Connected

  • Other financial information

    • Annual tax amount: $443

  • Source details

    • MLS ID: TB8456454

    Other facts

    • Construction Materials: Block / Concrete

    • Foundation Details: Slab

    • Laundry Features: Laundry Room

    • Patio And Porch Features: Rear Porch

    • Direction Faces: West

    • Garage Spaces: 3

    • Attached Garage: Yes

    • Garage: Yes

    • Living Area: 2289

    • Water Source: Well

    • Subdivision Name: LEHIGH ACRES

Similar Homes

1923 Villia, Lehigh Acres FL 33972 placeholder 1923 Villia, Lehigh Acres FL 33972
New
For Sale
House
$359,900
4 bds 3 ba
1923 Villia, Lehigh Acres FL 33972
151 OCEAN PARK DRIVE placeholder 151 OCEAN PARK DRIVE
2 days
For Sale
House
$409,000
3 bds 2 ba 1,476 sqft
151 OCEAN PARK DRIVE
2700 10 SW, Lehigh Acres FL 33976 placeholder 2700 10 SW, Lehigh Acres FL 33976
2 days
For Sale
House
$435,000
3 bds 2 ba 1,427 sqft
2700 10 SW, Lehigh Acres FL 33976
11 Connecticut Rd, Lehigh Acres FL 33936 placeholder 11 Connecticut Rd, Lehigh Acres FL 33936
2 days
For Sale
House
$459,900
3 bds 2 ba
11 Connecticut Rd, Lehigh Acres FL 33936
1112 Clark Ave, Lehigh Acres FL 33972 placeholder 1112 Clark Ave, Lehigh Acres FL 33972
2 days
For Sale
House
$399,995
3 bds 2 ba 1,562 sqft
1112 Clark Ave, Lehigh Acres FL 33972
418 WINDERMERE DRIVE placeholder 418 WINDERMERE DRIVE
12 days
For Sale
House
$344,800
4 bds 2 ba 2,557 sqft
418 WINDERMERE DRIVE
1506 8TH AVENUE placeholder 1506 8TH AVENUE
17 days
For Sale
House
$525,000
4 bds 2 ba 2,097 sqft
1506 8TH AVENUE
2614 27th ST W, Lehigh Acres FL 33971 placeholder 2614 27th ST W, Lehigh Acres FL 33971
20 days
For Sale
House
$385,000
4 bds 3 ba
2614 27th ST W, Lehigh Acres FL 33971

The multiple listing information is provided by the Stellar MLS from a copyrighted compilation of listings. The compilation of listings and each individual listing are ©2026-present Stellar MLS. All Rights Reserved. The information provided is for consumers' personal, noncommercial use and may not be used for any purpose other than to identify prospective properties consumers may be interested in purchasing. All properties are subject to prior sale or withdrawal. All information provided is deemed reliable but is not guaranteed accurate, and should be independently verified. Listing courtesy of: SOUTHERN LUXURY REALTY, LLC