Contact
Tell us about your needs

11390 NW 92ND COURT

House For Sale
$329,900

BTC: 5.07538462

ETH: 173.63157895

-$10K (2026/01/05)
95 days
3 bds
2 ba
1,321 sqft
Est. Estimated sales range: $0 - $0
$0

Overview

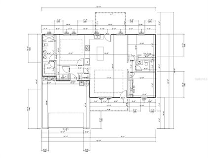
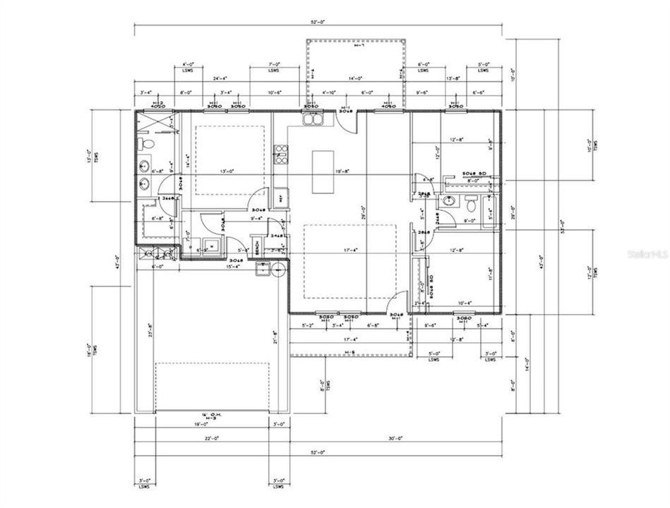
Under Construction. $3500 in closing cost or rate buy down assistance!! Brand New Home Under Construction in Golf Course Community with no HOA fees!! Don’t miss this stunning new construction 3-bedroom, 2-bath home set on a spacious .51 acre corner lot in Chiefland Country Estates. Designed for country living with modern touches, this home features 9-foot ceilings, luxury vinyl plank flooring, and quartz countertops throughout. The stylish kitchen includes a large island, pantry, decorative lighting, and stainless steel appliances (refrigerator, electric range, microwave hood, and dishwasher all included). The open floor plan flows seamlessly to a covered front porch and covered back patio, perfect for relaxing or entertaining. The spacious primary suite offers a walk-in closet, double vanities, and a beautiful tiled shower. Enjoy added convenience with an indoor laundry room, mud area, and an oversized 2-car garage. Located just 5 minutes from Manatee Springs State Park and the public boat ramp at Clay Landing on the Suwannee River, outdoor adventure is right at your doorstep. Don't miss out on your slice of paradise!

Location

Facts and features

Type:
Residential
Parking:
No Data
Year Built:
2025
Lot:
0.51 Acres
Heating:
Central / Electric / Heat Pump
Price/sqft:
$250
Cooling:
Central Air
HOA:
No Data
All facts and features
  • Flooring

    • Vinyl

    Heating

    • Central

    • Electric

    • Heat Pump

    Cooling

    • Central Air

    Appliances

    • Dishwasher

    • Electric Water Heater

    • Exhaust Fan

    • Microwave

    • Range

    • Refrigerator

    Other interior features

    • Ceiling Fan(s)

    • High Ceilings

    • Open Floorplan

    • Split Bedroom

    • Tray Ceiling(s)

    • Walk-In Closet(s)

    Bedrooms and bathrooms

    • Bedrooms: 3

    • Full bathrooms: 2

  • Property

    • Levels: One

    • Exterior Features: Other

    Lot

    • Lot: 0.51 Acres

    Other Property Information

    • Parcel Number: 1486800000

    • Zoning: RR

  • Type and style

    • Property Type: Residential

    • Property Sub Type: Single Family Residence

  • Utility

    • Electricity Available

  • Other financial information

    • Annual tax amount: $241

  • Source details

    • MLS ID: GC534524

    Other facts

    • Construction Materials: HardiPlank Type / Wood Frame

    • Foundation Details: Slab

    • Laundry Features: Inside / Laundry Room

    • Lot Features: Cleared / Corner Lot / In County / Level / Near Golf Course

    • Patio And Porch Features: Covered / Front Porch / Rear Porch

    • Direction Faces: East

    • Architectural Style: Contemporary

    • Garage Spaces: 2

    • Attached Garage: Yes

    • Garage: Yes

    • Living Area: 1321

    • Water Source: Private

    • Lot Size Dimensions: 92.88 x 187.11 x 119.92 x 162.43

    • Subdivision Name: CHIEFLAND COUNTRY ESTATES

Similar Homes

11150 NW 78TH AVENUE placeholder 11150 NW 78TH AVENUE
-$25K (2026/01/02)
For Sale
Lots/Land
$269,876
0 room(s)
11150 NW 78TH AVENUE
11416 NW 113TH STREET placeholder 11416 NW 113TH STREET
-$5K (2025/11/28)
For Sale
$234,000
3 bds 2 ba 1,512 sqft
11416 NW 113TH STREET
9990 NW 114TH STREET placeholder 9990 NW 114TH STREET
-$2K (2025/12/05)
For Sale
House
$336,500
3 bds 2 ba 1,552 sqft
9990 NW 114TH STREET
11310 NW 73RD COURT placeholder 11310 NW 73RD COURT
-$10K (2025/10/12)
For Sale
House
$389,950
3 bds 2 ba 2,133 sqft
11310 NW 73RD COURT
11250 NW 76TH TERRACE placeholder 11250 NW 76TH TERRACE
-$15K (2025/11/06)
For Sale
$299,900
3 bds 2 ba 1,576 sqft
11250 NW 76TH TERRACE
8991 NW 115TH STREET placeholder 8991 NW 115TH STREET
-$30K (2025/10/17)
For Sale
House
$399,000
3 bds 2 ba 1,617 sqft
8991 NW 115TH STREET

The multiple listing information is provided by the Stellar MLS from a copyrighted compilation of listings. The compilation of listings and each individual listing are ©2026-present Stellar MLS. All Rights Reserved. The information provided is for consumers' personal, noncommercial use and may not be used for any purpose other than to identify prospective properties consumers may be interested in purchasing. All properties are subject to prior sale or withdrawal. All information provided is deemed reliable but is not guaranteed accurate, and should be independently verified. Listing courtesy of: MILLER REAL ESTATE