Contact
Tell us about your needs

12856 SW 227th St, Miami FL 33170

House For Sale
$770,000

BTC: 8.86586068

ETH: 385.00000000

1 days
4 bds
3 ba
2,620 sqft
Est. Estimated sales range: $0 - $0
$0

Overview

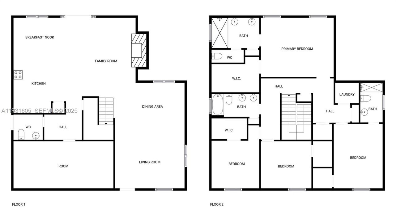
Welcome to your dream home located at 12856 SW 227th St, where the living room centers around a charming fireplace that sets a warm, inviting tone. The beautifully designed kitchen showcases an efficient island and all sleek stainless steel appliances, making meal prep effortless and conversation easy. The primary bedroom feels like a sanctuary with its generous walk-in closet, while the additional bedrooms offer a peaceful retreat for quiet rest. The bathrooms are fresh and thoughtfully finished, with the primary featuring double sinks for everyday convenience. Outside, unwind beside a private in-ground pool, dine on the patio, and enjoy the serenity of a fenced backyard that enhances privacy and relaxation.

Location

Florida Miami 33170 House For Sale

Facts and features

Type:
Residential
Parking:
Covered
Year Built:
2020
Lot:
6365 Square Feet
Heating:
Central / Electric
Price/sqft:
$294
Cooling:
Central Air
HOA:
No Data
All facts and features
  • Flooring

    • Other

    • Tile

    Heating

    • Central

    • Electric

    Cooling

    • Central Air

    Appliances

    • Dishwasher

    • Electric Water Heater

    • Microwave

    • Electric Range

    Other interior features

    • Other

    • Den/Library/Office

    Bedrooms and bathrooms

    • Bedrooms: 4

    • Bathrooms: 1

    • Full bathrooms: 3

  • Parking

    • Covered

    Lot

    • Lot: 6365 Square Feet

    Other Property Information

    • Parcel Number: 30-69-14-017-0700

    • Zoning: 0100

  • Type and style

    • Property Type: Residential

    • Property Sub Type: Single Family Residence

  • Other financial information

    • Annual tax amount: $10,366

  • Source details

    • MLS ID: A11931605

    Other facts

    • Construction Materials: Stucco

    • Lot Features: Less Than 1/4 Acre Lot

    • Patio And Porch Features: Open Porch

    • Pool Features: In Ground

    • Direction Faces: North

    • Architectural Style: Detached / Two Story

    • Garage Spaces: 2

    • Garage: Yes

    • Living Area: 2620

    • Water Source: Other

    • Subdivision Name: HERRAN-BARKETT SUBDIVISIO

Similar Homes

25280 SW 119th Ave, Homestead FL 33032 placeholder 25280 SW 119th Ave, Homestead FL 33032
2 days
For Sale
House
$599,000
4 bds 2 ba 1,877 sqft
25280 SW 119th Ave, Homestead FL 33032
22485 SW 125th Ave # 16A, Miami FL 33170 placeholder 22485 SW 125th Ave # 16A, Miami FL 33170
2 days
For Sale
Townhouse
$664,990
5 bds 4 ba
22485 SW 125th Ave # 16A, Miami FL 33170
25324 SW 119th Ave, Homestead FL 33032 placeholder 25324 SW 119th Ave, Homestead FL 33032
2 days
For Sale
House
$660,000
4 bds 2 ba 2,280 sqft
25324 SW 119th Ave, Homestead FL 33032
22505 SW 125th Ave # 15A, Miami FL 33170 placeholder 22505 SW 125th Ave # 15A, Miami FL 33170
2 days
For Sale
Townhouse
$664,990
5 bds 4 ba
22505 SW 125th Ave # 15A, Miami FL 33170
22445 SW 125th Ave # 18A, Miami FL 33170 placeholder 22445 SW 125th Ave # 18A, Miami FL 33170
2 days
For Sale
Townhouse
$664,990
5 bds 4 ba
22445 SW 125th Ave # 18A, Miami FL 33170
26831 SW 119th Ct, Homestead FL 33032 placeholder 26831 SW 119th Ct, Homestead FL 33032
2 days
For Sale
House
$639,900
3 bds 2 ba 2,214 sqft
26831 SW 119th Ct, Homestead FL 33032
11709 SW 253rd St, Homestead FL 33032 placeholder 11709 SW 253rd St, Homestead FL 33032
2 days
For Sale
House
$695,000
4 bds 3 ba 2,500 sqft
11709 SW 253rd St, Homestead FL 33032
10829 SW 232nd St, Miami FL 33170 placeholder 10829 SW 232nd St, Miami FL 33170
3 days
For Sale
House
$639,900
4 bds 3 ba 2,619 sqft
10829 SW 232nd St, Miami FL 33170

The multiple listing information is provided by the Miami Association of REALTORS® from a copyrighted compilation of listings. The compilation of listings and each individual listing are ©2025-present Miami Association of REALTORS®. All Rights Reserved. The information provided is for consumers' personal, noncommercial use and may not be used for any purpose other than to identify prospective properties consumers may be interested in purchasing. All properties are subject to prior sale or withdrawal. All information provided is deemed reliable but is not guaranteed accurate, and should be independently verified. Listing courtesy of: Opendoor Brokerage LLC