Contact
Tell us about your needs

13245 SW 58TH COURT

House For Sale
$289,965

BTC: 3.18642857

ETH: 144.98250000

4 days
4 bds
2 ba
1,498 sqft
Est. Estimated sales range: $0 - $0
$0

Overview

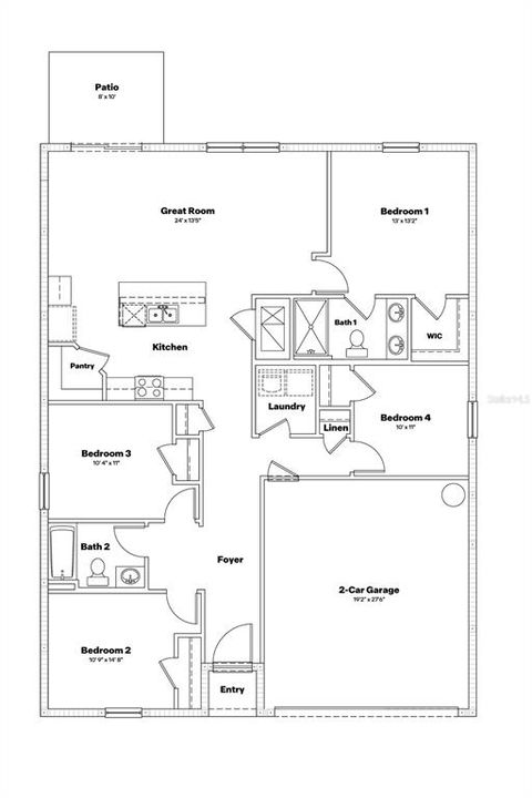
Under Construction. This all concrete block constructed, one-story home optimizes living space, featuring an open-concept kitchen overlooking the great room and outdoor patio. The well-appointed kitchen comes with all stainless-steel appliances, including a built-in dishwasher, range, and microwave. Bedroom 1 is located at the rear of the home for privacy and features an ensuite bathroom and walk-in closet near the bathroom. Two additional bedrooms at the front of the home are separated by the second bathroom. The third bedroom is located across the hallway near the laundry room. Pictures, photographs, colors, features, and sizes are for illustration purposes only and will vary from the homes as built. Home and community information including pricing, included features, terms, availability and amenities are subject to change and prior sale at any time without notice or obligation. CRC057592.

Location

Florida OCALA 34473 House For Sale

Facts and features

Type:
Residential
Parking:
No Data
Year Built:
2025
Lot:
0.13 Acres
Heating:
Electric / Heat Pump
Price/sqft:
$194
Cooling:
Central Air
HOA:
$91
All facts and features
  • Flooring

    • Carpet

    • Luxury Vinyl

    Heating

    • Electric

    • Heat Pump

    Cooling

    • Central Air

    Appliances

    • Dishwasher

    • Microwave

    • Range

    Other interior features

    • Open Floorplan

    Bedrooms and bathrooms

    • Bedrooms: 4

    • Full bathrooms: 2

  • Property

    • Levels: One

    • Exterior Features: Irrigation System

    Lot

    • Lot: 0.13 Acres

    Other Property Information

    • Parcel Number: 4120056096

    • Zoning: PUD

  • Type and style

    • Property Type: Residential

    • Property Sub Type: Single Family Residence

  • Utility

    • Other

  • Other financial information

    • HOA: $91

    • HOA Frequency: Monthly

  • Source details

    • MLS ID: OM714881

    Other facts

    • Construction Materials: Block

    • Foundation Details: Slab

    • Laundry Features: Laundry Room

    • Direction Faces: Northeast

    • Garage Spaces: 2

    • Attached Garage: Yes

    • Garage: Yes

    • Living Area: 1498

    • Water Source: Public

    • Subdivision Name: MCGINLEY LANDING

Similar Homes

14993 SW 46TH CIRCLE placeholder 14993 SW 46TH CIRCLE
1 days
For Sale
House
$315,000
4 bds 2 ba 1,774 sqft
14993 SW 46TH CIRCLE
8040 SW 133RD LANE placeholder 8040 SW 133RD LANE
1 days
For Sale
House
$299,900
3 bds 2 ba 1,576 sqft
8040 SW 133RD LANE
5775 SW 132ND PLACE placeholder 5775 SW 132ND PLACE
1 days
For Sale
House
$286,965
4 bds 2 ba 1,498 sqft
5775 SW 132ND PLACE
6058 SW 155TH STREET ROAD placeholder 6058 SW 155TH STREET ROAD
1 days
For Sale
House
$327,070
4 bds 2 ba 1,828 sqft
6058 SW 155TH STREET ROAD
3348 SW 137TH LOOP placeholder 3348 SW 137TH LOOP
1 days
For Sale
House
$298,900
3 bds 2 ba 1,662 sqft
3348 SW 137TH LOOP
5200 SW 129TH PLACE placeholder 5200 SW 129TH PLACE
1 days
For Sale
House
$330,000
4 bds 2 ba 1,827 sqft
5200 SW 129TH PLACE
6998 SW 128TH PLACE ROAD placeholder 6998 SW 128TH PLACE ROAD
1 days
For Sale
House
$249,900
3 bds 2 ba 1,315 sqft
6998 SW 128TH PLACE ROAD
15738 SW 35TH COURT ROAD placeholder 15738 SW 35TH COURT ROAD
1 days
For Sale
Multi-family
$275,000
4 bds 1,736 sqft
15738 SW 35TH COURT ROAD

The multiple listing information is provided by the Stellar MLS from a copyrighted compilation of listings. The compilation of listings and each individual listing are ©2025-present Stellar MLS. All Rights Reserved. The information provided is for consumers' personal, noncommercial use and may not be used for any purpose other than to identify prospective properties consumers may be interested in purchasing. All properties are subject to prior sale or withdrawal. All information provided is deemed reliable but is not guaranteed accurate, and should be independently verified. Listing courtesy of: DR HORTON REALTY OF WEST CENTRAL FLORIDA