Contact
Tell us about your needs

13275 TULA LOOP

House For Sale
$388,900

BTC: 5.77285872

ETH: 202.55208333

-$31K (2025/10/03)
278 days
4 bds
2 ba
2,059 sqft
Est. Estimated sales range: $0 - $0
$0

Overview

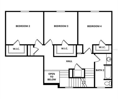
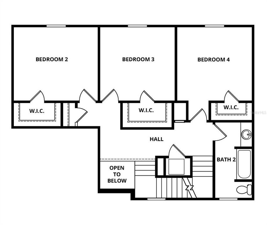
Under Construction. Reduce Price! Private Corner-Lot! Welcome to the Parc model in the vibrant Tula Parc community of Astatula, FL! This spacious two-story retreat offers 4 generously sized bedrooms and 2.5 bathrooms, all designed with comfort and functionality in mind. Every bedroom features its own walk-in closet, offering abundant storage throughout the home. The open-concept layout creates a seamless flow between the kitchen, dining area, and living room, perfect for entertaining and everyday living. The chef-inspired kitchen is loaded with upgrades, including brand-new Whirlpool® appliances, granite countertops, a large closet pantry, and 36” upper wood cabinets with crown molding. Additional features include Moen® faucets, LED flush-mount Energy Star® lighting, and a programmable thermostat. The private master retreat is a relaxing sanctuary with a spacious en-suite bathroom featuring dual sinks and a walk-in closet. Designer touches throughout the home include coach lighting, double-pane Low-E vinyl windows, and a Wi-Fi-enabled garage door opener. Sitting on a corner lot, this home also showcases mature landscaping and plenty of natural light. As part of the Tula Parc community, residents enjoy access to a community gazebo and playground, and are just minutes from the Chain of Lakes and Little Lake Harris, offering endless options for boating, kayaking, and fishing. This Parc model is truly a perfect blend of style, space, and location—schedule your tour today!

Location

Facts and features

Type:
Residential
Parking:
Driveway / Garage Door Opener
Year Built:
2026
Lot:
0.13 Acres
Heating:
Electric / Heat Pump
Price/sqft:
$189
Cooling:
Central Air
HOA:
$95
All facts and features
  • Flooring

    • Carpet

    • Luxury Vinyl

    Heating

    • Electric

    • Heat Pump

    Cooling

    • Central Air

    Appliances

    • Dishwasher

    • Disposal

    • Electric Water Heater

    • Exhaust Fan

    • Ice Maker

    • Microwave

    • Range

    • Refrigerator

    Other interior features

    • Ceiling Fan(s)

    • Kitchen/Family Room Combo

    • Open Floorplan

    • Pest Guard System

    • Primary Bedroom Main Floor

    • Stone Counters

    • Thermostat

    • Walk-In Closet(s)

    • Window Treatments

    Bedrooms and bathrooms

    • Bedrooms: 4

    • Bathrooms: 1

    • Full bathrooms: 2

  • Parking

    • Driveway

    • Garage Door Opener

    Property

    • Levels: Two

    • Exterior Features: Irrigation System / Lighting / Sidewalk / Sliding Doors

    Lot

    • Lot: 0.13 Acres

    Other Property Information

    • Parcel Number: 292026020000007300

    • Zoning: MPUD

  • Type and style

    • Property Type: Residential

    • Property Sub Type: Single Family Residence

  • Utility

    • BB/HS Internet Available

    • Cable Available

    • Electricity Available

    • Electricity Connected

    • Fiber Optics

    • Phone Available

    • Public

    • Street Lights

    • Underground Utilities

    • Water Available

    • Water Connected

  • Other financial information

    • HOA: $95

    • HOA Frequency: Monthly

    • Annual tax amount: $5,472

  • Source details

    • MLS ID: TB8370568

    Other facts

    • Construction Materials: Block / Stucco

    • Foundation Details: Slab

    • Laundry Features: Electric Dryer Hookup / In Kitchen / Inside / Laundry Room / Upper Level / Washer Hookup

    • Lot Features: Corner Lot

    • Patio And Porch Features: Covered / Front Porch / Patio / Rear Porch

    • Window Features: Blinds / Double Pane Windows / ENERGY STAR Qualified Windows / Low-Emissivity Windows / Window Treatments

    • Direction Faces: East

    • Architectural Style: Traditional

    • Garage Spaces: 2

    • Attached Garage: Yes

    • Garage: Yes

    • Living Area: 2059

    • Water Source: Public

    • Subdivision Name: TULA PARC

Similar Homes

502 S DIXIE DRIVE placeholder 502 S DIXIE DRIVE
1 days
For Sale
House
$350,000
3 bds 2 ba 1,399 sqft
502 S DIXIE DRIVE
3370 SAINT LUCIA COURT placeholder 3370 SAINT LUCIA COURT
4 days
For Sale
House
$374,900
3 bds 2 ba 1,893 sqft
3370 SAINT LUCIA COURT
6170 SAILBOAT AVENUE placeholder 6170 SAILBOAT AVENUE
22 days
For Sale
House
$345,000
3 bds 2 ba 1,535 sqft
6170 SAILBOAT AVENUE
13642 CITRUS FARMS DRIVE placeholder 13642 CITRUS FARMS DRIVE
23 days
For Sale
House
$407,500
4 bds 2 ba 1,556 sqft
13642 CITRUS FARMS DRIVE
5740 BOUNTY CIRCLE placeholder 5740 BOUNTY CIRCLE
23 days
For Sale
House
$460,000
4 bds 2 ba 3,136 sqft
5740 BOUNTY CIRCLE
13330 GEORGIA AVENUE placeholder 13330 GEORGIA AVENUE
25 days
For Sale
House
$379,000
3 bds 2 ba 1,500 sqft
13330 GEORGIA AVENUE
104 6TH AVENUE placeholder 104 6TH AVENUE
26 days
For Sale
House
$328,000
3 bds 2 ba 1,425 sqft
104 6TH AVENUE
13312 GEORGIA AVENUE placeholder 13312 GEORGIA AVENUE
28 days
For Sale
House
$379,000
3 bds 2 ba 1,762 sqft
13312 GEORGIA AVENUE

The multiple listing information is provided by the Stellar MLS from a copyrighted compilation of listings. The compilation of listings and each individual listing are ©2026-present Stellar MLS. All Rights Reserved. The information provided is for consumers' personal, noncommercial use and may not be used for any purpose other than to identify prospective properties consumers may be interested in purchasing. All properties are subject to prior sale or withdrawal. All information provided is deemed reliable but is not guaranteed accurate, and should be independently verified. Listing courtesy of: LGI REALTY- FLORIDA, LLC