Contact
Tell us about your needs

13320 TULA LOOP

House For Sale
$388,900

BTC: 4.50376375

ETH: 132.91182502

41 days
4 bds
2 ba
2,059 sqft
Est. Estimated sales range: $0 - $0
$0

Overview

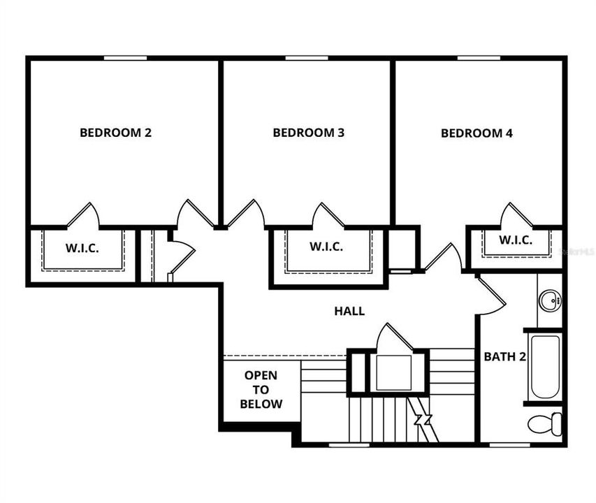
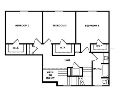
Pre-Construction. To be built. Discover the inviting Parc floor plan in the charming Tula Parc community—an elegant 4-bedroom, 2.5-bath, two-story home designed with comfort and style in mind. From the moment you arrive, the lushly landscaped front yard sets a warm and welcoming tone. Step inside to find a thoughtfully crafted layout filled with modern features and spacious living areas. The heart of the home is the beautifully appointed kitchen, showcasing new stainless steel appliances, gleaming granite countertops, and 36” upper wood cabinets with crown molding. Its seamless connection to the family room creates an inviting space perfect for everyday living and entertaining. The covered front porch opens into a bright living area, while the open-concept design ensures natural flow throughout the main floor. Upstairs, all four bedrooms include generous walk-in closets, offering exceptional storage for both family and guests. The private owner’s suite features an expansive walk-in closet and a well-designed en-suite bathroom. With a covered back patio, stylish interiors, and a functional layout, the Parc model delivers both charm and convenience. Located in the peaceful Tula Parc community, residents enjoy a serene atmosphere with easy access to nearby recreation, shopping, and dining. Experience comfort, value, and thoughtful design in this beautiful Parc home!

Location

Facts and features

Type:
Residential
Parking:
Driveway / Garage Door Opener
Year Built:
2026
Lot:
0.13 Acres
Heating:
Electric / Heat Pump
Price/sqft:
$189
Cooling:
Central Air
HOA:
$95
All facts and features
  • Flooring

    • Carpet

    • Luxury Vinyl

    Heating

    • Electric

    • Heat Pump

    Cooling

    • Central Air

    Appliances

    • Dishwasher

    • Disposal

    • Electric Water Heater

    • Exhaust Fan

    • Ice Maker

    • Microwave

    • Range

    • Refrigerator

    Other interior features

    • Ceiling Fan(s)

    • Kitchen/Family Room Combo

    • Open Floorplan

    • Pest Guard System

    • Primary Bedroom Main Floor

    • Stone Counters

    • Thermostat

    • Walk-In Closet(s)

    • Window Treatments

    Bedrooms and bathrooms

    • Bedrooms: 4

    • Bathrooms: 1

    • Full bathrooms: 2

  • Parking

    • Driveway

    • Garage Door Opener

    Property

    • Levels: Two

    • Exterior Features: Irrigation System / Lighting / Sidewalk / Sliding Doors

    Lot

    • Lot: 0.13 Acres

    Other Property Information

    • Parcel Number: 292026020000011400

    • Zoning: MPUD

  • Type and style

    • Property Type: Residential

    • Property Sub Type: Single Family Residence

  • Utility

    • BB/HS Internet Available

    • Cable Available

    • Electricity Available

    • Electricity Connected

    • Fiber Optics

    • Phone Available

    • Public

    • Street Lights

    • Underground Utilities

    • Water Available

    • Water Connected

  • Other financial information

    • HOA: $95

    • HOA Frequency: Monthly

    • Annual tax amount: $993

  • Source details

    • MLS ID: TB8448462

    Other facts

    • Construction Materials: Block / Stucco

    • Foundation Details: Slab

    • Laundry Features: Electric Dryer Hookup / In Kitchen / Inside / Laundry Room / Upper Level / Washer Hookup

    • Lot Features: Corner Lot

    • Patio And Porch Features: Covered / Front Porch / Patio / Rear Porch

    • Window Features: Blinds / Double Pane Windows / ENERGY STAR Qualified Windows / Low-Emissivity Windows / Window Treatments

    • Direction Faces: East

    • Architectural Style: Traditional

    • Garage Spaces: 2

    • Attached Garage: Yes

    • Garage: Yes

    • Living Area: 2059

    • Water Source: Public

    • Subdivision Name: TULA PARC

Similar Homes

120 E CROTON WAY placeholder 120 E CROTON WAY
6 days
For Sale
House
$489,000
3 bds 2 ba 1,914 sqft
120 E CROTON WAY
6170 SAILBOAT AVENUE placeholder 6170 SAILBOAT AVENUE
9 days
For Sale
House
$345,000
3 bds 2 ba 1,535 sqft
6170 SAILBOAT AVENUE
5740 BOUNTY CIRCLE placeholder 5740 BOUNTY CIRCLE
10 days
For Sale
House
$460,000
4 bds 2 ba 3,136 sqft
5740 BOUNTY CIRCLE
13642 CITRUS FARMS DRIVE placeholder 13642 CITRUS FARMS DRIVE
10 days
For Sale
House
$407,500
4 bds 2 ba 1,556 sqft
13642 CITRUS FARMS DRIVE
13330 GEORGIA AVENUE placeholder 13330 GEORGIA AVENUE
12 days
For Sale
House
$379,000
3 bds 2 ba 1,500 sqft
13330 GEORGIA AVENUE
104 6TH AVENUE placeholder 104 6TH AVENUE
13 days
For Sale
House
$328,000
3 bds 2 ba 1,425 sqft
104 6TH AVENUE
13312 GEORGIA AVENUE placeholder 13312 GEORGIA AVENUE
15 days
For Sale
House
$379,000
3 bds 2 ba 1,762 sqft
13312 GEORGIA AVENUE
33 CAMINO REAL UNIT #303 placeholder 33 CAMINO REAL UNIT #303
24 days
For Sale
Condo/Co-op
$485,000
3 bds 3 ba 2,682 sqft
33 CAMINO REAL UNIT #303

The multiple listing information is provided by the Stellar MLS from a copyrighted compilation of listings. The compilation of listings and each individual listing are ©2025-present Stellar MLS. All Rights Reserved. The information provided is for consumers' personal, noncommercial use and may not be used for any purpose other than to identify prospective properties consumers may be interested in purchasing. All properties are subject to prior sale or withdrawal. All information provided is deemed reliable but is not guaranteed accurate, and should be independently verified. Listing courtesy of: LGI REALTY- FLORIDA, LLC