Contact
Tell us about your needs

13388 GLORY LANE

House For Sale
$524,900

BTC: 6.04375360

ETH: 262.45000000

2 days
3 bds
2 ba
1,616 sqft
Est. Estimated sales range: $0 - $0
$0

Overview

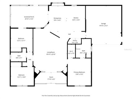
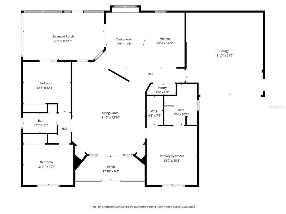
A rare bonus sets this property apart — a lifetime supply of Lighter Knot — paired with a fully remodeled 3-bedroom, 2-bath home on 2.5 private acres at 13388 Glory Ln in Brooksville, featuring fresh landscaping and a quiet, natural setting. The home offers a comfortable and functional layout with a spacious living room and a dedicated dining area that opens directly to the screened lanai, creating an easy flow for everyday living and entertaining. New luxury vinyl flooring runs throughout the home, complemented by fresh interior paint, new appliances, and new fans and light fixtures. The primary bedroom includes a walk-in closet and an en suite bath with a walk-in shower. The split bedroom floor plan provides privacy while maintaining a practical, open feel. All major, big-ticket improvements have already been completed, including a NEW ROOF , brand-new HVAC system, and a NEW SEPTIC TANK and DRAIN FIELD, offering real long-term value and peace of mind. The property delivers privacy without isolation. Located just outside of Brooksville, you’re convenient to shopping, dining, medical facilities, and schools, with quick access to US-41 and SR-50. Outdoor recreation is close by at Weeki Wachee Springs, Chinsegut Wildlife Management Area, and other local parks and trails.

Location

Facts and features

Type:
Residential
Parking:
No Data
Year Built:
2005
Lot:
2.70 Acres
Heating:
Electric
Price/sqft:
$325
Cooling:
Central Air
HOA:
No Data
All facts and features
  • Flooring

    • Luxury Vinyl

    • Vinyl

    Heating

    • Electric

    Cooling

    • Central Air

    Appliances

    • Dishwasher

    • Microwave

    • Range

    • Refrigerator

    Other interior features

    • Ceiling Fan(s)

    • Eating Space In Kitchen

    • High Ceilings

    • Open Floorplan

    • Primary Bedroom Main Floor

    • Split Bedroom

    Bedrooms and bathrooms

    • Bedrooms: 3

    • Full bathrooms: 2

  • Property

    • Levels: One

    • Exterior Features: French Doors

    Lot

    • Lot: 2.70 Acres

    Other Property Information

    • Parcel Number: R3142119705800000040

    • Zoning: 01

  • Type and style

    • Property Type: Residential

    • Property Sub Type: Single Family Residence

  • Utility

    • Private

  • Other financial information

    • Annual tax amount: $4,686

  • Source details

    • MLS ID: W7881396

    Other facts

    • Construction Materials: Stucco

    • Foundation Details: Block

    • Laundry Features: In Garage

    • Direction Faces: West

    • Garage Spaces: 2

    • Attached Garage: Yes

    • Garage: Yes

    • Living Area: 1616

    • Water Source: Well

    • Subdivision Name: COLBURN - CLASS 1 SUB

Similar Homes

15217 BAILEY HILL ROAD placeholder 15217 BAILEY HILL ROAD
32 days
For Sale
House
$599,000
7 bds 5 ba 580 sqft
15217 BAILEY HILL ROAD
13517 CITRUS WAY placeholder 13517 CITRUS WAY
-$40K (2025/12/16)
For Sale
House
$510,000
3 bds 2 ba 2,789 sqft
13517 CITRUS WAY
LAKE LINDSEY ROAD placeholder LAKE LINDSEY ROAD
-$20K (2025/11/04)
For Sale
Lots/Land
$580,000
0 room(s)
LAKE LINDSEY ROAD

The multiple listing information is provided by the Stellar MLS from a copyrighted compilation of listings. The compilation of listings and each individual listing are ©2025-present Stellar MLS. All Rights Reserved. The information provided is for consumers' personal, noncommercial use and may not be used for any purpose other than to identify prospective properties consumers may be interested in purchasing. All properties are subject to prior sale or withdrawal. All information provided is deemed reliable but is not guaranteed accurate, and should be independently verified. Listing courtesy of: FIND YOUR PARADISE