Contact
Tell us about your needs

1401 ORANGE TREE DRIVE

House For Sale
$279,500

BTC: 9.31666667

ETH: 139.75000000

-$10K (2025/10/25)
47 days
3 bds
1 ba
1,350 sqft
Est. Estimated sales range: $0 - $0
$0

Overview

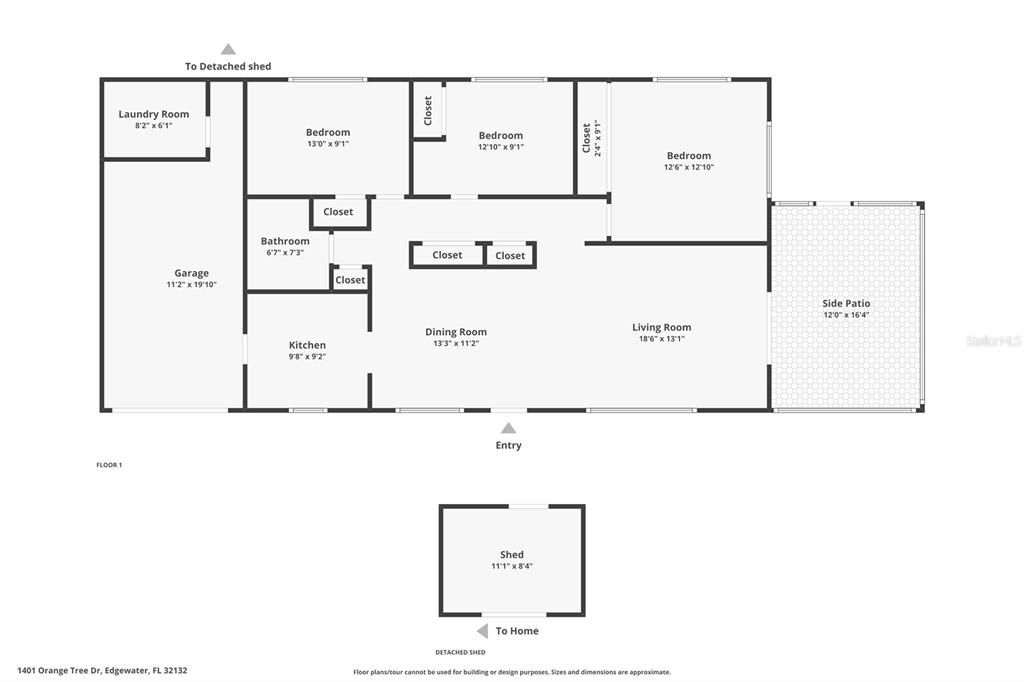
This Beautiful Ranch is located in the very desirable area of Florida Shores located in Edgewater Florida. The home is located in Flood Zone X which means it is not in a flood zone and is high and dry. The Roof is metal and was installed in 2014 making it only 11 years old. The Living Room/Dining Room combination is an open concept, and the Living Room is a Large 20/14 Feet. The Living Room has French Doors opening to a huge Patio. The Kitchen is a Galley kitchen and has ample cabinet space and is open into the Dining Room. The appliances are a Refrigerator, Range, dishwasher and a Microwave. The Bedrooms are located in the rear of the home which makes them both Private and Quiet. The Lovely Bathroom is Tiled and has a Tub and Shower Combination. The Flooring is Very Nice Terrazzo Flooring and is throughout the home. The Kitchen door opens into the garage which makes bringing groceries home easy. In the rear of the garage is the laundry room with a half bath. The lot is 1/3 of an acre and has fencing and a huge shed for strorage and lawn equipment.

Location

Facts and features

Type:
Residential
Parking:
No Data
Year Built:
1959
Lot:
0.34 Acres
Heating:
Central / Electric
Price/sqft:
$207
Cooling:
Central Air
HOA:
No Data
All facts and features
  • Flooring

    • Terrazzo

    Heating

    • Central

    • Electric

    Cooling

    • Central Air

    Appliances

    • Dishwasher

    • Dryer

    • Microwave

    • Range

    • Refrigerator

    • Washer

    Other interior features

    • Living Room/Dining Room Combo

    • Open Floorplan

    • Primary Bedroom Main Floor

    Bedrooms and bathrooms

    • Bedrooms: 3

    • Bathrooms: 1

    • Full bathrooms: 1

  • Property

    • Levels: One

    • Exterior Features: Storage

    Lot

    • Lot: 0.34 Acres

    Other Property Information

    • Parcel Number: 840201022480

    • Zoning: 07R-2B

  • Type and style

    • Property Type: Residential

    • Property Sub Type: Single Family Residence

  • Utility

    • Cable Available

    • Electricity Connected

    • Sewer Connected

    • Water Connected

  • Other financial information

    • Annual tax amount: $1,802

  • Source details

    • MLS ID: V4945418

    Other facts

    • Construction Materials: Block / Concrete / Stucco

    • Foundation Details: Slab

    • Laundry Features: Electric Dryer Hookup / In Garage / Laundry Room / Washer Hookup

    • Direction Faces: West

    • Garage Spaces: 1

    • Attached Garage: Yes

    • Garage: Yes

    • Living Area: 1350

    • Water Source: Public

    • Subdivision Name: FLORIDA SHORES 04

Similar Homes

2409 KUMQUAT DRIVE placeholder 2409 KUMQUAT DRIVE
New
For Sale
House
$335,000
3 bds 2 ba 1,605 sqft
2409 KUMQUAT DRIVE
2726 SABAL PALM DRIVE placeholder 2726 SABAL PALM DRIVE
New
For Sale
House
$230,000
3 bds 2 ba 1,511 sqft
2726 SABAL PALM DRIVE
706 E STARBOARD AVENUE placeholder 706 E STARBOARD AVENUE
New
For Sale
$349,000
2 bds 2 ba 1,905 sqft
706 E STARBOARD AVENUE
236 MEADOW LAKE DRIVE placeholder 236 MEADOW LAKE DRIVE
1 days
For Sale
House
$349,000
3 bds 2 ba 1,385 sqft
236 MEADOW LAKE DRIVE
111 NEW HAMPSHIRE STREET placeholder 111 NEW HAMPSHIRE STREET
1 days
For Sale
House
$299,000
2 bds 1 ba 575 sqft
111 NEW HAMPSHIRE STREET
3221 LIME TREE DRIVE placeholder 3221 LIME TREE DRIVE
3 days
For Sale
House
$345,000
3 bds 2 ba 1,288 sqft
3221 LIME TREE DRIVE
227 TWO OAKS DRIVE placeholder 227 TWO OAKS DRIVE
3 days
For Sale
House
$329,000
3 bds 2 ba 1,618 sqft
227 TWO OAKS DRIVE
3307 KUMQUAT DRIVE placeholder 3307 KUMQUAT DRIVE
3 days
For Sale
House
$330,000
3 bds 2 ba 1,332 sqft
3307 KUMQUAT DRIVE

The multiple listing information is provided by the Stellar MLS from a copyrighted compilation of listings. The compilation of listings and each individual listing are ©2025-present Stellar MLS. All Rights Reserved. The information provided is for consumers' personal, noncommercial use and may not be used for any purpose other than to identify prospective properties consumers may be interested in purchasing. All properties are subject to prior sale or withdrawal. All information provided is deemed reliable but is not guaranteed accurate, and should be independently verified. Listing courtesy of: WATSON REALTY CORP.