Contact
Tell us about your needs

16118 WILSON BOULEVARD

House For Sale
$340,000

BTC: 11.33333333

ETH: 170.00000000

-$15K (2025/10/03)
150 days
3 bds
2 ba
1,728 sqft
Est. Estimated sales range: $0 - $0
$0

Overview

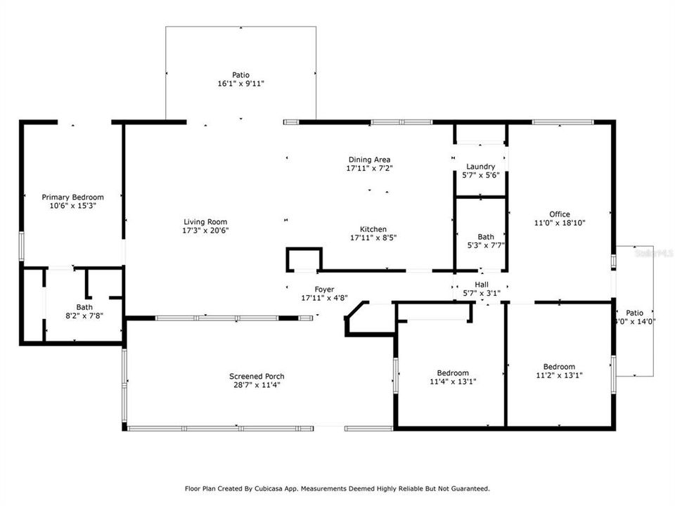
Motivated Seller! Welcome to this beautifully updated 3-bedroom, 2-bath home nestled in the heart of tranquil Masaryktown. Set on a spacious .39-acre corner lot, this property perfectly blends comfort, style, and functionality. Step inside to find an open-concept layout featuring plank-style tile flooring, cathedral ceilings, and a split-bedroom floor plan designed for modern living and easy care. The renovated eat-in kitchen is a true standout, offering granite countertops, updated cabinetry, and stainless steel appliances—perfect for both everyday meals and entertaining guests. Enjoy two versatile living areas, providing plenty of space for a home office, craft room, or media room. Outside, the generous lot offers room to relax, garden, or create your dream outdoor retreat. Located in a quiet, established neighborhood, this home provides the peace and privacy you want—just minutes from local shops, dining, and everyday conveniences. Don’t miss your chance to own this move-in ready gem in one of Masaryktown’s most serene settings!

Location

Facts and features

Type:
Residential
Parking:
Driveway
Year Built:
1991
Lot:
0.39 Acres
Heating:
Central / Electric
Price/sqft:
$197
Cooling:
Central Air
HOA:
No Data
All facts and features
  • Flooring

    • Carpet

    • Tile

    Heating

    • Central

    • Electric

    Cooling

    • Central Air

    Appliances

    • Dishwasher

    • Microwave

    • Range

    • Refrigerator

    • Water Filtration System

    • Water Softener

    Other interior features

    • Cathedral Ceiling(s)

    • Ceiling Fan(s)

    • Eating Space In Kitchen

    • Kitchen/Family Room Combo

    • Open Floorplan

    • Primary Bedroom Main Floor

    • Stone Counters

    Bedrooms and bathrooms

    • Bedrooms: 3

    • Full bathrooms: 2

  • Parking

    • Driveway

    Property

    • Levels: One

    • Exterior Features: Lighting / Rain Gutters / Sliding Doors

    Lot

    • Lot: 0.39 Acres

    Other Property Information

    • Parcel Number: R3622318269006100110

    • Zoning: RESI

  • Type and style

    • Property Type: Residential

    • Property Sub Type: Single Family Residence

  • Utility

    • BB/HS Internet Available

    • Cable Available

  • Other financial information

    • Annual tax amount: $1,226

  • Source details

    • MLS ID: A4658343

    Other facts

    • Construction Materials: Block / Stucco

    • Foundation Details: Slab

    • Laundry Features: Inside / Laundry Room

    • Lot Features: Corner Lot

    • Patio And Porch Features: Patio / Screened

    • Direction Faces: Northeast

    • Other Structures: Shed(s)

    • Architectural Style: Ranch

    • Garage Spaces: 2

    • Attached Garage: Yes

    • Garage: Yes

    • Living Area: 1728

    • Water Source: Well

    • Subdivision Name: MASARYKTOWN

Similar Homes

3357 AMBASSADOR AVENUE placeholder 3357 AMBASSADOR AVENUE
2 days
For Sale
House
$388,000
3 bds 2 ba 1,421 sqft
3357 AMBASSADOR AVENUE
15690 STONE HOUSE DRIVE placeholder 15690 STONE HOUSE DRIVE
14 days
For Sale
House
$325,000
3 bds 2 ba 1,443 sqft
15690 STONE HOUSE DRIVE
17367 EAGLE TRACE DRIVE placeholder 17367 EAGLE TRACE DRIVE
15 days
For Sale
House
$335,000
3 bds 2 ba 1,751 sqft
17367 EAGLE TRACE DRIVE
14049 CANDIA STREET placeholder 14049 CANDIA STREET
15 days
For Sale
House
$306,900
3 bds 2 ba 1,268 sqft
14049 CANDIA STREET
398 SEA HOLLY DRIVE placeholder 398 SEA HOLLY DRIVE
17 days
For Sale
House
$399,000
3 bds 2 ba 1,814 sqft
398 SEA HOLLY DRIVE
15193 STONE HOUSE DRIVE placeholder 15193 STONE HOUSE DRIVE
20 days
For Sale
House
$379,900
4 bds 2 ba 2,612 sqft
15193 STONE HOUSE DRIVE
15476 STONE HOUSE DRIVE placeholder 15476 STONE HOUSE DRIVE
-$6K (2025/12/01)
For Sale
House
$380,000
4 bds 2 ba 2,612 sqft
15476 STONE HOUSE DRIVE
439 OLD WINDSOR WAY placeholder 439 OLD WINDSOR WAY
-$6K (2025/11/18)
For Sale
House
$349,000
4 bds 2 ba 1,894 sqft
439 OLD WINDSOR WAY

The multiple listing information is provided by the Stellar MLS from a copyrighted compilation of listings. The compilation of listings and each individual listing are ©2025-present Stellar MLS. All Rights Reserved. The information provided is for consumers' personal, noncommercial use and may not be used for any purpose other than to identify prospective properties consumers may be interested in purchasing. All properties are subject to prior sale or withdrawal. All information provided is deemed reliable but is not guaranteed accurate, and should be independently verified. Listing courtesy of: 365 REALTY GROUP INC