Contact
Tell us about your needs

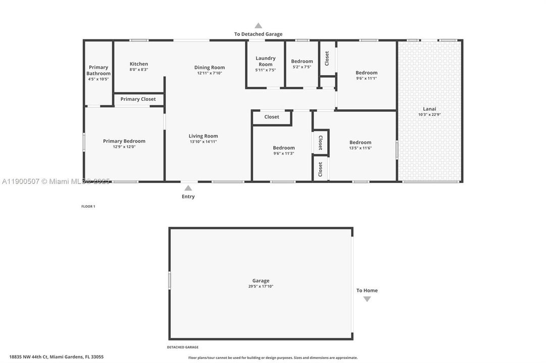
18835 NW 44th Ct, Miami Gardens FL 33055

House Active With Contract
$440,000

BTC: 14.66666667

ETH: 220.00000000

10 days
4 bds
2 ba
1,200 sqft
Est. Estimated sales range: $0 - $0
$0

Overview

Welcome to a true 4 bed 2 bath home w/ rare 2 car garage. A modern Split Floor plan w/ en-suite Primary Bedroom, & 3 more bedrooms that share second full bath. Brand New White Kitchen. Roof (2015), AC (2016), Water heater (2018). ALL PVC and Copper Plumbing, Brand new gated metal fence for security, and nice courtyard in front and plenty of room for pool, trucks, rv's, boat. Conveniently located near major highways, schools, parks, and shopping centers, only 25 mins from Miami International Airport and 10 mins to Hard Rock Stadium. No HOA. Conventional/FHA/VA financing available. Bring your offers. Great comps: Smaller 18930 NW 43rd Ave a 3 bed/1 bath closed $519k. See Inspection Report. *no more showings, seller has several offers they will pick from *

Location

Facts and features

Type:
Residential
Parking:
Attached Carport / Covered / Driveway
Year Built:
1959
Lot:
7500 Square Feet
Heating:
Central
Price/sqft:
$367
Cooling:
Ceiling Fan(s) / Central Air
HOA:
No Data
All facts and features
  • Flooring

    • Carpet

    • Tile

    Heating

    • Central

    Cooling

    • Ceiling Fan(s)

    • Central Air

    Appliances

    • Dishwasher

    • Dryer

    • Electric Water Heater

    • Microwave

    • Electric Range

    • Refrigerator

    • Washer

    Other interior features

    • First Floor Entry

    • Closet Cabinetry

    • French Doors

    • Utility Room/Laundry

    Bedrooms and bathrooms

    • Bedrooms: 4

    • Full bathrooms: 2

  • Parking

    • Attached Carport

    • Covered

    • Driveway

    Property

    • Exterior Features: Lighting

    Lot

    • Lot: 7500 Square Feet

    Other Property Information

    • Parcel Number: 34-21-05-010-0440

    • Zoning: 0100

  • Type and style

    • Property Type: Residential

    • Property Sub Type: Single Family Residence

  • Other financial information

    • Annual tax amount: $2,189

  • Source details

    • MLS ID: A11900507

    Other facts

    • Construction Materials: CBS Construction

    • Laundry Features: Utility Room/Laundry

    • Lot Features: Less Than 1/4 Acre Lot

    • Patio And Porch Features: Patio

    • Direction Faces: North

    • Architectural Style: Detached / One Story / Ranch

    • Garage Spaces: 2

    • Garage: Yes

    • Living Area: 1200

    • Water Source: Municipal Water

    • Subdivision Name: REALSITE EST SEC 4

Similar Homes

7631 Harbour Blvd, Miramar FL 33023 placeholder 7631 Harbour Blvd, Miramar FL 33023
2 days
Active With Contract
House
$420,000
3 bds 2 ba 1,611 sqft
7631 Harbour Blvd, Miramar FL 33023
3382 NW 197th Ter, Miami Gardens FL 33056 placeholder 3382 NW 197th Ter, Miami Gardens FL 33056
2 days
Active With Contract
House
$389,999
3 bds 2 ba 1,491 sqft
3382 NW 197th Ter, Miami Gardens FL 33056
17231 NW 52nd Pl, Miami Gardens FL 33055 placeholder 17231 NW 52nd Pl, Miami Gardens FL 33055
3 days
Active With Contract
House
$535,000
3 bds 1 ba 984 sqft
17231 NW 52nd Pl, Miami Gardens FL 33055
2251 NW 180th Ter, Miami Gardens FL 33056 placeholder 2251 NW 180th Ter, Miami Gardens FL 33056
3 days
Active With Contract
House
$370,000
3 bds 1 ba 1,154 sqft
2251 NW 180th Ter, Miami Gardens FL 33056
3260 NW 174th St, Miami Gardens FL 33056 placeholder 3260 NW 174th St, Miami Gardens FL 33056
4 days
Active With Contract
House
$560,000
3 bds 2 ba 1,759 sqft
3260 NW 174th St, Miami Gardens FL 33056
18120 NW 25th Ave, Miami Gardens FL 33056 placeholder 18120 NW 25th Ave, Miami Gardens FL 33056
4 days
Active With Contract
House
$570,000
3 bds 2 ba 1,603 sqft
18120 NW 25th Ave, Miami Gardens FL 33056
18947 NW 45th Ave, Miami Gardens FL 33055 placeholder 18947 NW 45th Ave, Miami Gardens FL 33055
5 days
Active With Contract
House
$410,000
3 bds 2 ba 1,120 sqft
18947 NW 45th Ave, Miami Gardens FL 33055
3301 NW 174th St, Miami Gardens FL 33056 placeholder 3301 NW 174th St, Miami Gardens FL 33056
5 days
Active With Contract
House
$499,900
3 bds 2 ba 1,356 sqft
3301 NW 174th St, Miami Gardens FL 33056

The multiple listing information is provided by the Miami Association of REALTORS® from a copyrighted compilation of listings. The compilation of listings and each individual listing are ©2025-present Miami Association of REALTORS®. All Rights Reserved. The information provided is for consumers' personal, noncommercial use and may not be used for any purpose other than to identify prospective properties consumers may be interested in purchasing. All properties are subject to prior sale or withdrawal. All information provided is deemed reliable but is not guaranteed accurate, and should be independently verified. Listing courtesy of: Keller Williams Dedicated Professionals