Contact
Tell us about your needs

201 CAVALLINI DRIVE

House Active With Contract
$489,000

BTC: 5.63039724

ETH: 244.50000000

-$71K (2025/11/14)
272 days
3 bds
2 ba
1,711 sqft
Est. Estimated sales range: $0 - $0
$0

Overview

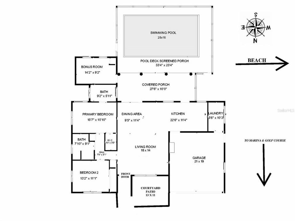
Under contract-accepting backup offers. READY TO GO!! Welcome to SORRENTO SOUTH, a fabulous community "WEST OF THE TRAIL" in NOKOMIS BEACH! This wonderful, 1700+ sq foot 2 bedroom+ BONUS ROOM, 2.5 bath POOL HOME sits on an extra-large 16,000-square-foot lot with a fully fenced backyard. The open floor plan features a spacious Great Room that seamlessly flows into the expansive & irresistible covered & screened poolside lanai, measuring an impressive 28x10! The stylish oversized kitchen spans an impressive 23 feet, boasting abundant neutral wood cabinetry, granite countertops with breakfast bar. Upgraded appliances include a sleek stainless-steel hood positioned over the central island, adding both function & modern flair to the space, plus NEW Bosch dishwasher, & NEW Hi-End Professional Frigidaire refrigerator. The Master Suite has vinyl flooring & an updated en-suite bathroom featuring a soaking tub, new vanity, toilet, plus walk-in closet. 2nd bedroom is large enough for two twin beds or a king-size. The DETACHED BONUS ROOM, accessed from the covered lanai is flexible & provides a variety options such as, a perfect guestroom, den, library, home office, or roll all those choices into one with a “Murphy Bed”! Outstanding features & updates of this beautiful home include a “one year new” 50 Year Standing Seam Metal Roof, raised-panel doors throughout, updated interior lighting, freshly painted all interior walls & ceilings, courtyard style patio at the front entry, resurfaced pool, new pool pump, electric service panel, extra-wide driveway, oversized garage with separate laundry room, & a cozy brick-paver firepit, perfect for enjoying cool Florida evenings. Plus so close to the beach at this location, yet NOT IN A FLOOD ZONE! Also, conveniently located right in the Sorrento South community which you can walk to, is the Bayshore Executive Public Golf Club & the marina where an opportunity could be possible for a boat slip rental from a private owner! Lastly, Sorrento South is deed-restricted keeping the neighborhood neat, but the HOA fee is only $300 a year! Embrace the Beach Lifestyle from this outstanding location that offers “back road” access with the preferred mode of transportation of a golf cart or bicycle! Easy, peesy ride to Nokomis Beach, Waterfront dining with Live Music daily, all the conveniences of Publix, pharmacy, dog groomers, nail salon, boutique shopping & a great deal more! Free of charge, experience the Gulf Breezes, sounds of the Waves, Water Birds, glimpse of dolphin & manatee swimming by, the occasional bridge opening, & Vibrant Rotating Colors of sunset Flooding the Sky! Only 10 minutes to Historic Downtown Venice Island, with shopping, dining, live music, weekly farmers market & more. Just a short trip to the World-Famous Siesta Key & Downtown Sarasota. Notably, Nokomis Beach & Casey Key are the ONLY beach communities in the region with no high rises, no traffic jams & an expressway from Tamiami Trail to I-75 creating easy access to I-75 & all nearby airports. The allure of this locale is undeniable, with nature & beauty, carefree easy lifestyle, year-round Sunsets, watersports, bountiful fishing, boating, long walks on the beach, strolling down the beach collecting sharks’ teeth & shells, cookouts & much more! A perfect place to enjoy, invest, or both! Exhale, Relax & Feel Time Stand Still, after all, Nokomis Beach is not just a Place, but a State-of-Mind!

Location

Facts and features

Type:
Residential
Parking:
No Data
Year Built:
1964
Lot:
0.37 Acres
Heating:
Central / Electric
Price/sqft:
$286
Cooling:
Central Air
HOA:
$300
All facts and features
  • Flooring

    • Ceramic Tile

    • Laminate

    • Vinyl

    Heating

    • Central

    • Electric

    Cooling

    • Central Air

    Appliances

    • Dishwasher

    • Disposal

    • Dryer

    • Electric Water Heater

    • Range

    • Range Hood

    • Refrigerator

    • Washer

    Other interior features

    • Ceiling Fan(s)

    • Primary Bedroom Main Floor

    • Stone Counters

    • Walk-In Closet(s)

    • Window Treatments

    Bedrooms and bathrooms

    • Bedrooms: 3

    • Bathrooms: 1

    • Full bathrooms: 2

  • Property

    • Levels: One

    • Pool Private: Yes

    • Exterior Features: Rain Gutters

    Lot

    • Lot: 0.37 Acres

    Other Property Information

    • Parcel Number: 0166090022

    • Zoning: RSF1

  • Type and style

    • Property Type: Residential

    • Property Sub Type: Single Family Residence

  • Utility

    • Cable Connected

    • Electricity Connected

    • Public

    • Sewer Connected

    • Water Connected

  • Other financial information

    • HOA: $300

    • HOA Frequency: Annually

    • Annual tax amount: $5,214

  • Source details

    • MLS ID: N6137734

    Other facts

    • Construction Materials: Block

    • Foundation Details: Slab

    • Laundry Features: In Garage / Laundry Room

    • Patio And Porch Features: Front Porch / Rear Porch

    • Pool Features: Gunite / In Ground

    • Direction Faces: North

    • Architectural Style: Florida

    • Garage Spaces: 2

    • Attached Garage: Yes

    • Garage: Yes

    • Living Area: 1711

    • Water Source: Public

    • Subdivision Name: SORRENTO SOUTH

Similar Homes

147 SHADY PINE LANE placeholder 147 SHADY PINE LANE
4 days
Active With Contract
House
$479,900
3 bds 2 ba 1,736 sqft
147 SHADY PINE LANE
291 LAUREL HOLLOW DRIVE UNIT 66 placeholder 291 LAUREL HOLLOW DRIVE UNIT 66
5 days
Active With Contract
House
$464,900
3 bds 2 ba 1,822 sqft
291 LAUREL HOLLOW DRIVE UNIT 66
6117 WIRE GRASS COURT placeholder 6117 WIRE GRASS COURT
11 days
Active With Contract
House
$500,000
2 bds 2 ba 1,655 sqft
6117 WIRE GRASS COURT
218 LAUREL HOLLOW DRIVE UNIT 10 placeholder 218 LAUREL HOLLOW DRIVE UNIT 10
21 days
Active With Contract
House
$389,900
2 bds 2 ba 1,229 sqft
218 LAUREL HOLLOW DRIVE UNIT 10
15513 FOXTAIL LANE placeholder 15513 FOXTAIL LANE
-$50K (2025/09/22)
Active With Contract
House
$559,409
4 bds 3 ba 2,600 sqft
15513 FOXTAIL LANE
320 BROWNS ROAD placeholder 320 BROWNS ROAD
-$14K (2025/10/27)
Active With Contract
House
$354,900
3 bds 2 ba 1,066 sqft
320 BROWNS ROAD
2321 GOYA DRIVE placeholder 2321 GOYA DRIVE
-$75K (2025/12/15)
Active With Contract
House
$350,000
2 bds 2 ba 1,545 sqft
2321 GOYA DRIVE
447 OAK POINT ROAD placeholder 447 OAK POINT ROAD
49 days
Active With Contract
House
$545,000
4 bds 3 ba 2,688 sqft
447 OAK POINT ROAD

The multiple listing information is provided by the Stellar MLS from a copyrighted compilation of listings. The compilation of listings and each individual listing are ©2025-present Stellar MLS. All Rights Reserved. The information provided is for consumers' personal, noncommercial use and may not be used for any purpose other than to identify prospective properties consumers may be interested in purchasing. All properties are subject to prior sale or withdrawal. All information provided is deemed reliable but is not guaranteed accurate, and should be independently verified. Listing courtesy of: AYERS AND ASSOCIATES REAL ESTATE