Contact
Tell us about your needs

2210 STRATTEN DRIVE

House Active With Contract
$599,990

BTC: 6.17995357

ETH: 193.54516129

-$49K (2025/10/16)
74 days
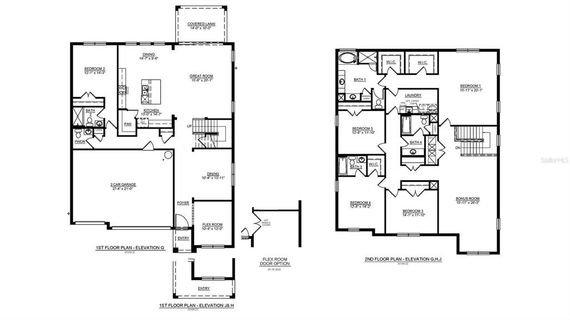
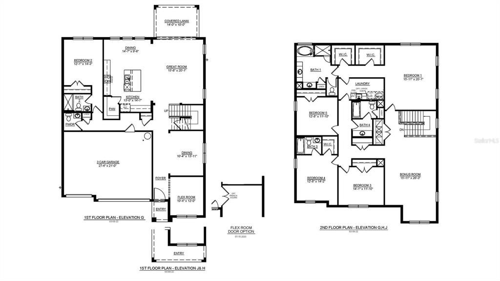
5 bds
4 ba
3,975 sqft
Est. Estimated sales range: $0 - $0
$0

Overview

One or more photo(s) has been virtually staged. Under Construction. The builder is offering buyers up to $25,000 towards closing costs with the use of a preferred lender and title company. Archer at Two Rivers is a vibrant new home community in Zephyrhills, Florida, conveniently located off SR-56. This exceptional location places you at the heart of a growing city, with easy access to major roadways such as Morris Bridge Road and I-75, just 15 minutes away. Living at Two Rivers means being close to endless entertainment, dining, and shopping options. Explore The Grove, featuring a movie theater and game center, or visit KRATES for unique local shops and dining. Just minutes away, you’ll find the Tampa Premium Outlets and the Wiregrass Mall, home to a variety of restaurants like GrillSmith, Noble Crust, and The Living Room, along with other dining and retail establishments. For family-friendly fun, the Main Event Entertainment Center offers bowling, laser tag, and arcade games. This community also provides proximity to premier healthcare facilities, including St. Joseph’s Hospital and AdventHealth Wesley Chapel, as well as top-rated Pasco County Schools. Sports enthusiasts will appreciate being near the Wesley Chapel Sports Complex and AdventHealth Center Ice, offering ice skating and other activities. Two Rivers homes are thoughtfully designed with modern features, including all gas appliances, such as tankless gas water heater and gas stoves ensuring energy efficiency and convenience. Homes are constructed with concrete block on both the first and second stories for durability and come equipped with D.R. Horton’s Smart Home System. Backed by America’s #1 Builder since 2002, Two Rivers combines quality, style, and an unbeatable location. Other inventory options may be available in this community. Please reach out for list of availability. Pictures, photographs, colors, features, and sizes are for illustration purposes only and will vary from the homes as built. Home and community information, including pricing, included features, terms, availability, and amenities, are subject to change and prior sale at any time without notice or obligation. Materials may vary based on availability. D.R. Horton Reserves all Rights.

Location

Facts and features

Type:
Residential
Parking:
No Data
Year Built:
2025
Lot:
0.17 Acres
Heating:
Central
Price/sqft:
$151
Cooling:
Central Air
HOA:
$70
All facts and features
  • Flooring

    • Carpet

    • Other

    Heating

    • Central

    Cooling

    • Central Air

    Appliances

    • Dishwasher

    • Microwave

    • Range

    Other interior features

    • Open Floorplan

    Bedrooms and bathrooms

    • Bedrooms: 5

    • Bathrooms: 1

    • Full bathrooms: 4

  • Property

    • Levels: Two

    • Exterior Features: Sliding Doors

    Lot

    • Lot: 0.17 Acres

    Other Property Information

    • Parcel Number: 2826210050006000070

    • Zoning: MPUD

  • Type and style

    • Property Type: Residential

    • Property Sub Type: Single Family Residence

  • Utility

    • Natural Gas Available

    • Natural Gas Connected

    • Underground Utilities

  • Other financial information

    • HOA: $70

    • HOA Frequency: Monthly

  • Source details

    • MLS ID: TB8415313

    Other facts

    • Construction Materials: Block / Stucco

    • Foundation Details: Slab

    • Laundry Features: Laundry Room

    • Window Features: Double Pane Windows / Low-Emissivity Windows

    • Direction Faces: Northwest

    • Garage Spaces: 3

    • Attached Garage: Yes

    • Garage: Yes

    • Living Area: 3975

    • Water Source: Public

    • Subdivision Name: TWO RIVERS

Similar Homes

17301 MORRIS BRIDGE ROAD placeholder 17301 MORRIS BRIDGE ROAD
New
Active With Contract
Lots/Land
$499,000
0 room(s)
17301 MORRIS BRIDGE ROAD
3650 FLORIDA RANCH BOULEVARD placeholder 3650 FLORIDA RANCH BOULEVARD
5 days
Active With Contract
House
$530,000
4 bds 3 ba 1,836 sqft
3650 FLORIDA RANCH BOULEVARD
36990 SAGEMOOR DRIVE placeholder 36990 SAGEMOOR DRIVE
12 days
Active With Contract
House
$453,390
5 bds 3 ba 2,470 sqft
36990 SAGEMOOR DRIVE
2377 STRATTEN DRIVE placeholder 2377 STRATTEN DRIVE
13 days
Active With Contract
House
$541,740
4 bds 3 ba 3,313 sqft
2377 STRATTEN DRIVE
37392 GUNNISON DRIVE placeholder 37392 GUNNISON DRIVE
+$2K (2025/12/19)
Active With Contract
House
$696,380
4 bds 4 ba 4,272 sqft
37392 GUNNISON DRIVE
37010 SAGEMOOR DRIVE placeholder 37010 SAGEMOOR DRIVE
16 days
Active With Contract
House
$454,340
5 bds 3 ba 2,470 sqft
37010 SAGEMOOR DRIVE
36744 SAGEMOOR DRIVE placeholder 36744 SAGEMOOR DRIVE
20 days
Active With Contract
House
$546,490
5 bds 3 ba 3,184 sqft
36744 SAGEMOOR DRIVE
36858 SAGEMOOR DRIVE placeholder 36858 SAGEMOOR DRIVE
20 days
Active With Contract
House
$446,490
5 bds 3 ba 2,470 sqft
36858 SAGEMOOR DRIVE

The multiple listing information is provided by the Stellar MLS from a copyrighted compilation of listings. The compilation of listings and each individual listing are ©2026-present Stellar MLS. All Rights Reserved. The information provided is for consumers' personal, noncommercial use and may not be used for any purpose other than to identify prospective properties consumers may be interested in purchasing. All properties are subject to prior sale or withdrawal. All information provided is deemed reliable but is not guaranteed accurate, and should be independently verified. Listing courtesy of: D R HORTON REALTY OF TAMPA LLC