Contact
Tell us about your needs

23400 SW 153rd Ave, Homestead FL 33032

House Recently Sold
$830,000

BTC: 9.61204401

ETH: 283.66370472

Sold on: 2025-03-17
211 days
3 bds
2 ba
2,618 sqft
Est. Estimated sales range: $0 - $0
$0

Overview

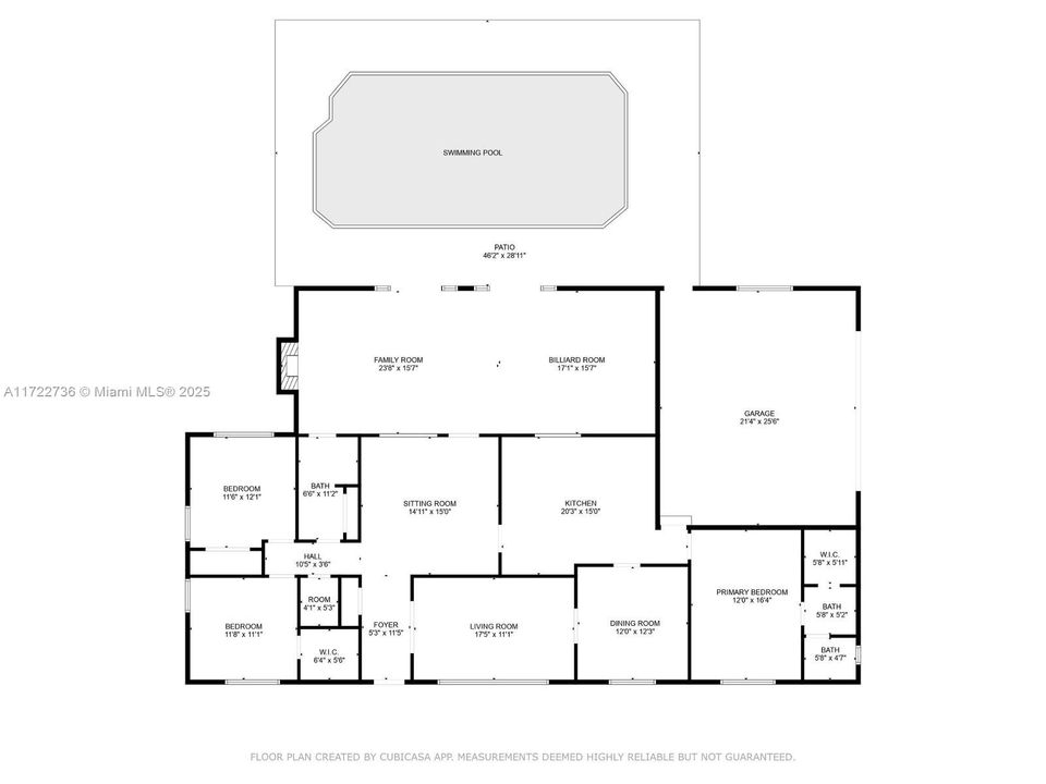
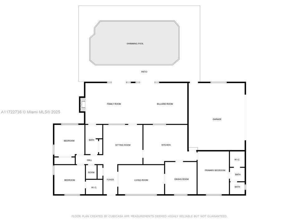
Custom ranch home renovated with brand new roof, state of the art new Trane xv20 5 ton variable speed AC unit with dehumidifier, new water heater, impact windows and doors. Beautiful large porte cochere with a custom brick driveway. Split floor plan with travertine floors in primary bedroom, wood burning fore place, oversized two car garage, and wired for you to hook up generator. Located in a premiere, highly sought after, Redland location.

Location

Facts and features

Type:
Residential
Parking:
Circular Driveway / Covered / Rv/Boat Parking
Year Built:
1970
Lot:
35604 Square Feet
Heating:
Central
Price/sqft:
$315
Cooling:
Central Air
HOA:
No Data
All facts and features
  • Flooring

    • Carpet

    • Other

    • Tile

    Heating

    • Central

    Cooling

    • Central Air

    Appliances

    • Dishwasher

    • Microwave

    • Electric Range

    • Refrigerator

    Other interior features

    • First Floor Entry

    • Walk-In Closet(s)

    • Utility/Laundry In Garage

    Bedrooms and bathrooms

    • Bedrooms: 3

    • Full bathrooms: 2

  • Parking

    • Circular Driveway

    • Covered

    • Rv/Boat Parking

    Lot

    • Lot: 35604 Square Feet

    Other Property Information

    • Parcel Number: 30-69-21-001-0180

    • Zoning: 2300

  • Type and style

    • Property Type: Residential

    • Property Sub Type: Single Family Residence

  • Other financial information

    • Annual tax amount: $9,822

  • Source details

    • MLS ID: A11722736

    Other facts

    • Construction Materials: Concrete Block Construction

    • Laundry Features: In Garage / Washer/Dryer Hook-Up

    • Lot Features: 3/4 To Less Than 1 Acre Lot

    • Patio And Porch Features: Patio

    • Pool Features: Above Ground

    • Direction Faces: East

    • Architectural Style: Detached / One Story

    • Garage Spaces: 2

    • Garage: Yes

    • Living Area: 2618

    • Water Source: Well

    • Subdivision Name: SILVER PALM ESTS PT 1

Similar Homes

23070 SW 130 Ave, Miami FL 33032 placeholder 23070 SW 130 Ave, Miami FL 33032
New
Recently Sold
Townhouse
$575,000
3 bds 2 ba 1,792 sqft
23070 SW 130 Ave, Miami FL 33032
14584 SW 261 TERR, Homestead FL 33032 placeholder 14584 SW 261 TERR, Homestead FL 33032
New
Recently Sold
Townhouse
$660,000
4 bds 3 ba
14584 SW 261 TERR, Homestead FL 33032
16625 SW 197th Ter, Miami FL 33187 placeholder 16625 SW 197th Ter, Miami FL 33187
1 days
Recently Sold
House
$800,000
3 bds 2 ba 2,684 sqft
16625 SW 197th Ter, Miami FL 33187
26424 SW 173rd Pl, Homestead FL 33031 placeholder 26424 SW 173rd Pl, Homestead FL 33031
1 days
Recently Sold
House
$869,900
4 bds 2 ba 2,366 sqft
26424 SW 173rd Pl, Homestead FL 33031
16780 SW 276th St, Homestead FL 33031 placeholder 16780 SW 276th St, Homestead FL 33031
1 days
Recently Sold
House
$618,000
3 bds 2 ba 1,540 sqft
16780 SW 276th St, Homestead FL 33031
27570 SW 135th Ave Rd, Homestead FL 33032 placeholder 27570 SW 135th Ave Rd, Homestead FL 33032
2 days
Recently Sold
House
$624,000
5 bds 3 ba 2,944 sqft
27570 SW 135th Ave Rd, Homestead FL 33032
20157 SW 129th Ct, Miami FL 33177 placeholder 20157 SW 129th Ct, Miami FL 33177
2 days
Recently Sold
House
$800,000
4 bds 2 ba 2,256 sqft
20157 SW 129th Ct, Miami FL 33177
12844 SW 256th Ter, Homestead FL 33032 placeholder 12844 SW 256th Ter, Homestead FL 33032
2 days
Recently Sold
House
$655,000
4 bds 3 ba 1,886 sqft
12844 SW 256th Ter, Homestead FL 33032

The multiple listing information is provided by the Miami Association of REALTORS® from a copyrighted compilation of listings. The compilation of listings and each individual listing are ©2025-present Miami Association of REALTORS®. All Rights Reserved. The information provided is for consumers' personal, noncommercial use and may not be used for any purpose other than to identify prospective properties consumers may be interested in purchasing. All properties are subject to prior sale or withdrawal. All information provided is deemed reliable but is not guaranteed accurate, and should be independently verified. Listing courtesy of: EXP Realty LLC