Contact
Tell us about your needs

3013 S WEST SHORE

House For Sale
$3,799,000

BTC: 126.63333333

ETH: 1,899.50000000

38 days
5 bds
5 ba
5,841 sqft
Est. Estimated sales range: $0 - $0
$0

Overview

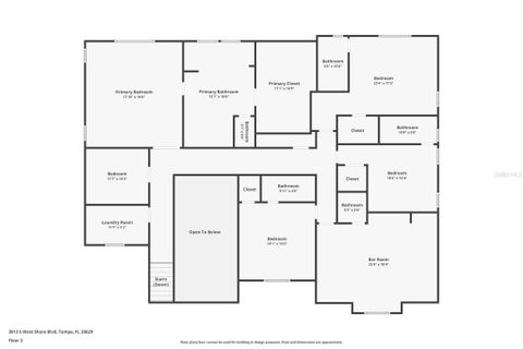
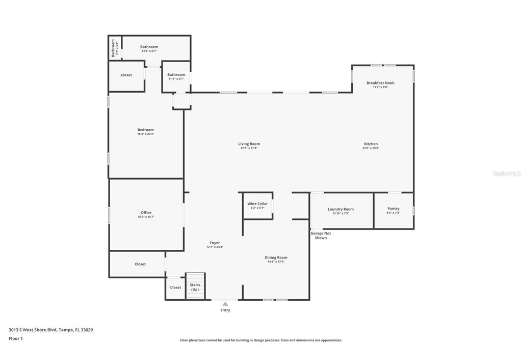
Introducing Westshore Reserve, an exclusive new construction estate in the heart of Sunset Park, built by Kingfisher Development—a highly regarded local builder known for exceptional quality, timeless design, and superior craftsmanship.This custom residence delivers refined modern luxury on an oversized .38-acre lot, privately set back from the street and secured by a gated entry. Thoughtfully designed for both elegance and livability, the home showcases impeccable detail, custom finishes, and seamless indoor-outdoor integration.A dramatic 22-foot two-story foyer anchors the home, featuring a cable-railed overlook and abundant natural light. The main level includes a private office with a custom accent wall, a formal dining room with detailed ceiling design, and a Butler’s Bar leading to a glass-enclosed wine room—designed for elevated entertaining. The chef’s kitchen features a Wolf natural gas range, Subzero paneled refrigerator, expansive walk-in pantry, and a sunlit breakfast nook overlooking the outdoor oasis.The open-concept great room opens to an outdoor oasis featuring a massive, private backyard with lush tropical landscaping, a saltwater inground pool and spa, and an expansive covered lanai complete with a fully equipped outdoor kitchen, grill station, fireplace, and a dedicated first-floor pool bath—the perfect setting for effortless entertaining and resort-style living. The first-floor suite offers flexibility as a guest or primary bedroom, with a walk-in closet and spa-like bath. The upstairs primary suite is a true statement of luxury, featuring a spa-inspired bathroom with a chandelier suspended above the soaking tub, and an oversized walk-in shower with dual entries and dual rainfall showerheads. The space is complemented by his and her vanities and an impeccably designed walk-in closet, complete with a center island and custom-built-ins crafted with exceptional detail and quality. Three additional bedrooms each offer private baths and walk-in closets, joined by a bonus room with a wet bar, a half bath, and a flex space ideal for a nursery, home gym, or second office.Additional highlights include 10-foot ceilings throughout, light wood flooring, upstairs and downstairs laundry options, a mudroom, and a 4+ car garage with EV charging. Constructed with solid block, impact-rated doors and windows, and elevated above FEMA standards, the home is also prewired for a whole-home generator and custom security, audio, and visual systems.As the fourth of five custom homes within Westshore Reserve—each built by the same trusted local developer—this residence represents the pinnacle of South Tampa craftsmanship. Zoned for A-rated schools (Mabry, Coleman, Plant) and minutes from Tampa’s best dining, shopping, and waterfront recreation, it redefines timeless luxury and elevated coastal living.

Location

Florida TAMPA 33629 House For Sale

Facts and features

Type:
Residential
Parking:
Driveway / Electric Vehicle Charging Station(s) / Garage Door Opener / Ground Level / Oversized / Tandem
Year Built:
2025
Lot:
0.38 Acres
Heating:
Central / Electric
Price/sqft:
$650
Cooling:
Central Air
HOA:
No Data
All facts and features
  • Flooring

    • Carpet

    • Engineered Hardwood

    • Tile

    Heating

    • Central

    • Electric

    Cooling

    • Central Air

    Appliances

    • Bar Fridge

    • Built-In Oven

    • Convection Oven

    • Dishwasher

    • Disposal

    • Exhaust Fan

    • Freezer

    • Ice Maker

    • Microwave

    • Range

    • Range Hood

    • Refrigerator

    • Tankless Water Heater

    • Touchless Faucet

    Other interior features

    • Built-in Features

    • Ceiling Fan(s)

    • Eating Space In Kitchen

    • High Ceilings

    • Kitchen/Family Room Combo

    • Open Floorplan

    • Thermostat

    • Walk-In Closet(s)

    Bedrooms and bathrooms

    • Bedrooms: 5

    • Bathrooms: 2

    • Full bathrooms: 5

  • Parking

    • Driveway

    • Electric Vehicle Charging Station(s)

    • Garage Door Opener

    • Ground Level

    • Oversized

    • Tandem

    Property

    • Levels: Two

    • Pool Private: Yes

    • Exterior Features: Awning(s) / Irrigation System / Lighting / Outdoor Grill / Outdoor Kitchen / Private Mailbox / Rain Gutters / Shade Shutter(s) / Sidewalk / Sliding Doors

    Lot

    • Lot: 0.38 Acres

    Other Property Information

    • Parcel Number: A3229183T600000000014.0

    • Zoning: RS-75

  • Type and style

    • Property Type: Residential

    • Property Sub Type: Single Family Residence

  • Utility

    • BB/HS Internet Available

    • Electricity Connected

    • Natural Gas Connected

    • Public

    • Sewer Connected

    • Underground Utilities

    • Water Connected

  • Other financial information

    • Annual tax amount: $6,465

  • Source details

    • MLS ID: TB8441359

    Other facts

    • Construction Materials: Block / Stucco

    • Foundation Details: Stem Wall

    • Fireplace Features: Gas / Insert / Outside

    • Laundry Features: Inside

    • Lot Features: City Lot / Landscaped / Oversized Lot / Sidewalk

    • Patio And Porch Features: Covered / Deck / Front Porch / Patio / Rear Porch

    • Pool Features: Deck / Gunite / Heated / In Ground / Lighting / Pool Alarm / Salt Water

    • Window Features: Storm Window(s)

    • Direction Faces: East

    • Other Structures: Outdoor Kitchen

    • Fireplace: Yes

    • Garage Spaces: 4

    • Attached Garage: Yes

    • Garage: Yes

    • Living Area: 5841

    • Water Source: Public

    • Subdivision Name: OMAR SUB

Similar Homes

4709 W ESTRELLA STREET placeholder 4709 W ESTRELLA STREET
3 days
For Sale
House
$3,100,000
6 bds 5 ba 4,891 sqft
4709 W ESTRELLA STREET
3507 BAYSHORE BOULEVARD UNIT 1202 placeholder 3507 BAYSHORE BOULEVARD UNIT 1202
11 days
For Sale
Condo/Co-op
$2,750,000
3 bds 3 ba 3,125 sqft
3507 BAYSHORE BOULEVARD UNIT 1202
4602 W LOWELL AVENUE placeholder 4602 W LOWELL AVENUE
12 days
For Sale
House
$4,375,000
6 bds 6 ba 6,356 sqft
4602 W LOWELL AVENUE
420 S ROYAL POINCIANA DRIVE placeholder 420 S ROYAL POINCIANA DRIVE
15 days
For Sale
House
$3,500,000
5 bds 6 ba 5,777 sqft
420 S ROYAL POINCIANA DRIVE
423 S ROYAL POINCIANA DRIVE placeholder 423 S ROYAL POINCIANA DRIVE
16 days
For Sale
House
$3,595,000
5 bds 5 ba 5,197 sqft
423 S ROYAL POINCIANA DRIVE
5402 W LAUREL STREET UNIT 109 & 220 placeholder 5402 W LAUREL STREET UNIT 109 & 220
16 days
For Sale
Commercial
$3,625,000
0 room(s) 9,420 sqft
5402 W LAUREL STREET UNIT 109 & 220
4624 W SAN JOSE STREET placeholder 4624 W SAN JOSE STREET
18 days
For Sale
House
$4,745,000
5 bds 6 ba 6,584 sqft
4624 W SAN JOSE STREET
4912 YACHT CLUB DRIVE placeholder 4912 YACHT CLUB DRIVE
20 days
For Sale
House
$2,700,000
4 bds 5 ba 5,083 sqft
4912 YACHT CLUB DRIVE

The multiple listing information is provided by the Stellar MLS from a copyrighted compilation of listings. The compilation of listings and each individual listing are ©2025-present Stellar MLS. All Rights Reserved. The information provided is for consumers' personal, noncommercial use and may not be used for any purpose other than to identify prospective properties consumers may be interested in purchasing. All properties are subject to prior sale or withdrawal. All information provided is deemed reliable but is not guaranteed accurate, and should be independently verified. Listing courtesy of: SOUTH CEDAR REAL ESTATE, INC