Contact
Tell us about your needs

310 18th, Delray Beach, FL 33444

House Active With Contract
$2,199,000

BTC: 32.04040092

ETH: 1,091.55890894

-$88K (2025/12/10)
48 days
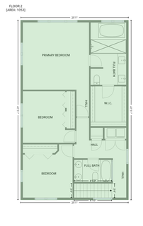
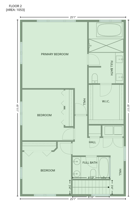
6 bds
5 ba
3,740 sqft
Est. Estimated sales range: $0 - $0
$0

Overview

Located in East Delray's coveted Lake Ida community, this spacious and versatile Key West-style residence blends timeless Florida charm with modern functionality, offering a lifestyle that's as vibrant as it is relaxing. Set on a lushly landscaped oversized lot (.33 acre), this 6-bedroom, 5.1-bathroom home spans 3,740 square feet and is perfectly suited for multi-generational living, entertaining, or simply enjoying the comfort of spacious indoor-outdoor living.A circular driveway winds through a palm-shaded front yard and leads to a 2-car garage, welcoming you to this tranquil retreat. Inside, the formal living room opens to sweeping views of a newly renovated 30-foot saltwater pool and oversized spa, while the adjacent formal dining room connects seamlessly to a well-appointed

Location

Facts and features

Type:
Residential
Parking:
Drive - Circular / Driveway / Garage - Attached
Year Built:
1956
Lot:
14560 Square Feet
Heating:
Central / Electric / Zoned
Price/sqft:
$588
Cooling:
Ceiling Fan / Central / Electric
HOA:
No Data
All facts and features
  • Flooring

    • Carpet

    • Tile

    • Wood Floor

    Heating

    • Central

    • Electric

    • Zoned

    Cooling

    • Ceiling Fan

    • Central

    • Electric

    Appliances

    • Dishwasher

    • Dryer

    • Range - Electric

    • Refrigerator

    • Smoke Detector

    • Storm Shutters

    • Washer

    • Water Heater - Elec

    Other interior features

    • Built-in Shelves

    • Closet Cabinets

    • Ctdrl/Vault Ceilings

    • Entry Lvl Lvng Area

    • Foyer

    • French Door

    • Pantry

    • Split Bedroom

    • Volume Ceiling

    • Walk-in Closet

    Bedrooms and bathrooms

    • Bedrooms: 6

    • Bathrooms: 1

    • Full bathrooms: 5

  • Parking

    • Drive - Circular

    • Driveway

    • Garage - Attached

    Property

    • Pool Private: Yes

    • Exterior Features: Auto Sprinkler / Covered Patio / Fence / Fruit Tree(s) / Open Patio / Shutters / Zoned Sprinkler

    Lot

    • Lot: 14560 Square Feet

    Other Property Information

    • Parcel Number: 12434608120040052

    • Zoning: R-1-AA

  • Type and style

    • Property Type: Residential

    • Property Sub Type: Single Family Residence

  • Utility

    • Cable

    • Electric

    • Public Sewer

    • Public Water

  • Other financial information

    • Annual tax amount: $20,207

  • Source details

    • MLS ID: RX-11134973

    Other facts

    • Construction Materials: CBS

    • Lot Features: 1/4 to 1/2 Acre / West of US-1

    • Patio And Porch Features: Patio

    • Pool Features: Equipment Included / Heated / Inground / Salt Chlorination / Spa

    • Direction Faces: Head East on Atlantic Avenue, take Swinton Ave north to 18th Street. Turn left heading west on 18th Street. The property will be on your left.

    • Garage Spaces: 2

    • Garage: Yes

    • Living Area: 3740

    • Lot Size Dimensions: 80.0 ft x 182.0 ft

    • Subdivision Name: Lake Ida

Similar Homes

318 5th, Delray Beach, FL 33483 placeholder 318 5th, Delray Beach, FL 33483
New
Active With Contract
Condo/Co-op
$1,699,000
2 bds 2 ba 1,414 sqft
318 5th, Delray Beach, FL 33483
318 5th, Delray Beach, FL 33483 placeholder 318 5th, Delray Beach, FL 33483
New
Active With Contract
Condo/Co-op
$1,549,000
2 bds 2 ba 1,495 sqft
318 5th, Delray Beach, FL 33483
1408 Highland, Delray Beach, FL 33444 placeholder 1408 Highland, Delray Beach, FL 33444
10 days
Active With Contract
House
$1,900,000
3 bds 3 ba 2,247 sqft
1408 Highland, Delray Beach, FL 33444
800 Ocean, Delray Beach, FL 33483 placeholder 800 Ocean, Delray Beach, FL 33483
23 days
Active With Contract
Condo/Co-op
$1,899,000
3 bds 2 ba 1,950 sqft
800 Ocean, Delray Beach, FL 33483
433 Aylesbury, Delray Beach, FL 33444 placeholder 433 Aylesbury, Delray Beach, FL 33444
24 days
Active With Contract
House
$1,599,000
2 bds 2 ba 1,608 sqft
433 Aylesbury, Delray Beach, FL 33444
4475 Ocean, Delray Beach, FL 33483 placeholder 4475 Ocean, Delray Beach, FL 33483
27 days
Active With Contract
Condo/Co-op
$2,500,000
2 bds 2 ba 1,880 sqft
4475 Ocean, Delray Beach, FL 33483
1351 Partridge, Boynton Beach, FL 33436 placeholder 1351 Partridge, Boynton Beach, FL 33436
44 days
Active With Contract
House
$1,990,000
3 bds 2 ba 3,127 sqft
1351 Partridge, Boynton Beach, FL 33436
200 Sterling, Delray Beach, FL 33444 placeholder 200 Sterling, Delray Beach, FL 33444
45 days
Active With Contract
Commercial
$2,829,000
0 room(s) 5,805 sqft
200 Sterling, Delray Beach, FL 33444

The multiple listing information is provided by the Beaches MLS from a copyrighted compilation of listings. The compilation of listings and each individual listing are ©2026-present Beaches MLS. All Rights Reserved. The information provided is for consumers' personal, noncommercial use and may not be used for any purpose other than to identify prospective properties consumers may be interested in purchasing. All properties are subject to prior sale or withdrawal. All information provided is deemed reliable but is not guaranteed accurate, and should be independently verified. Listing courtesy of: Lang Realty/Delray Beach