Contact
Tell us about your needs

36894 HIDDEN VIEW CIRCLE

House For Sale
$610,000

BTC: 7.06427331

ETH: 208.47573479

27 days
4 bds
3 ba
3,000 sqft
Est. Estimated sales range: $0 - $0
$0

Overview

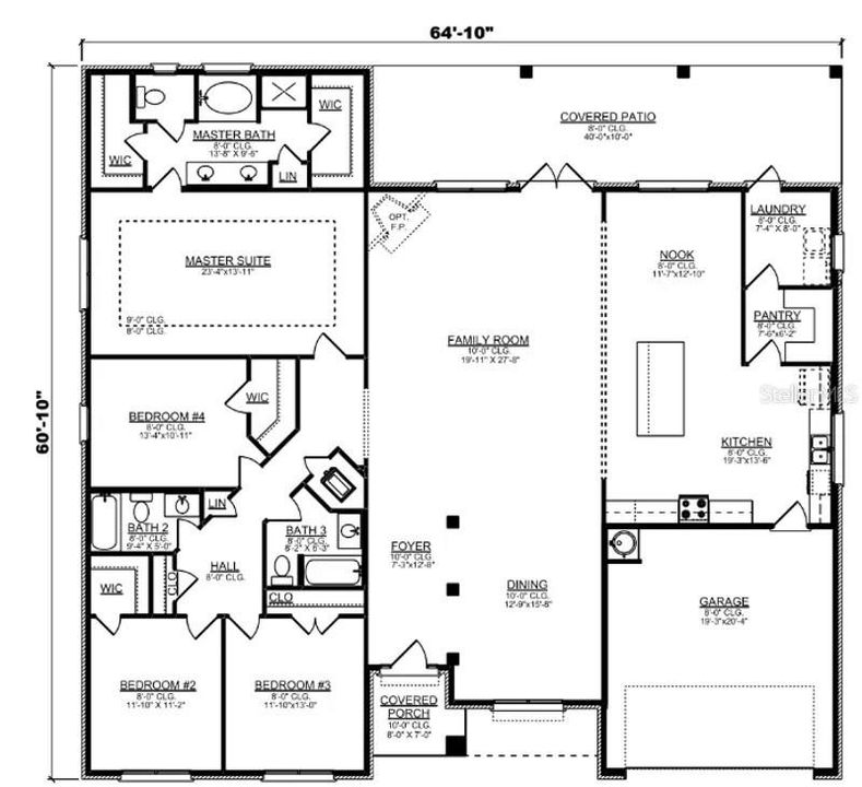
The 3000-floor plan by Adams Homes is a beautiful blend of style, space, and everyday comfort. This expansive single-story home offers approximately 3,000 square feet of living space, giving homeowners room to relax, entertain, and grow. With 4 bedrooms and 3 baths, it’s an ideal fit for families or anyone who wants extra space for guests, hobbies, or a home office. The open-concept design creates a seamless flow between the main living areas, enhanced by ceramic wood-style tile flooring throughout the main areas, offering durability, warmth, and timeless appeal. At the heart of the home is a large kitchen, thoughtfully designed with ample countertop space, quality cabinetry, a spacious center island, a walk-in pantry, and soft-close drawers for a refined and functional cooking experience. The kitchen opens to the oversized family room, where large windows bring in abundant natural light, creating a bright and airy setting for relaxing or entertaining. From here, the living space extends to the outdoor area, offering the perfect spot for dining or simply enjoying the peaceful surroundings. The owner’s suite is a true retreat, featuring a spacious bedroom with tray ceilings, room for a sitting area, and a luxurious bathroom. Enjoy the spa-inspired design with dual vanities, a soaking tub, a walk-in shower, and two large walk-in closets. The additional three bedrooms are thoughtfully positioned toward the front of the home, ensuring comfort and privacy for every member of the household. Practicality meets elegance with a 3-car side-entry garage, offering ample parking and storage while enhancing the home’s curb appeal. Located in Dade City, this community captures the best of peaceful Florida living. Known for its rolling hills, wide-open spaces, charming downtown, and welcoming small-town atmosphere, Dade City offers a refreshing escape from the busier suburbs while still providing convenient access to shopping, dining, medical facilities, and major highways. Residents enjoy local favorites such as boutiques, antique shops, seasonal festivals, parks, and farm-to-table markets. With its blend of natural beauty and historic character, Dade City is one of Pasco County’s most desirable hidden gems. Set on 1-acre+ homesites, this community offers space, serenity, and privacy without the extra costs. Best of all, there is NO CDD and a low HOA, providing homeowners with long-term value and affordability. Adams Homes is dedicated to building energy-efficient homes, and the 3000 floorplan proudly includes features that support comfort, efficiency, and peace of mind. Experience the perfect balance of elegance, comfort, and country-charm living with the Adams Homes 3000 floorplan in beautiful Dade City.

Location

Facts and features

Type:
Residential
Parking:
No Data
Year Built:
2025
Lot:
1.02 Acres
Heating:
Electric
Price/sqft:
$203
Cooling:
Central Air
HOA:
$200
All facts and features
  • Flooring

    • Carpet

    • Ceramic Tile

    Heating

    • Electric

    Cooling

    • Central Air

    Appliances

    • Dishwasher

    • Disposal

    • Electric Water Heater

    • Range

    Other interior features

    • Cathedral Ceiling(s)

    • In Wall Pest System

    • Kitchen/Family Room Combo

    • Living Room/Dining Room Combo

    • Open Floorplan

    • Primary Bedroom Main Floor

    • Solid Wood Cabinets

    • Stone Counters

    Bedrooms and bathrooms

    • Bedrooms: 4

    • Full bathrooms: 3

  • Property

    • Levels: One

    • Exterior Features: Garden / Irrigation System

    Lot

    • Lot: 1.02 Acres

    Other Property Information

    • Parcel Number: 2124100010000000250

    • Zoning: MPUD

  • Type and style

    • Property Type: Residential

    • Property Sub Type: Single Family Residence

  • Utility

    • Cable Connected

    • Electricity Connected

    • Water Connected

  • Other financial information

    • HOA: $200

    • HOA Frequency: Monthly

    • Annual tax amount: $173

  • Source details

    • MLS ID: TB8452188

    Other facts

    • Construction Materials: Block

    • Foundation Details: Slab

    • Laundry Features: Inside / Laundry Room

    • Direction Faces: East

    • Garage Spaces: 3

    • Garage: Yes

    • Living Area: 3000

    • Water Source: Well

    • Subdivision Name: HILL COUNTRY ESTATES

Similar Homes

14835 RAMSEY ROAD placeholder 14835 RAMSEY ROAD
6 days
For Sale
House
$590,000
3 bds 2 ba 2,729 sqft
14835 RAMSEY ROAD
37266 HIDDEN VIEW CIRCLE placeholder 37266 HIDDEN VIEW CIRCLE
13 days
For Sale
House
$545,650
4 bds 2 ba 2,169 sqft
37266 HIDDEN VIEW CIRCLE
36823 HIDDEN VIEW CIRCLE placeholder 36823 HIDDEN VIEW CIRCLE
13 days
For Sale
House
$570,350
4 bds 3 ba 2,508 sqft
36823 HIDDEN VIEW CIRCLE
37041 HIDDEN VIEW CIRCLE placeholder 37041 HIDDEN VIEW CIRCLE
13 days
For Sale
House
$545,650
4 bds 2 ba 2,169 sqft
37041 HIDDEN VIEW CIRCLE
37298 HIDDEN VIEW placeholder 37298 HIDDEN VIEW
13 days
For Sale
House
$552,100
4 bds 2 ba 2,330 sqft
37298 HIDDEN VIEW
37136 HIDDEN VIEW placeholder 37136 HIDDEN VIEW
+$8K (2025/12/21)
For Sale
House
$573,450
4 bds 2 ba 2,557 sqft
37136 HIDDEN VIEW
37060 HIDDEN VIEW CIRCLE placeholder 37060 HIDDEN VIEW CIRCLE
27 days
For Sale
House
$610,500
4 bds 3 ba 3,000 sqft
37060 HIDDEN VIEW CIRCLE
37094 HIDDEN VIEW CIRCLE placeholder 37094 HIDDEN VIEW CIRCLE
36 days
For Sale
House
$545,650
4 bds 2 ba 2,169 sqft
37094 HIDDEN VIEW CIRCLE

The multiple listing information is provided by the Stellar MLS from a copyrighted compilation of listings. The compilation of listings and each individual listing are ©2025-present Stellar MLS. All Rights Reserved. The information provided is for consumers' personal, noncommercial use and may not be used for any purpose other than to identify prospective properties consumers may be interested in purchasing. All properties are subject to prior sale or withdrawal. All information provided is deemed reliable but is not guaranteed accurate, and should be independently verified. Listing courtesy of: ADAMS HOMES REALTY,INC.