Contact
Tell us about your needs

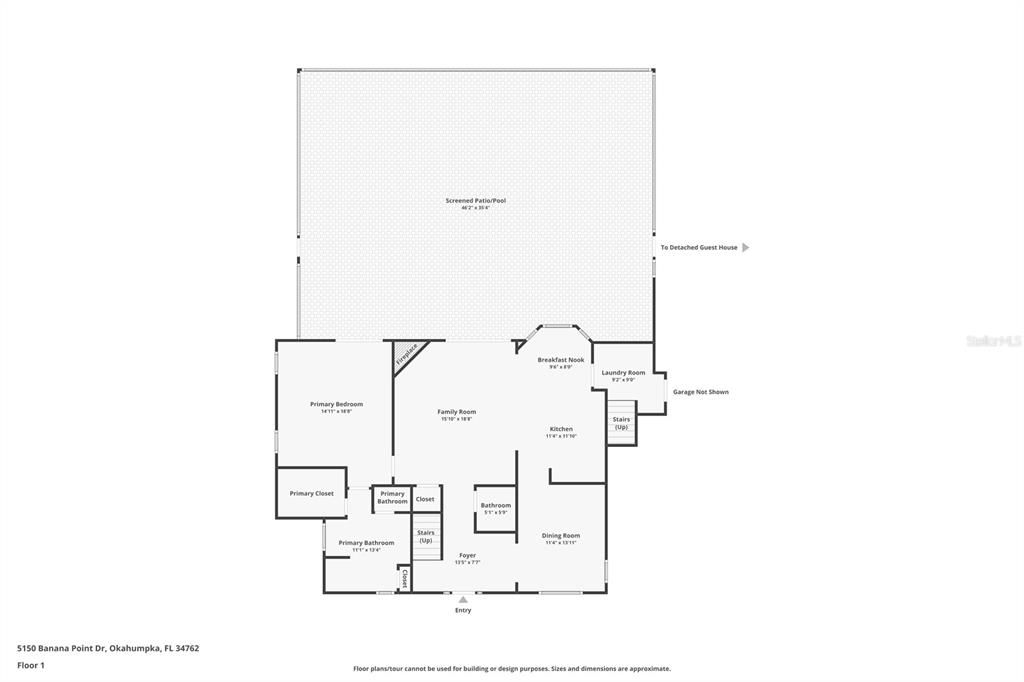
5150 BANANA POINT DRIVE

House For Sale
$850,000

BTC: 28.33333333

ETH: 425.00000000

78 days
5 bds
3 ba
4,127 sqft
Est. Estimated sales range: $0 - $0
$0

Overview

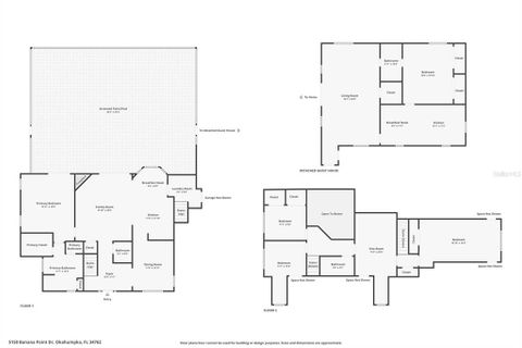
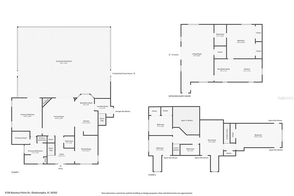
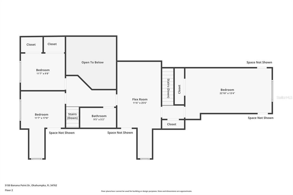
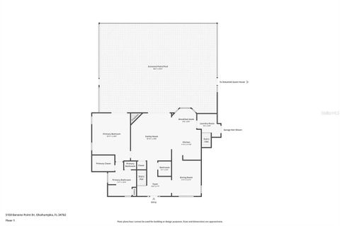
Welcome to 5150 Banana Point, a spectacular custom Southern estate set on 1.318 acres of tranquil privacy beneath a canopy of majestic century-old oaks. Thoughtfully designed and meticulously maintained, this 5-bedroom, 3.5-bath residence offers flexible living with a 22x13 media room—complete with a closet—that easily serves as a spacious 6th bedroom. Adding to its appeal, the property features an attached 1,300+ sq. ft. guesthouse, seamlessly blending timeless Southern charm with modern comforts—an ideal setup for multi-generational living, extended guests, or a private retreat for a nanny or caregiver. The main home showcases solid oak finishes, vaulted ceilings, and a stone propane fireplace with remote control, creating a warm and inviting atmosphere. The gourmet kitchen offers a large island, breakfast nook with a bay window overlooking the pool (with attached salt system), and easy flow into the dining room. The downstairs primary suite features dual vanities, a jetted hydro-massage tub, custom walk-in shower, and oversized closet. Upstairs, you’ll find three spacious bedrooms, a full bath, a media room or versatile bonus/game room. Step outside to your private resort-style oasis with a heated, screened pool and spa (recently resurfaced with LED color-changing lights), expansive 47x50 pool enclosure, child safety fence, and a full outdoor kitchen with propane hookup—perfect for entertaining. The attached guesthouse offers a full kitchen, large bedroom, bath with walk-in shower, soaring 10’ ceilings, and direct pool access. This home is loaded with thoughtful upgrades, including: new roof (2023) and cement Hardie siding; two new 50-gallon water heaters (2025); whole-house Generac generator with owned underground propane tank; water softener system and irrigation filtration system (2024); double-pane windows & automatic sprinkler system; vented hurricane/storage room for added peace of mind; three HVAC systems (2 years, 7 years, and original—recently serviced); home is pre-wired for solar panels; new light fixtures and ceiling fans throughout, and two septic systems and private well. Located just minutes from the Florida Turnpike, with easy access to Orlando, Tampa, and The Villages, this retreat is also only 3.9 miles from The Villages’ newest expansion (Middleton, Eastport, and the planned Wellness Village), 20 minutes to historic Mount Dora, and 45 minutes to Orlando International Airport and world-famous theme parks. Blending modern updates with timeless character, this home offers a rare opportunity for private, resort-style living in the heart of Central Florida. Schedule your private showing today.

Location

Facts and features

Type:
Residential
Parking:
Circular Driveway / Driveway / Garage Door Opener / Garage Faces Side / Off Street / Split Garage
Year Built:
2002
Lot:
1.52 Acres
Heating:
Electric
Price/sqft:
$206
Cooling:
Central Air
HOA:
$350
All facts and features
  • Flooring

    • Carpet

    • Ceramic Tile

    • Concrete

    Heating

    • Electric

    Cooling

    • Central Air

    Appliances

    • Convection Oven

    • Dishwasher

    • Electric Water Heater

    • Exhaust Fan

    • Microwave

    • Range

    • Refrigerator

    • Water Filtration System

    • Water Softener

    Other interior features

    • Ceiling Fan(s)

    • Crown Molding

    • Eating Space In Kitchen

    • High Ceilings

    • Kitchen/Family Room Combo

    • Primary Bedroom Main Floor

    • Skylight(s)

    • Solid Surface Counters

    • Solid Wood Cabinets

    • Split Bedroom

    • Stone Counters

    • Thermostat

    • Vaulted Ceiling(s)

    • Walk-In Closet(s)

    • Window Treatments

    Bedrooms and bathrooms

    • Bedrooms: 5

    • Bathrooms: 1

    • Full bathrooms: 3

  • Parking

    • Circular Driveway

    • Driveway

    • Garage Door Opener

    • Garage Faces Side

    • Off Street

    • Split Garage

    Property

    • Levels: Two

    • Pool Private: Yes

    • Exterior Features: Awning(s) / French Doors / Irrigation System / Lighting / Outdoor Kitchen / Private Mailbox / Rain Gutters / Sliding Doors

    Lot

    • Lot: 1.52 Acres

    Other Property Information

    • Parcel Number: 122024005000001600

    • Zoning: R-1

  • Type and style

    • Property Type: Residential

    • Property Sub Type: Single Family Residence

  • Utility

    • BB/HS Internet Available

    • Cable Connected

    • Electricity Connected

    • Propane

    • Sprinkler Well

    • Street Lights

  • Other financial information

    • HOA: $350

    • HOA Frequency: Annually

    • Annual tax amount: $8,287

  • Source details

    • MLS ID: G5101678

    Other facts

    • Construction Materials: HardiPlank Type / Wood Frame

    • Foundation Details: Slab

    • Fireplace Features: Circulating / Family Room / Gas / Stone

    • Laundry Features: Common Area / Electric Dryer Hookup / Inside / Laundry Room / Washer Hookup

    • Lot Features: Cleared / Cul-De-Sac / In County / Oversized Lot

    • Patio And Porch Features: Covered / Enclosed / Front Porch / Patio / Rear Porch / Screened / Wrap Around

    • Pool Features: Auto Cleaner / Child Safety Fence / Gunite / Heated / In Ground / Lighting / Salt Water / Screen Enclosure / Self Cleaning

    • Direction Faces: West

    • Other Structures: Guest House

    • Architectural Style: Traditional

    • Fireplace: Yes

    • Garage Spaces: 2

    • Attached Garage: Yes

    • Garage: Yes

    • Living Area: 4127

    • Water Source: Well

    • Lot Size Dimensions: 199 x 333

    • Subdivision Name: BANANA POINT II SUB

Similar Homes

1105 S 9TH STREET placeholder 1105 S 9TH STREET
15 days
For Sale
House
$749,000
5 bds 3 ba 3,280 sqft
1105 S 9TH STREET
6846 LAKE VIEW DRIVE placeholder 6846 LAKE VIEW DRIVE
-$10K (2025/11/28)
For Sale
House
$740,000
3 bds 3 ba 3,085 sqft
6846 LAKE VIEW DRIVE
27417 GATOR POINT DRIVE placeholder 27417 GATOR POINT DRIVE
+$16K (2025/11/12)
For Sale
House
$846,000
3 bds 2 ba 3,177 sqft
27417 GATOR POINT DRIVE
6224 CAROLINA AVENUE placeholder 6224 CAROLINA AVENUE
-$10K (2025/11/11)
For Sale
House
$689,900
3 bds 2 ba 2,788 sqft
6224 CAROLINA AVENUE
1401 S 9TH STREET placeholder 1401 S 9TH STREET
-$12K (2025/11/11)
For Sale
House
$898,000
3 bds 2 ba 3,285 sqft
1401 S 9TH STREET
1000 S 9TH STREET placeholder 1000 S 9TH STREET
-$59K (2025/12/01)
For Sale
House
$739,900
3 bds 3 ba 1,761 sqft
1000 S 9TH STREET
1721 CR-25A placeholder 1721 CR-25A
190 days
For Sale
Lots/Land
$700,000
0 room(s)
1721 CR-25A
4651 THAT STREET placeholder 4651 THAT STREET
258 days
For Sale
Lots/Land
$650,000
0 room(s)
4651 THAT STREET

The multiple listing information is provided by the Stellar MLS from a copyrighted compilation of listings. The compilation of listings and each individual listing are ©2025-present Stellar MLS. All Rights Reserved. The information provided is for consumers' personal, noncommercial use and may not be used for any purpose other than to identify prospective properties consumers may be interested in purchasing. All properties are subject to prior sale or withdrawal. All information provided is deemed reliable but is not guaranteed accurate, and should be independently verified. Listing courtesy of: KELLER WILLIAMS ELITE PARTNERS III REALTY