Contact
Tell us about your needs

5209 LAKE OVERLOOK AVENUE

House Active With Contract
$830,000

BTC: 11.84022825

ETH: 403.89294404

30 days
3 bds
3 ba
2,774 sqft
Est. Estimated sales range: $0 - $0
$0

Overview

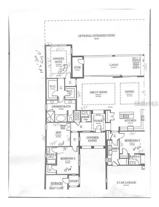
Under contract-accepting backup offers. Indulge in a refined expression of luxury living with this impeccably kept WCI built Agostino model, crafted with precision and elevated finishes throughout. Set within the distinguished Tidewater Preserve community, this residence blends elegance, comfort, and thoughtful design into a truly captivating home. Offering 3 bedrooms, 3.5 bathrooms, a 2 car garage, and a separate storage building or workshop, the layout delivers both sophistication and everyday functionality. A dramatic 14 foot foyer ceiling welcomes you inside and introduces the upscale detail found across the home. Crown molding, tray ceilings, recessed lighting and 10 foot ceilings enrich each room, creating an atmosphere that feels both open and refined. The kitchen stands at the center of the home and reflects a chef’s vision, complete with Whirlpool appliances, rich Merillat cabinetry, granite countertops, and a built in gas cooktop ideal for preparing memorable meals. Each bedroom serves as its own private retreat with an en suite bathroom, ensuring comfort for residents and guests alike. Storage is abundant, highlighted by five walk in closets that enhance the home’s practicality. The den, framed by stately glass French doors, offers a quiet space suited for work, reading, or creative pursuits. Indoor living flows effortlessly to the outdoors, where an oversized pocket slider leads to the expansive lanai and a resort style setting. A 1,200 gallon heated pool and spa anchor the space, surrounded by lush landscaping and peaceful views of the 28 acre preserve. Whether relaxing or entertaining, the outdoor summer kitchen with a gas grill sets the stage for exceptional al fresco experiences. Life in Tidewater Preserve offers a collection of amenities designed to complement this elegant lifestyle. A 24 hour guard gated entrance provides peace of mind, while the private marina with boat slips and lifts grants effortless access to the Manatee River and beyond. Additional perks include resort style pools, fitness centers, tennis courts, walking trails, and a vibrant social atmosphere. Residents also enjoy the ease of maintenance-free living, low HOA fees, no CDD fee, and included cable and internet services. A home that blends luxury, privacy, and premier community living awaits. Schedule your private showing and experience the exceptional quality that defines this remarkable property. **THIS PROPERTY QUALIFIES FOR A 1% LENDER INCENTIVE IF USING PREFERRED LENDER. INQUIRE FOR MORE DETAILS.**

Location

Facts and features

Type:
Residential
Parking:
Driveway / Garage Door Opener / Golf Cart Garage / Split Garage
Year Built:
2013
Lot:
0.23 Acres
Heating:
Central / Electric
Price/sqft:
$299
Cooling:
Central Air
HOA:
$1,607
All facts and features
  • Flooring

    • Tile

    Heating

    • Central

    • Electric

    Cooling

    • Central Air

    Appliances

    • Dishwasher

    • Disposal

    • Dryer

    • Microwave

    • Range

    • Refrigerator

    • Washer

    Other interior features

    • Eating Space In Kitchen

    • High Ceilings

    • Kitchen/Family Room Combo

    • Open Floorplan

    • Solid Wood Cabinets

    • Stone Counters

    • Tray Ceiling(s)

    • Window Treatments

    Bedrooms and bathrooms

    • Bedrooms: 3

    • Bathrooms: 1

    • Full bathrooms: 3

  • Parking

    • Driveway

    • Garage Door Opener

    • Golf Cart Garage

    • Split Garage

    Property

    • Levels: One

    • Pool Private: Yes

    • Exterior Features: Outdoor Kitchen / Rain Gutters / Sliding Doors / Storage

    Lot

    • Lot: 0.23 Acres

    Other Property Information

    • Parcel Number: 1100050309

    • Zoning: R1

  • Type and style

    • Property Type: Residential

    • Property Sub Type: Single Family Residence

  • Utility

    • BB/HS Internet Available

    • Cable Available

    • Electricity Available

    • Natural Gas Available

    • Sewer Available

    • Water Available

  • Other financial information

    • HOA: $1,607

    • HOA Frequency: Quarterly

    • Annual tax amount: $13,397

  • Source details

    • MLS ID: A4674219

    Other facts

    • Construction Materials: Block / Stucco

    • Foundation Details: Slab

    • Laundry Features: Inside / Laundry Room

    • Lot Features: In County / Landscaped

    • Patio And Porch Features: Covered / Front Porch / Patio / Screened

    • Pool Features: Heated / In Ground / Lighting / Screen Enclosure

    • Window Features: Window Treatments

    • Direction Faces: Northeast

    • Garage Spaces: 3

    • Attached Garage: Yes

    • Garage: Yes

    • Living Area: 2774

    • Water Source: Public

    • Subdivision Name: TIDEWATER PRESERVE 2

Similar Homes

7527 CAMDEN HARBOUR DRIVE placeholder 7527 CAMDEN HARBOUR DRIVE
5 days
Active With Contract
House
$599,000
3 bds 2 ba 2,171 sqft
7527 CAMDEN HARBOUR DRIVE
5702 TIDEWATER PRESERVE BOULEVARD placeholder 5702 TIDEWATER PRESERVE BOULEVARD
5 days
Active With Contract
House
$999,900
4 bds 3 ba 2,601 sqft
5702 TIDEWATER PRESERVE BOULEVARD
3723 2ND DRIVE NE placeholder 3723 2ND DRIVE NE
-$50K (2025/12/04)
Active With Contract
House
$799,000
3 bds 2 ba 2,118 sqft
3723 2ND DRIVE NE
5504 18TH AVENUE E placeholder 5504 18TH AVENUE E
-$50K (2026/01/05)
Active With Contract
House
$599,900
3 bds 2 ba 1,648 sqft
5504 18TH AVENUE E
3724 5TH AVENUE NE placeholder 3724 5TH AVENUE NE
53 days
Active With Contract
House
$995,000
3 bds 3 ba 2,947 sqft
3724 5TH AVENUE NE
202 AMERICAS CUP BOULEVARD placeholder 202 AMERICAS CUP BOULEVARD
-$46K (2025/10/17)
Active With Contract
House
$949,000
4 bds 3 ba 2,242 sqft
202 AMERICAS CUP BOULEVARD
913 TROPICAL DRIVE placeholder 913 TROPICAL DRIVE
76 days
Active With Contract
House
$769,000
3 bds 2 ba 1,910 sqft
913 TROPICAL DRIVE
6741 ROOKERY LAKE DRIVE placeholder 6741 ROOKERY LAKE DRIVE
-$70K (2025/11/18)
Active With Contract
House
$879,000
4 bds 3 ba 2,406 sqft
6741 ROOKERY LAKE DRIVE

The multiple listing information is provided by the Stellar MLS from a copyrighted compilation of listings. The compilation of listings and each individual listing are ©2026-present Stellar MLS. All Rights Reserved. The information provided is for consumers' personal, noncommercial use and may not be used for any purpose other than to identify prospective properties consumers may be interested in purchasing. All properties are subject to prior sale or withdrawal. All information provided is deemed reliable but is not guaranteed accurate, and should be independently verified. Listing courtesy of: KW COASTAL LIVING III