Contact
Tell us about your needs

535 DARSHIRE AVENUE

House For Sale
$475,000

BTC: 15.83333333

ETH: 237.50000000

41 days
5 bds
3 ba
3,216 sqft
Est. Estimated sales range: $0 - $0
$0

Overview

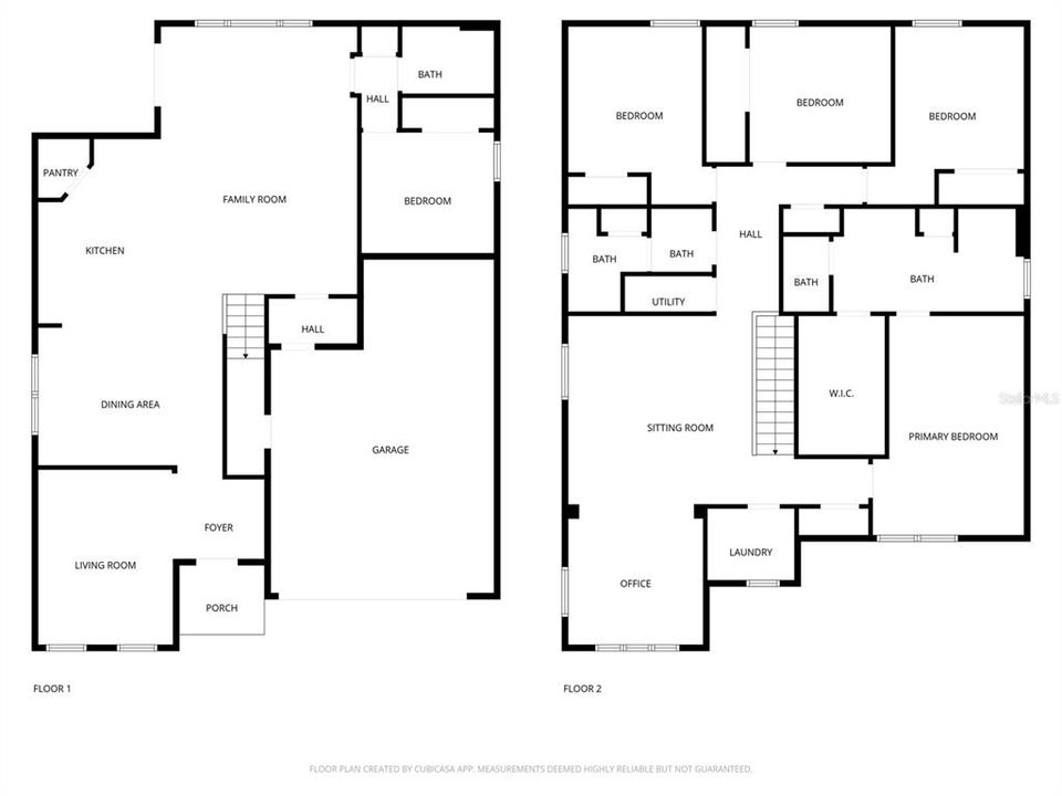
Price Reduction! This 3,200 square plus expansive beauty was built in 2022 and at that time did not have many of the tasteful appointments that are now found. The time and money spent on upgrades by the current owners are a gift to you! Pride of ownership, a gift for design, and impeccable housekeeping allow this cozy, comfortable, convenient Eustis home to show like a model. The abundance of natural light soothingly enhances the soft colors and tones. Decorative wall panels in the Dining and Bonus rooms further enhance the attractive and relaxing atmosphere. Designer light fixtures and ceiling fans add their complements to this ready for you opportunity. Located along the Estes Road corridor where you are not only close to nature, but the tri-cities as well. Lake Lincoln is a small, secluded community that allows this home to back up to lush natural verdure. The generous square footage allows the first floor to provide a formal living room, a huge open dining area, kitchen that includes a Samsung smart refrigerator , family room, full bath, as well as a downstairs bedroom that could serve as a home office. Ascend the stairs to the second floor Flex Room. Nearby you'll you find the Primary Bedroom/Master Suite at the opposite end of the home from the remaining three bedrooms and bathroom. And for convenience, of course you’ll find the laundry room here on the second floor. This is just a word description of the attractive and functional home waiting for its new residents. Contact your agent and schedule your tour today!

Location

Facts and features

Type:
Residential
Parking:
No Data
Year Built:
2022
Lot:
0.15 Acres
Heating:
Central / Electric
Price/sqft:
$148
Cooling:
Central Air
HOA:
$100
All facts and features
  • Flooring

    • Carpet

    • Tile

    Heating

    • Central

    • Electric

    Cooling

    • Central Air

    Appliances

    • Dishwasher

    • Disposal

    • Electric Water Heater

    • Ice Maker

    • Microwave

    • Range

    • Refrigerator

    Other interior features

    • Ceiling Fan(s)

    • Kitchen/Family Room Combo

    • Open Floorplan

    • Thermostat

    • Walk-In Closet(s)

    • Window Treatments

    Bedrooms and bathrooms

    • Bedrooms: 5

    • Full bathrooms: 3

  • Property

    • Levels: Two

    • Exterior Features: Irrigation System / Sidewalk / Sliding Doors

    Lot

    • Lot: 0.15 Acres

    Other Property Information

    • Parcel Number: 081927050000001600

  • Type and style

    • Property Type: Residential

    • Property Sub Type: Single Family Residence

  • Utility

    • BB/HS Internet Available

    • Cable Available

    • Electricity Connected

    • Sewer Connected

    • Street Lights

    • Underground Utilities

  • Other financial information

    • HOA: $100

    • HOA Frequency: Monthly

    • Annual tax amount: $6,096

  • Source details

    • MLS ID: O6355312

    Other facts

    • Construction Materials: Block / Stucco / Wood Frame

    • Foundation Details: Slab

    • Laundry Features: Laundry Room / Upper Level

    • Lot Features: Level

    • Patio And Porch Features: Rear Porch

    • Direction Faces: North

    • Architectural Style: Florida

    • Garage Spaces: 2

    • Attached Garage: Yes

    • Garage: Yes

    • Living Area: 3216

    • Water Source: Public

    • Lot Size Dimensions: 55 x 120

    • Subdivision Name: LAKE LINCOLN SUB

Similar Homes

1275 BLUE DAZE LANE placeholder 1275 BLUE DAZE LANE
New
For Sale
House
$360,990
4 bds 3 ba 2,210 sqft
1275 BLUE DAZE LANE
311 MORNINGVIEW DRIVE placeholder 311 MORNINGVIEW DRIVE
1 days
For Sale
House
$349,999
2 bds 2 ba 1,644 sqft
311 MORNINGVIEW DRIVE
8852 BRIDGEPORT BAY CIRCLE placeholder 8852 BRIDGEPORT BAY CIRCLE
9 days
For Sale
House
$535,000
3 bds 2 ba 2,018 sqft
8852 BRIDGEPORT BAY CIRCLE
5105 BALLARK STREET placeholder 5105 BALLARK STREET
14 days
For Sale
House
$349,900
3 bds 2 ba 1,901 sqft
5105 BALLARK STREET
8228 BRIDGEPORT BAY CIRCLE placeholder 8228 BRIDGEPORT BAY CIRCLE
15 days
For Sale
House
$514,990
2 bds 2 ba 2,161 sqft
8228 BRIDGEPORT BAY CIRCLE
2514 ACORN MEADOW LOOP placeholder 2514 ACORN MEADOW LOOP
-$10K (2025/11/26)
For Sale
House
$356,990
5 bds 2 ba 2,112 sqft
2514 ACORN MEADOW LOOP
1495 WILLOW GARDEN LOOP placeholder 1495 WILLOW GARDEN LOOP
-$10K (2025/11/26)
For Sale
House
$332,900
4 bds 2 ba 1,824 sqft
1495 WILLOW GARDEN LOOP
2518 HALLOW GARDEN ROAD placeholder 2518 HALLOW GARDEN ROAD
-$10K (2025/11/26)
For Sale
House
$344,990
4 bds 2 ba 1,874 sqft
2518 HALLOW GARDEN ROAD

The multiple listing information is provided by the Stellar MLS from a copyrighted compilation of listings. The compilation of listings and each individual listing are ©2025-present Stellar MLS. All Rights Reserved. The information provided is for consumers' personal, noncommercial use and may not be used for any purpose other than to identify prospective properties consumers may be interested in purchasing. All properties are subject to prior sale or withdrawal. All information provided is deemed reliable but is not guaranteed accurate, and should be independently verified. Listing courtesy of: DALTON WADE INC