Contact
Tell us about your needs

601 MENENDEZ STREET

House Active With Contract
$1,200,000

BTC: 17.14285714

ETH: 583.94160584

24 days
4 bds
3 ba
2,186 sqft
Est. Estimated sales range: $0 - $0
$0

Overview

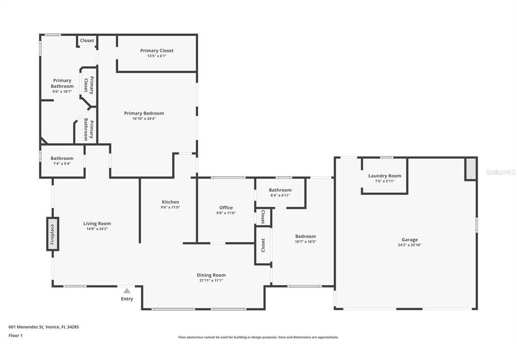
Under contract-accepting backup offers. Welcome to 601 Menendez Street — a beautifully maintained 4-bedroom, 3.5-bathroom mid-century modern residence nestled in the prestigious Venice Gulf View community on Venice Island. Originally built in 1953 and thoughtfully expanded over the years, this timeless home perfectly blends original island character with modern comfort and design. Set on a desirable corner lot, the property showcases a private courtyard-style pool surrounded by mature tropical landscaping, creating an idyllic retreat for relaxing or entertaining. Inside, oak flooring and clean architectural lines honor the home’s mid-century roots while creating a warm, sophisticated ambiance. The primary suite, a later addition, offers a peaceful escape complete with a soaking tub, separate walk-in shower, and spacious walk-in closet. The guest bath features a luxurious steam shower, continuing the home’s spa-inspired experience. In the dining area, a built-in dry bar enhances the home’s natural flow for entertaining, while the kitchen includes a reverse-osmosis filtration system serving both the sink and refrigerator, showcasing the thoughtful attention to detail throughout. The inviting living area centers around a propane fireplace, creating an elegant focal point for gathering. Outdoors, an easily accessible shower is perfect after a day at the beach or by the pool. The separate cabana suite, added in 2006, includes its own kitchenette, bedroom, and bath, making it ideal for extended family, guests, or a private home office. Additional features include impact-rated windows along the front of the home, partial impact-resistant exterior doors , and a two-car garage with generous storage. A tranquil east-side sitting area provides the perfect spot to enjoy morning coffee or evening cocktails surrounded by lush tropical foliage. Located just moments from downtown Venice, the South Jetty, and pristine Gulf beaches, 601 Menendez Street offers an exceptional combination of architectural charm, modern updates, and island living at its finest.

Location

Facts and features

Type:
Residential
Parking:
Driveway / Golf Cart Parking / Ground Level
Year Built:
1953
Lot:
0.25 Acres
Heating:
Central / Electric
Price/sqft:
$549
Cooling:
Central Air
HOA:
No Data
All facts and features
  • Flooring

    • Tile

    • Hardwood

    Heating

    • Central

    • Electric

    Cooling

    • Central Air

    Appliances

    • Bar Fridge

    • Dishwasher

    • Disposal

    • Dryer

    • Electric Water Heater

    • Exhaust Fan

    • Kitchen Reverse Osmosis System

    • Microwave

    • Range

    • Refrigerator

    • Washer

    • Water Softener

    Other interior features

    • Built-in Features

    • Ceiling Fan(s)

    • Dry Bar

    • High Ceilings

    • Primary Bedroom Main Floor

    • Split Bedroom

    • Stone Counters

    • Thermostat

    Bedrooms and bathrooms

    • Bedrooms: 4

    • Bathrooms: 1

    • Full bathrooms: 3

  • Parking

    • Driveway

    • Golf Cart Parking

    • Ground Level

    Property

    • Levels: One

    • Pool Private: Yes

    • Exterior Features: Irrigation System / Lighting / Outdoor Shower / Private Mailbox / Rain Gutters

    Lot

    • Lot: 0.25 Acres

    Other Property Information

    • Parcel Number: 0176100043

    • Zoning: RSF2

  • Type and style

    • Property Type: Residential

    • Property Sub Type: Single Family Residence

  • Utility

    • Cable Connected

    • Electricity Connected

    • Sewer Connected

    • Water Connected

  • Other financial information

    • Annual tax amount: $7,965

  • Source details

    • MLS ID: N6141385

    Other facts

    • Construction Materials: Block / Stucco

    • Foundation Details: Slab / Stem Wall

    • Fireplace Features: Gas / Non Wood Burning

    • Laundry Features: In Garage / Inside

    • Lot Features: Corner Lot / Landscaped

    • Pool Features: Heated / In Ground / Lighting / Tile

    • Direction Faces: North

    • Other Structures: Cabana

    • Architectural Style: Mid-Century Modern

    • Fireplace: Yes

    • Garage Spaces: 2

    • Attached Garage: Yes

    • Garage: Yes

    • Living Area: 2186

    • Water Source: Public

    • Subdivision Name: VENICE GULF VIEW SEC OF

Similar Homes

728 SERATA STREET placeholder 728 SERATA STREET
7 days
Active With Contract
House
$985,000
3 bds 2 ba 1,972 sqft
728 SERATA STREET
405 PARK BOULEVARD N placeholder 405 PARK BOULEVARD N
52 days
Active With Contract
House
$975,000
4 bds 2 ba 1,832 sqft
405 PARK BOULEVARD N
852 GOLDEN BEACH BOULEVARD UNIT 852 placeholder 852 GOLDEN BEACH BOULEVARD UNIT 852
-$100K (2025/11/07)
Active With Contract
Condo/Co-op
$1,200,000
3 bds 2 ba 1,344 sqft
852 GOLDEN BEACH BOULEVARD UNIT 852
876 GOLDEN BEACH BOULEVARD UNIT 876 placeholder 876 GOLDEN BEACH BOULEVARD UNIT 876
170 days
Active With Contract
Condo/Co-op
$1,499,500
3 bds 3 ba 2,156 sqft
876 GOLDEN BEACH BOULEVARD UNIT 876
101 S TAMIAMI TRAIL S placeholder 101 S TAMIAMI TRAIL S
-$50K (2025/07/10)
Active With Contract
Commercial
$1,350,000
0 room(s) 2,143 sqft
101 S TAMIAMI TRAIL S
407 PARK BOULEVARD S placeholder 407 PARK BOULEVARD S
-$141K (2025/12/02)
Active With Contract
House
$898,777
4 bds 4 ba 2,655 sqft
407 PARK BOULEVARD S
700 GOLDEN BEACH BOULEVARD UNIT 224 placeholder 700 GOLDEN BEACH BOULEVARD UNIT 224
-$70K (2025/08/03)
Active With Contract
Condo/Co-op
$1,130,000
3 bds 2 ba 1,350 sqft
700 GOLDEN BEACH BOULEVARD UNIT 224

The multiple listing information is provided by the Stellar MLS from a copyrighted compilation of listings. The compilation of listings and each individual listing are ©2026-present Stellar MLS. All Rights Reserved. The information provided is for consumers' personal, noncommercial use and may not be used for any purpose other than to identify prospective properties consumers may be interested in purchasing. All properties are subject to prior sale or withdrawal. All information provided is deemed reliable but is not guaranteed accurate, and should be independently verified. Listing courtesy of: KELLER WILLIAMS ISLAND LIFE REAL ESTATE