Contact
Tell us about your needs

665 JAMES MOORE DRIVE

House For Sale
$1,127,500

BTC: 16.73668862

ETH: 578.20512821

156 days
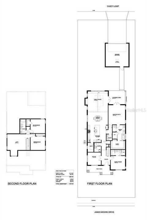
4 bds
3 ba
2,964 sqft
Est. Estimated sales range: $0 - $0
$0

Overview

Pre-Construction. To be built. Welcome to the Lakeside Cottage. A charming Coastal style home located in Mount Dora's LAST EVER downtown custom home community. It is presented by Classic Homes, one of Central Florida's premier custom builders. It combines a charming, exterior with a spacious, modern interior. Luxury features abound throughout. High ceilings, elegant millwork, upscale cabinetry, appliances and finishes are all here. Including a vaulted ceiling in the living area. Enjoy Florida outdoor living in the expansive lanai. There's even room for a pool. Cottages on 11th is situated just a short stroll from the center of the City's quaint collection of shops and eateries. Living here will provide only twenty-seven extremely fortunate and discerning homeowners with the rare combination of luxurious living environment, small town charm and walkable lifestyle. In addition, they’ll enjoy the financial security of being surrounded by like value homes. Start with a homesite acquisition, then begin the exciting journey to create your completely personalized residence. Owners may also select from a wide variety of traditional architectural styles, in harmony with Mount Dora's renown, nearby Historic District. Design the interior spaces, finishes and features that best accommodate your lifestyle and preferences. It's a blank canvas awaiting your artistry!

Location

Facts and features

Type:
Residential
Parking:
No Data
Year Built:
2025
Lot:
0.18 Acres
Heating:
Electric / Heat Pump
Price/sqft:
$380
Cooling:
Central Air
HOA:
$600
All facts and features
  • Flooring

    • Luxury Vinyl

    • Porcelain Tile

    Heating

    • Electric

    • Heat Pump

    Cooling

    • Central Air

    Appliances

    • Built-In Oven

    • Cooktop

    • Dishwasher

    • Disposal

    • Range Hood

    • Refrigerator

    • Tankless Water Heater

    Other interior features

    • Ceiling Fan(s)

    • Crown Molding

    • High Ceilings

    • Open Floorplan

    • Primary Bedroom Main Floor

    • Stone Counters

    • Walk-In Closet(s)

    Bedrooms and bathrooms

    • Bedrooms: 4

    • Bathrooms: 1

    • Full bathrooms: 3

  • Property

    • Levels: Two

    • Exterior Features: Garden / Irrigation System / Sidewalk

    Lot

    • Lot: 0.18 Acres

    Other Property Information

    • Parcel Number: 301927230000001700

  • Type and style

    • Property Type: Residential

    • Property Sub Type: Single Family Residence

  • Utility

    • BB/HS Internet Available

    • Cable Connected

    • Electricity Connected

    • Natural Gas Connected

    • Sewer Connected

    • Street Lights

    • Underground Utilities

    • Water Connected

  • Other financial information

    • HOA: $600

    • HOA Frequency: Quarterly

    • Annual tax amount: $2,367

  • Source details

    • MLS ID: G5100304

    Other facts

    • Construction Materials: Block / Wood Frame

    • Foundation Details: Slab

    • Laundry Features: Electric Dryer Hookup / Laundry Room / Washer Hookup

    • Direction Faces: West

    • Garage Spaces: 2

    • Attached Garage: Yes

    • Garage: Yes

    • Living Area: 2964

    • Water Source: Public

    • Subdivision Name: COTTAGES ON 11TH

Similar Homes

19326 LOCHSIDE LANE placeholder 19326 LOCHSIDE LANE
4 days
For Sale
House
$1,224,611
5 bds 5 ba 4,181 sqft
19326 LOCHSIDE LANE
30321 ISLAND CLUB DRIVE placeholder 30321 ISLAND CLUB DRIVE
-$50K (2026/01/05)
For Sale
House
$1,450,000
5 bds 4 ba 3,385 sqft
30321 ISLAND CLUB DRIVE
3053 ISOLA BELLA BOULEVARD placeholder 3053 ISOLA BELLA BOULEVARD
25 days
For Sale
House
$899,000
4 bds 3 ba 2,632 sqft
3053 ISOLA BELLA BOULEVARD
3021 ISOLA BELLA BOULEVARD placeholder 3021 ISOLA BELLA BOULEVARD
26 days
For Sale
House
$875,000
5 bds 4 ba 3,322 sqft
3021 ISOLA BELLA BOULEVARD
3020 PALERMO COURT placeholder 3020 PALERMO COURT
40 days
For Sale
House
$995,000
5 bds 4 ba 4,871 sqft
3020 PALERMO COURT
33943 E LAKE JOANNA DRIVE placeholder 33943 E LAKE JOANNA DRIVE
-$89K (2025/12/26)
For Sale
House
$999,900
4 bds 2 ba 2,536 sqft
33943 E LAKE JOANNA DRIVE
6160 ALLEN STREET placeholder 6160 ALLEN STREET
42 days
For Sale
House
$1,400,000
3 bds 2 ba 1,900 sqft
6160 ALLEN STREET
5061 GREENBRIAR TRAIL placeholder 5061 GREENBRIAR TRAIL
48 days
For Sale
House
$849,000
4 bds 3 ba 2,922 sqft
5061 GREENBRIAR TRAIL

The multiple listing information is provided by the Stellar MLS from a copyrighted compilation of listings. The compilation of listings and each individual listing are ©2026-present Stellar MLS. All Rights Reserved. The information provided is for consumers' personal, noncommercial use and may not be used for any purpose other than to identify prospective properties consumers may be interested in purchasing. All properties are subject to prior sale or withdrawal. All information provided is deemed reliable but is not guaranteed accurate, and should be independently verified. Listing courtesy of: COLONY REALTY GROUP, INC.