Contact
Tell us about your needs

8551 PRATT DRIVE

House For Sale
$760,000

BTC: 11.28149299

ETH: 395.83333333

-$65K (2025/12/17)
55 days
4 bds
3 ba
2,256 sqft
Est. Estimated sales range: $0 - $0
$0

Overview

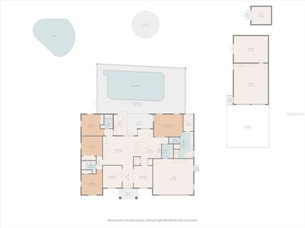
One or more photo(s) has been virtually staged. PRICE REDUCTION! Welcome to Hidden Lake Estates, an exclusive aviation community where upscale living meets private runway access. 8551 Pratt Dr. is a spacious and thoughtfully designed single-family home built in 2000, offering approximately 2,256 sq ft of living space on a 1.15 beautifully landscaped acre lot. This home offers a perfect blend of comfort, elegance, and the aviation lifestyle. Inside you’ll find 4 bedrooms and 3 full baths, providing excellent flexibility for families, guests, or a home office setup. The main living areas feature an open floor plan boasting plenty of natural light. Soaring ceilings and detailed tray ceilings add a sense of grandeur, while the open floor plan allows for effortless flow throughout the living spaces. The inviting living room centers a custom built-in media cabinets creating a warm and welcoming atmosphere. The expansive primary suite includes a walk-in closet and a spa-like bathroom complete with a separate garden tub and walk-in shower. High ceilings and thoughtful finishes continue throughout the home, enhancing the sense of space and light. Step outside to enjoy the screened-in outdoor kitchen and pool—your private oasis for year-round enjoyment. Entertain around the backyard fire pit or unwind in the secluded wading pool. A separate enclosed gated area provides ample space for your four-legged family members to run and play outside. While the detached garage and workshop gives ample room for work or hobbies plus an attached carport. This property backs up to Southwest Florida Water Management Company property. The district owns and manages lands around lakes, rivers, and wetlands to act as natural buffers that filter pollution and preserve native ecosystems. This beautiful lot offers opportunities for gardening, outdoor recreation, and expansion — a rare find in the New Port Richey area. Short-term leasing allowed with no wait time. As part of Hidden Lake Estates, homeowners have access to Hidden Lake Airport (FA40), a private airport featuring a 4,450-foot-long, 50-foot-wide paved runway. Whether you're an aviator or simply appreciate the unique lifestyle, this community offers a rare opportunity to live among fellow enthusiasts in a peaceful, gated setting. Come experience the best of Florida fly-in living—schedule your private showing today

Location

Facts and features

Type:
Residential
Parking:
Covered / Driveway / Garage Door Opener
Year Built:
2000
Lot:
1.15 Acres
Heating:
Central / Electric
Price/sqft:
$337
Cooling:
Central Air
HOA:
No Data
All facts and features
  • Flooring

    • Carpet

    • Ceramic Tile

    • Laminate

    Heating

    • Central

    • Electric

    Cooling

    • Central Air

    Appliances

    • Dishwasher

    • Dryer

    • Microwave

    • Range

    • Refrigerator

    • Washer

    Other interior features

    • Built-in Features

    • Ceiling Fan(s)

    • Kitchen/Family Room Combo

    • Primary Bedroom Main Floor

    • Solid Wood Cabinets

    • Thermostat

    • Tray Ceiling(s)

    • Vaulted Ceiling(s)

    • Walk-In Closet(s)

    Bedrooms and bathrooms

    • Bedrooms: 4

    • Full bathrooms: 3

  • Parking

    • Covered

    • Driveway

    • Garage Door Opener

    Property

    • Levels: One

    • Pool Private: Yes

    • Exterior Features: French Doors / Irrigation System / Lighting / Outdoor Kitchen / Private Mailbox / Rain Gutters

    Lot

    • Lot: 1.15 Acres

    Other Property Information

    • Parcel Number: 1725300010000000060

    • Zoning: R1

  • Type and style

    • Property Type: Residential

    • Property Sub Type: Single Family Residence

  • Utility

    • Cable Available

    • Street Lights

  • Other financial information

    • Annual tax amount: $2,495

  • Source details

    • MLS ID: W7880726

    Other facts

    • Construction Materials: Block / Stucco

    • Foundation Details: Slab

    • Laundry Features: Inside / Laundry Room

    • Lot Features: Landscaped

    • Pool Features: Gunite / In Ground

    • Direction Faces: East

    • Other Structures: Outdoor Kitchen / Shed(s) / Storage / Workshop

    • Architectural Style: Traditional

    • Garage Spaces: 4

    • Attached Garage: Yes

    • Garage: Yes

    • Living Area: 2256

    • Water Source: Well

    • Subdivision Name: HIDDEN LAKE ESTATES

Similar Homes

7904 PORTRAIT COURT placeholder 7904 PORTRAIT COURT
23 days
For Sale
House
$716,000
6 bds 3 ba 3,810 sqft
7904 PORTRAIT COURT
10301 NINA COURT placeholder 10301 NINA COURT
35 days
For Sale
House
$550,000
3 bds 2 ba 1,785 sqft
10301 NINA COURT
10639 LAKEVIEW DRIVE placeholder 10639 LAKEVIEW DRIVE
42 days
For Sale
House
$599,900
3 bds 3 ba 2,244 sqft
10639 LAKEVIEW DRIVE
 placeholder
58 days
For Sale
House
$925,000
5 bds 3 ba 4,774 sqft
9415 INDALE DRIVE placeholder 9415 INDALE DRIVE
-$20K (2026/01/06)
For Sale
House
$545,000
4 bds 3 ba 2,727 sqft
9415 INDALE DRIVE
11139 RAGSDALE COURT placeholder 11139 RAGSDALE COURT
-$31K (2025/12/20)
For Sale
House
$539,000
4 bds 3 ba 2,276 sqft
11139 RAGSDALE COURT
9741 STAR TRAIL placeholder 9741 STAR TRAIL
-$15K (2025/10/30)
For Sale
House
$535,000
5 bds 5 ba 3,876 sqft
9741 STAR TRAIL
7222 AUBURN LANE placeholder 7222 AUBURN LANE
-$175K (2025/09/19)
For Sale
House
$650,000
6 bds 5 ba 5,670 sqft
7222 AUBURN LANE

The multiple listing information is provided by the Stellar MLS from a copyrighted compilation of listings. The compilation of listings and each individual listing are ©2026-present Stellar MLS. All Rights Reserved. The information provided is for consumers' personal, noncommercial use and may not be used for any purpose other than to identify prospective properties consumers may be interested in purchasing. All properties are subject to prior sale or withdrawal. All information provided is deemed reliable but is not guaranteed accurate, and should be independently verified. Listing courtesy of: SANDPEAK REALTY