Contact
Tell us about your needs

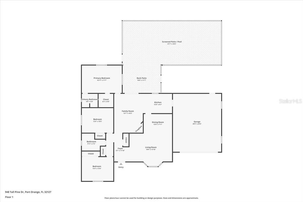
948 TALL PINE DRIVE

House Active With Contract
$335,000

BTC: 11.16666667

ETH: 167.50000000

-$40K (2025/11/12)
134 days
3 bds
2 ba
1,518 sqft
Est. Estimated sales range: $0 - $0
$0

Overview

Private Pool! Must see 3 bedroom 2 bathroom ranch home. Gorgeous enclosed pool. Enjoy easy one level living. This home includes three bedrooms, two bathrooms, a living room with fire place, a dining room, a kitchen, a second living space, a two car garage, and a covered back patio overlooking the enclosed pool area. Amazing Port Orange location with easy access to i95 or just minutes form the beach via Dunlawton Ave. The seller is NOT open to Seller Financing. The seller does NOT know the age of the Roof, AC, or other systems.

Location

Facts and features

Type:
Residential
Parking:
No Data
Year Built:
1980
Lot:
0.21 Acres
Heating:
Central
Price/sqft:
$221
Cooling:
Central Air
HOA:
No Data
All facts and features
  • Flooring

    • Carpet

    • Ceramic Tile

    • Laminate

    Heating

    • Central

    Cooling

    • Central Air

    Appliances

    • Dishwasher

    • Microwave

    • Range

    • Refrigerator

    Other interior features

    • Ceiling Fan(s)

    • Other

    Bedrooms and bathrooms

    • Bedrooms: 3

    • Full bathrooms: 2

  • Property

    • Levels: One

    • Pool Private: Yes

    • Exterior Features: Private Mailbox / Rain Gutters / Sidewalk / Sliding Doors

    Lot

    • Lot: 0.21 Acres

    Other Property Information

    • Parcel Number: 631603130070

    • Zoning: 16R8SF

  • Type and style

    • Property Type: Residential

    • Property Sub Type: Single Family Residence

  • Utility

    • Cable Available

    • Electricity Connected

    • Public

    • Sewer Connected

    • Street Lights

    • Water Connected

  • Other financial information

    • Annual tax amount: $1,626

  • Source details

    • MLS ID: TB8403556

    Other facts

    • Construction Materials: Block / Concrete / Stucco

    • Foundation Details: Slab

    • Fireplace Features: Insert / Living Room

    • Laundry Features: Other

    • Lot Features: City Lot / Landscaped / Level / Sidewalk

    • Patio And Porch Features: Patio / Screened

    • Pool Features: In Ground

    • Direction Faces: East

    • Architectural Style: Ranch

    • Fireplace: Yes

    • Garage Spaces: 2

    • Attached Garage: Yes

    • Garage: Yes

    • Living Area: 1518

    • Water Source: Public

    • Subdivision Name: DEEP FOREST VILLAGE

Similar Homes

935 CHICKADEE DRIVE placeholder 935 CHICKADEE DRIVE
5 days
Active With Contract
House
$325,000
3 bds 2 ba 1,558 sqft
935 CHICKADEE DRIVE
936 COUNTRYSIDE WEST BOULEVARD placeholder 936 COUNTRYSIDE WEST BOULEVARD
6 days
Active With Contract
House
$385,000
3 bds 2 ba 2,067 sqft
936 COUNTRYSIDE WEST BOULEVARD
1242 THOMASINA DRIVE placeholder 1242 THOMASINA DRIVE
6 days
Active With Contract
House
$364,900
3 bds 2 ba 1,308 sqft
1242 THOMASINA DRIVE
871 SUGAR HOUSE DRIVE placeholder 871 SUGAR HOUSE DRIVE
6 days
Active With Contract
House
$325,000
3 bds 2 ba 1,753 sqft
871 SUGAR HOUSE DRIVE
3769 GROVE VIEW LANE placeholder 3769 GROVE VIEW LANE
10 days
Active With Contract
House
$350,000
3 bds 2 ba 1,769 sqft
3769 GROVE VIEW LANE
6111 DEL MAR DRIVE placeholder 6111 DEL MAR DRIVE
27 days
Active With Contract
House
$315,000
3 bds 2 ba 1,354 sqft
6111 DEL MAR DRIVE
3852 BOURBON STREET placeholder 3852 BOURBON STREET
-$5K (2025/11/04)
Active With Contract
House
$319,900
3 bds 2 ba 1,505 sqft
3852 BOURBON STREET
644 HAMLET DRIVE placeholder 644 HAMLET DRIVE
-$10K (2025/10/23)
Active With Contract
House
$365,000
4 bds 2 ba 1,699 sqft
644 HAMLET DRIVE

The multiple listing information is provided by the Stellar MLS from a copyrighted compilation of listings. The compilation of listings and each individual listing are ©2025-present Stellar MLS. All Rights Reserved. The information provided is for consumers' personal, noncommercial use and may not be used for any purpose other than to identify prospective properties consumers may be interested in purchasing. All properties are subject to prior sale or withdrawal. All information provided is deemed reliable but is not guaranteed accurate, and should be independently verified. Listing courtesy of: KELLER WILLIAMS SUBURBAN TAMPA