Contact
Tell us about your needs

100 WINDRUSH BOULEVARD UNIT 1

Townhouse For Sale
$995,000

BTC: 14.76984938

ETH: 518.22916667

56 days
Waterfront
3 bds
2 ba
1,812 sqft
Est. Estimated sales range: $0 - $0
$0

Overview

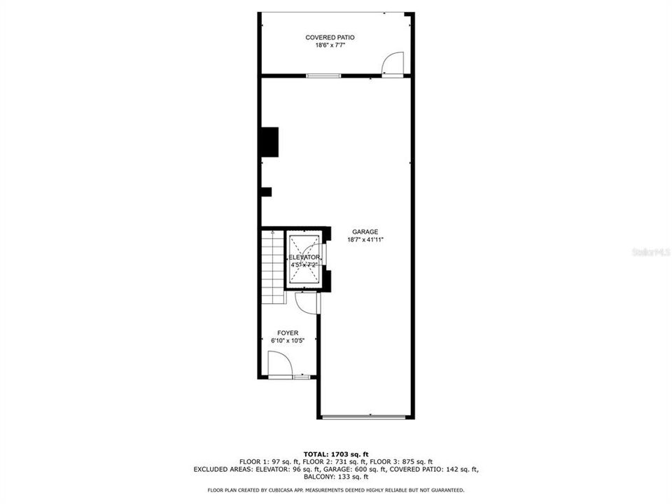
Live the Florida coastal dream lifestyle in this 3-bedroom, 2.5-bath elevated townhome built in 2017, complete with a private 35' boat slip and direct canal access to the Intracoastal Waterway—just minutes from the Gulf. Whether you're a boater, beachgoer, or both, you'll love the prime location just a five-minute walk to the beach and close to local dining, shopping, and entertainment. Built solid with all-block construction, this three-story home offers a spacious floor plan with engineered hardwood flooring throughout the main living areas, a private elevator, and water views from both the balcony and covered patio. The kitchen features granite countertops, wood cabinetry, stainless steel appliances, and a breakfast bar that opens to the living and dining areas. Upstairs, the primary suite includes water views, a sitting area/office nook, walk-in closet, and a large en-suite bath with dual sinks and a walk-in shower. The oversized 40’ deep tandem garage provides parking for two cars and plenty of extra storage for your beach gear and toys. After a day on the water, take a short stroll to the beach for sunset or hop on the nearby Jolly Trolley for a night out. This is low-maintenance waterfront living at its finest in one of Indian Rocks Beach’s most desirable locations.

Location

Facts and features

Type:
Residential
Parking:
No Data
Year Built:
2017
Lot:
0.28 Acres
Heating:
Central
Price/sqft:
$549
Cooling:
Central Air
HOA:
$2,400
All facts and features
  • Flooring

    • Tile

    • Hardwood

    Heating

    • Central

    Cooling

    • Central Air

    Appliances

    • Dryer

    • Microwave

    • Range

    • Refrigerator

    • Washer

    Other interior features

    • Ceiling Fan(s)

    • PrimaryBedroom Upstairs

    • Stone Counters

    • Thermostat

    Bedrooms and bathrooms

    • Bedrooms: 3

    • Bathrooms: 1

    • Full bathrooms: 2

  • Property

    • Levels: Two

    • Exterior Features: Balcony

    Lot

    • Lot: 0.28 Acres

    Other Property Information

    • Parcel Number: 123014498410000010

  • Type and style

    • Property Type: Residential

    • Property Sub Type: Townhouse

  • Utility

    • Sewer Connected

    • Water Connected

  • Other financial information

    • HOA: $2,400

    • HOA Frequency: Quarterly

    • Annual tax amount: $9,781

  • Source details

    • MLS ID: TB8447000

    Other facts

    • Construction Materials: Block

    • Foundation Details: Slab

    • Laundry Features: Inside

    • Direction Faces: South

    • Waterfront: Yes

    • Garage Spaces: 2

    • Attached Garage: Yes

    • Garage: Yes

    • Living Area: 1812

    • Water Source: Public

    • Subdivision Name: LANDINGS AT WINDRUSH THE CONDO

Similar Homes

333 LA HACIENDA DRIVE placeholder 333 LA HACIENDA DRIVE
2 days
For Sale
House
$1,250,000
3 bds 2 ba 1,552 sqft
333 LA HACIENDA DRIVE
1736 GOLF VIEW DRIVE placeholder 1736 GOLF VIEW DRIVE
2 days
For Sale
House
$839,000
3 bds 2 ba 2,175 sqft
1736 GOLF VIEW DRIVE
1211 BAY PINE BOULEVARD placeholder 1211 BAY PINE BOULEVARD
4 days
For Sale
House
$900,000
3 bds 2 ba 1,232 sqft
1211 BAY PINE BOULEVARD
14940 CATHY LANE placeholder 14940 CATHY LANE
5 days
For Sale
House
$1,199,000
4 bds 2 ba 3,096 sqft
14940 CATHY LANE
717 E GULF BOULEVARD placeholder 717 E GULF BOULEVARD
8 days
For Sale
Multi-family
$1,149,900
4 bds 2,100 sqft
717 E GULF BOULEVARD
217 18TH AVENUE placeholder 217 18TH AVENUE
15 days
For Sale
Townhouse
$1,250,000
2 bds 3 ba 2,268 sqft
217 18TH AVENUE
19901 GULF BLVD placeholder 19901 GULF BLVD
17 days
For Sale
Lots/Land
$1,200,000
0 room(s)
19901 GULF BLVD
1300 GULF BOULEVARD UNIT 301 placeholder 1300 GULF BOULEVARD UNIT 301
19 days
For Sale
Condo/Co-op
$859,900
3 bds 2 ba 1,235 sqft
1300 GULF BOULEVARD UNIT 301

The multiple listing information is provided by the Stellar MLS from a copyrighted compilation of listings. The compilation of listings and each individual listing are ©2026-present Stellar MLS. All Rights Reserved. The information provided is for consumers' personal, noncommercial use and may not be used for any purpose other than to identify prospective properties consumers may be interested in purchasing. All properties are subject to prior sale or withdrawal. All information provided is deemed reliable but is not guaranteed accurate, and should be independently verified. Listing courtesy of: SMITH & ASSOCIATES REAL ESTATE