Contact
Tell us about your needs

141 CEDAR DUNES DRIVE

Townhouse For Sale
$365,900

BTC: 5.43144511

ETH: 190.57291667

36 days
3 bds
2 ba
1,736 sqft
Est. Estimated sales range: $0 - $0
$0

Overview

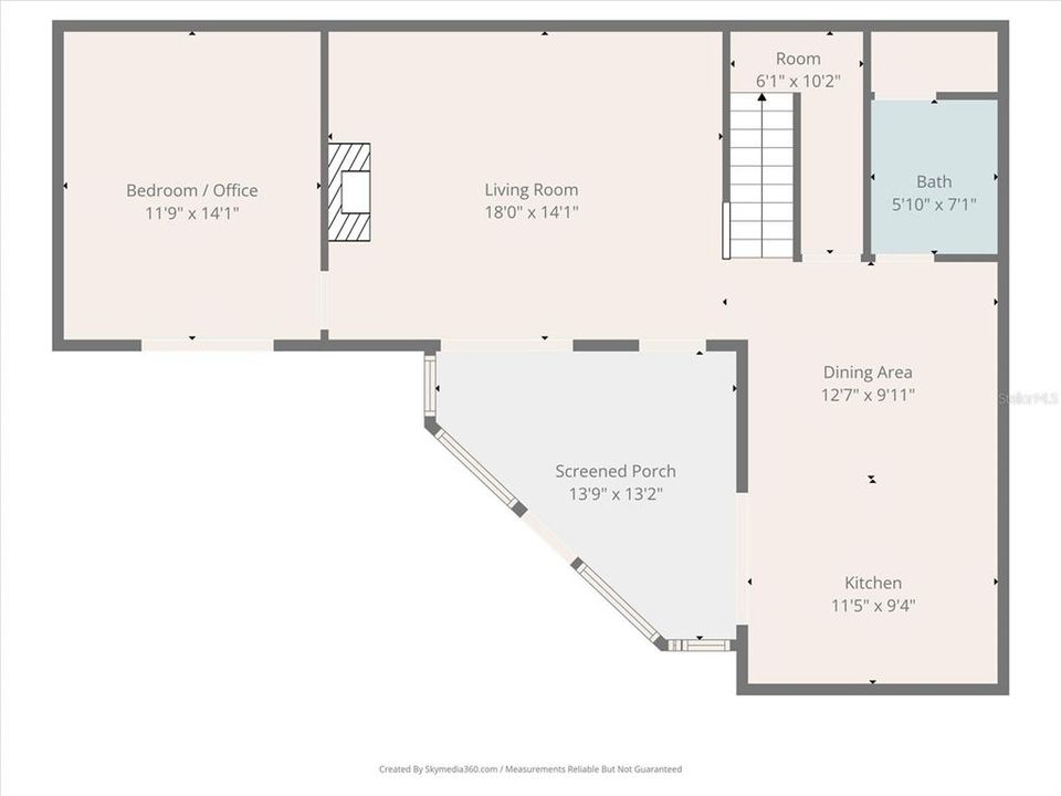
Discover coastal living at its finest in this beautifully maintained townhouse, perfectly situated within walking distance to Indian River Park, the Intracoastal Waterway, and the serene no-drive beach. Offering 3 spacious bedrooms and 2.5 baths, this home has been freshly painted throughout and features brand-new carpeting for a truly move-in-ready feel. Add to that assigned parking and outdoor shed for your bikes and beach toys, this home checks off all the boxes. The air conditioner has a brand new fan and recently fully serviced. The kitchen offers a large dining area, center island for extra space, full appliance package and under/over cabinet lighting for that extra ambience. Relax in the inviting living area with a cozy fireplace, or step outside to enjoy the breezy screened porch and your own private courtyard—ideal for morning coffee, outdoor dining, or quiet evenings under the stars. Just steps away is a convenient kayak launch, making it effortless to explore the natural beauty that surrounds you. Whether you’re seeking an active outdoor lifestyle or a peaceful coastal retreat, this townhouse delivers the perfect blend of comfort, convenience, and charm. Come see why this gem won’t stay on the market for long.

Location

Facts and features

Type:
Residential
Parking:
No Data
Year Built:
1980
Lot:
0.04 Acres
Heating:
Central / Heat Pump
Price/sqft:
$211
Cooling:
Central Air
HOA:
$160
All facts and features
  • Flooring

    • Carpet

    • Ceramic Tile

    Heating

    • Central

    • Heat Pump

    Cooling

    • Central Air

    Appliances

    • Dishwasher

    • Disposal

    • Dryer

    • Electric Water Heater

    • Exhaust Fan

    • Microwave

    • Range

    • Refrigerator

    • Washer

    Other interior features

    • Ceiling Fan(s)

    • Eating Space In Kitchen

    • Primary Bedroom Main Floor

    • PrimaryBedroom Upstairs

    • Solid Surface Counters

    • Walk-In Closet(s)

    Bedrooms and bathrooms

    • Bedrooms: 3

    • Bathrooms: 1

    • Full bathrooms: 2

  • Property

    • Levels: Two

    • Exterior Features: Balcony / Outdoor Shower / Private Mailbox / Private Yard / Sidewalk / Sliding Doors

    Lot

    • Lot: 0.04 Acres

    Other Property Information

    • Parcel Number: 742708360010

    • Zoning: R4

  • Type and style

    • Property Type: Residential

    • Property Sub Type: Townhouse

  • Utility

    • Cable Available

    • Electricity Connected

    • Public

    • Sewer Connected

    • Street Lights

    • Water Connected

  • Other financial information

    • HOA: $160

    • HOA Frequency: Monthly

    • Annual tax amount: $2,299

  • Source details

    • MLS ID: V4946160

    Other facts

    • Construction Materials: Block

    • Foundation Details: Slab

    • Fireplace Features: Living Room

    • Laundry Features: Electric Dryer Hookup / Inside

    • Lot Features: City Lot / Sidewalk

    • Patio And Porch Features: Deck / Enclosed / Porch

    • Direction Faces: Northeast

    • Other Structures: Shed(s)

    • Fireplace: Yes

    • Living Area: 1736

    • Water Source: Public

    • Subdivision Name: CEDAR DUNES CONDO PH 01-05

Similar Homes

5300 S. ATLANTIC AVENUE UNIT 20-206 placeholder 5300 S. ATLANTIC AVENUE UNIT 20-206
New
For Sale
Condo/Co-op
$399,000
2 bds 2 ba 1,384 sqft
5300 S. ATLANTIC AVENUE UNIT 20-206
4155 S ATLANTIC AVENUE UNIT 5090 placeholder 4155 S ATLANTIC AVENUE UNIT 5090
New
For Sale
Condo/Co-op
$349,000
1 bds 1 ba 701 sqft
4155 S ATLANTIC AVENUE UNIT 5090
4405 SEA MIST DRIVE UNIT 219 placeholder 4405 SEA MIST DRIVE UNIT 219
1 days
For Sale
Condo/Co-op
$415,900
3 bds 2 ba 1,174 sqft
4405 SEA MIST DRIVE UNIT 219
1855 PINE TREE DRIVE placeholder 1855 PINE TREE DRIVE
2 days
For Sale
House
$295,000
3 bds 2 ba 1,544 sqft
1855 PINE TREE DRIVE
2805 SAXON DRIVE placeholder 2805 SAXON DRIVE
2 days
For Sale
House
$475,000
2 bds 1 ba 1,016 sqft
2805 SAXON DRIVE
742 LAUREL BAY CIRCLE placeholder 742 LAUREL BAY CIRCLE
5 days
For Sale
Townhouse
$439,000
3 bds 2 ba 1,608 sqft
742 LAUREL BAY CIRCLE
1711 MAGNOLIA STREET placeholder 1711 MAGNOLIA STREET
7 days
For Sale
House
$449,000
2 bds 2 ba 952 sqft
1711 MAGNOLIA STREET
226 WILDWOOD AVENUE placeholder 226 WILDWOOD AVENUE
7 days
For Sale
House
$297,500
4 bds 3 ba 2,232 sqft
226 WILDWOOD AVENUE

The multiple listing information is provided by the Stellar MLS from a copyrighted compilation of listings. The compilation of listings and each individual listing are ©2026-present Stellar MLS. All Rights Reserved. The information provided is for consumers' personal, noncommercial use and may not be used for any purpose other than to identify prospective properties consumers may be interested in purchasing. All properties are subject to prior sale or withdrawal. All information provided is deemed reliable but is not guaranteed accurate, and should be independently verified. Listing courtesy of: ELITE REAL ESTATE PROFESSIONAL