Contact
Tell us about your needs

17978 BROADLEAF LOOP

Townhouse For Sale
$398,079

BTC: 13.26930000

ETH: 199.03950000

+$4K (2025/10/01)
73 days
3 bds
2 ba
1,702 sqft
Est. Estimated sales range: $0 - $0
$0

Overview

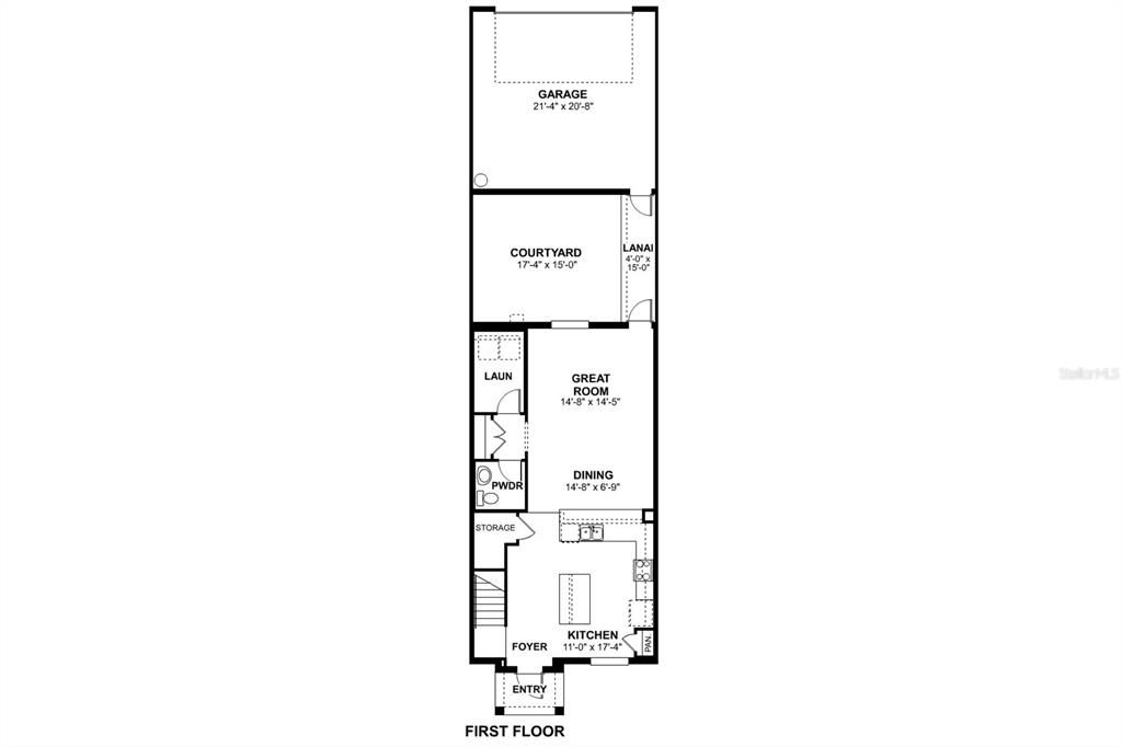
Under Construction. PRICED TO SELL! Welcome home to the Sabal model, the latest Townhome built by M/I Homes. This beautiful home features 3 bedrooms, 2 1/2 bathrooms, an open concept great-room and kitchen, and a 2-car garage. You'll enjoy the large owner’s suite with walk-in closet as one of the highlights of this home. As you walk into the main living area, a spacious kitchen greets you with a large center island and additional counter space with quartz counter tops. The dining area provides a casual dining space, and a spacious great room is perfect for entertaining. Palmera at Wellen Park offers a wide array of resort-style amenities anchored by a stunning, coastal-inspired clubhouse including Golf Simulator, Fitness Center, Pickleball, Resort-Style Pool & Lap Lanes, Splash Pad, Playground, Fireside Lounge, Clubhouse, Gathering Lawn, and On-Site Dining. Visit us today! *Photos show pictures of a previous model, not all features are the same.

Location

Facts and features

Type:
Residential
Parking:
No Data
Year Built:
2025
Lot:
0.07 Acres
Heating:
Electric
Price/sqft:
$234
Cooling:
Central Air
HOA:
$380
All facts and features
  • Flooring

    • Carpet

    • Laminate

    • Tile

    • Hardwood

    Heating

    • Electric

    Cooling

    • Central Air

    Appliances

    • Dishwasher

    • Microwave

    • Range

    Other interior features

    • High Ceilings

    • Open Floorplan

    • PrimaryBedroom Upstairs

    • Stone Counters

    • Walk-In Closet(s)

    Bedrooms and bathrooms

    • Bedrooms: 3

    • Bathrooms: 1

    • Full bathrooms: 2

  • Property

    • Levels: Two

    • Exterior Features: Irrigation System

    Lot

    • Lot: 0.07 Acres

    Other Property Information

    • Parcel Number: 0805070114

  • Type and style

    • Property Type: Residential

    • Property Sub Type: Townhouse

  • Utility

    • Cable Available

    • Electricity Available

    • Electricity Connected

    • Sewer Available

    • Sewer Connected

    • Water Available

    • Water Connected

  • Other financial information

    • HOA: $380

    • HOA Frequency: Monthly

    • Annual tax amount: $500

  • Source details

    • MLS ID: R4909955

    Other facts

    • Construction Materials: Block / Stucco

    • Foundation Details: Slab

    • Laundry Features: Inside / Laundry Room

    • Window Features: Storm Window(s)

    • Direction Faces: West

    • Garage Spaces: 2

    • Attached Garage: Yes

    • Garage: Yes

    • Living Area: 1702

    • Water Source: Public

    • Subdivision Name: PALMERA AT WELLEN PARK

Similar Homes

19220 ISADORA STREET placeholder 19220 ISADORA STREET
2 days
For Sale
House
$425,000
3 bds 2 ba 1,437 sqft
19220 ISADORA STREET
20181 RAGAZZA CIRCLE UNIT 101 placeholder 20181 RAGAZZA CIRCLE UNIT 101
3 days
For Sale
Condo/Co-op
$377,000
3 bds 2 ba 1,706 sqft
20181 RAGAZZA CIRCLE UNIT 101
13852 VADINI STREET placeholder 13852 VADINI STREET
3 days
For Sale
House
$459,000
2 bds 2 ba 1,611 sqft
13852 VADINI STREET
295 FAREHAM DRIVE placeholder 295 FAREHAM DRIVE
5 days
For Sale
House
$387,500
4 bds 2 ba 1,996 sqft
295 FAREHAM DRIVE
18002 FRANKLIN PARK COURT placeholder 18002 FRANKLIN PARK COURT
6 days
For Sale
House
$399,000
2 bds 2 ba 1,524 sqft
18002 FRANKLIN PARK COURT
10768 TROPHY DRIVE placeholder 10768 TROPHY DRIVE
6 days
For Sale
House
$450,000
3 bds 2 ba 1,858 sqft
10768 TROPHY DRIVE
12611 GARIBALDI LANE placeholder 12611 GARIBALDI LANE
6 days
For Sale
House
$330,000
2 bds 2 ba 1,568 sqft
12611 GARIBALDI LANE
20080 RAGAZZA CIRCLE UNIT 202 placeholder 20080 RAGAZZA CIRCLE UNIT 202
6 days
For Sale
Condo/Co-op
$399,000
3 bds 2 ba 2,187 sqft
20080 RAGAZZA CIRCLE UNIT 202

The multiple listing information is provided by the Stellar MLS from a copyrighted compilation of listings. The compilation of listings and each individual listing are ©2025-present Stellar MLS. All Rights Reserved. The information provided is for consumers' personal, noncommercial use and may not be used for any purpose other than to identify prospective properties consumers may be interested in purchasing. All properties are subject to prior sale or withdrawal. All information provided is deemed reliable but is not guaranteed accurate, and should be independently verified. Listing courtesy of: M/I HOMES SWFL, LLC