Contact
Tell us about your needs

2543 NEWBERN DRIVE

Townhouse Recently Sold
$350,000

BTC: 4.05327157

ETH: 119.61722488

Sold on: 2025-12-12
20 days
2 bds
2 ba
1,740 sqft
Est. Estimated sales range: $0 - $0
$0

Overview

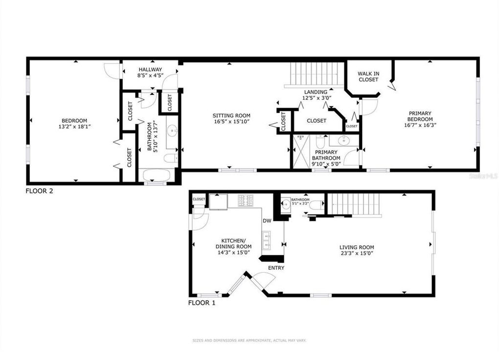
One or more photo(s) has been virtually staged. Welcome to this beautifully maintained, move-in-ready townhouse in the sought-after Summerdale community, tucked in Clearwater’s peaceful Countryside area. This 1,740-square-foot home blends comfort, style, and convenience—just minutes from world-class beaches, top-rated shopping, and the airport. Built in 2002, the two-story layout features 9-foot ceilings on the main level and vaulted ceilings upstairs for an open, airy feel. The bright kitchen offers rich wood cabinetry, sleek granite countertops, and updated stainless steel appliances, flowing seamlessly into the dining and family areas—perfect for entertaining. The kitchen and main living areas on both floors were freshly painted, giving the home a clean, updated feel. Step outside to your screened-in patio and with no neighbors directly in front for added privacy and peaceful views. Upstairs, two spacious bedrooms include a large primary suite with a fully remodeled bathroom (Feb 2025) and a beautifully renovated guest bath (Aug 2025). A versatile loft adds space for a home office, gym, or media nook, with laundry conveniently nearby. Recent HOA updates include a new roof, exterior paint, and updated water meters, ensuring peace of mind and a well-maintained community. This home sits on higher elevation and has never flooded, offering extra confidence and comfort during Florida’s rainy seasons. Enjoy the community pool right across the street and an unbeatable location—just 5 minutes to Countryside Mall, 10 minutes to Downtown Dunedin, and 25 minutes to Clearwater Beach. Come see why Summerdale Townhomes is Clearwater’s hidden gem—where comfort, style, and convenience come together effortlessly.

Location

Facts and features

Type:
Residential
Parking:
No Data
Year Built:
2002
Lot:
0.05 Acres
Heating:
Central
Price/sqft:
$213
Cooling:
Central Air
HOA:
$260
All facts and features
  • Flooring

    • Ceramic Tile

    • Luxury Vinyl

    Heating

    • Central

    Cooling

    • Central Air

    Appliances

    • Built-In Oven

    • Cooktop

    • Dishwasher

    • Dryer

    • Electric Water Heater

    • Microwave

    • Range Hood

    • Refrigerator

    • Washer

    Other interior features

    • Ceiling Fan(s)

    • High Ceilings

    • Open Floorplan

    • PrimaryBedroom Upstairs

    • Thermostat

    • Walk-In Closet(s)

    • Window Treatments

    Bedrooms and bathrooms

    • Bedrooms: 2

    • Bathrooms: 1

    • Full bathrooms: 2

  • Property

    • Levels: Two

    • Exterior Features: Garden / Private Mailbox / Rain Gutters / Sliding Doors

    Lot

    • Lot: 0.05 Acres

    Other Property Information

    • Parcel Number: 302816860430000090

  • Type and style

    • Property Type: Residential

    • Property Sub Type: Townhouse

  • Utility

    • Cable Available

    • Electricity Connected

    • Sewer Connected

    • Water Connected

  • Other financial information

    • HOA: $260

    • HOA Frequency: Monthly

    • Annual tax amount: $3,790

  • Source details

    • MLS ID: TB8440552

    Other facts

    • Construction Materials: Block / Wood Frame

    • Foundation Details: Slab

    • Laundry Features: Inside / Upper Level

    • Direction Faces: North

    • Garage Spaces: 2

    • Attached Garage: Yes

    • Garage: Yes

    • Living Area: 1740

    • Water Source: Public

    • Subdivision Name: SUMMERDALE TWNHMS

Similar Homes

20 DURHAM COURT placeholder 20 DURHAM COURT
New
Recently Sold
House
$315,000
3 bds 2 ba 1,909 sqft
20 DURHAM COURT
2774 JARVIS CIRCLE placeholder 2774 JARVIS CIRCLE
New
Recently Sold
House
$439,000
3 bds 2 ba 1,807 sqft
2774 JARVIS CIRCLE
108 TIMBERVIEW DRIVE placeholder 108 TIMBERVIEW DRIVE
New
Recently Sold
House
$475,000
3 bds 3 ba 2,034 sqft
108 TIMBERVIEW DRIVE
138 KENDALE DR placeholder 138 KENDALE DR
New
Recently Sold
House
$299,900
3 bds 2 ba 1,623 sqft
138 KENDALE DR
1701 EVANS DRIVE placeholder 1701 EVANS DRIVE
New
Recently Sold
House
$295,000
2 bds 2 ba 1,212 sqft
1701 EVANS DRIVE
2524 PINE COVE LN placeholder 2524 PINE COVE LN
New
Recently Sold
Townhouse
$320,000
3 bds 2 ba 1,551 sqft
2524 PINE COVE LN
260 CYPRESS PLACE placeholder 260 CYPRESS PLACE
New
Recently Sold
Townhouse
$385,000
3 bds 2 ba 1,755 sqft
260 CYPRESS PLACE
1958 LAKE RIDGE BOULEVARD placeholder 1958 LAKE RIDGE BOULEVARD
New
Recently Sold
Townhouse
$308,000
3 bds 2 ba 1,603 sqft
1958 LAKE RIDGE BOULEVARD

The multiple listing information is provided by the Stellar MLS from a copyrighted compilation of listings. The compilation of listings and each individual listing are ©2025-present Stellar MLS. All Rights Reserved. The information provided is for consumers' personal, noncommercial use and may not be used for any purpose other than to identify prospective properties consumers may be interested in purchasing. All properties are subject to prior sale or withdrawal. All information provided is deemed reliable but is not guaranteed accurate, and should be independently verified. Listing courtesy of: KP REALTY