Contact
Tell us about your needs

6126 SEQUOIA DRIVE N

Townhouse For Sale
$272,000

BTC: 4.03758697

ETH: 141.66666667

-$2K (2026/01/06)
83 days
Waterfront
2 bds
2 ba
1,362 sqft
Est. Estimated sales range: $0 - $0
$0

Overview

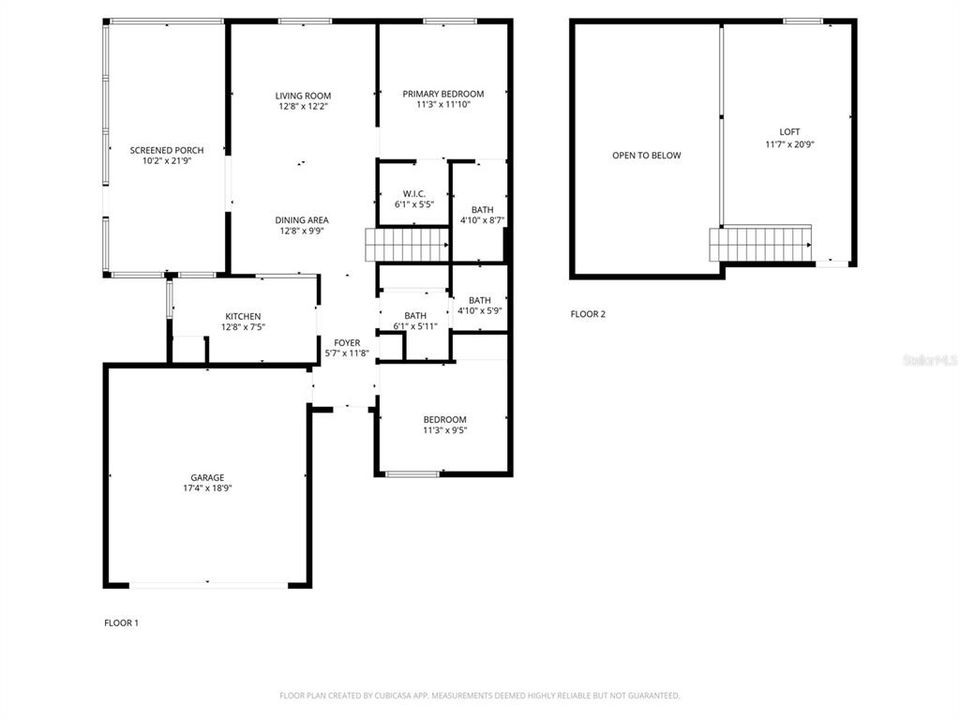
This beautifully maintained Two-Bedroom, Two-Bathroom Villa boasts a Spacious Loft area and a Large Four-Seasons Room. This updated home is located in the Highly Desirable Riverwood Plantation Community of Port Orange. Just minutes from the Beach, you're conveniently situated off Spruce Creek Road, close to shopping, dining, and top-rated schools. Featuring a functional layout, this home offers Bright and Open Living Areas, a Well-Appointed Kitchen, and a Private Outdoor Space. The corner lot location borders community greenspace, providing a Peaceful and Private Ambiance that will never see left side neighbors. The primary suite includes an en-suite bath and walk-in closet, while the guest bedroom and bath are also located on the main level. The loft, newly recarpeted in 2025, adds flexible space perfect for a home office, hobby area, or guest quarters (approx. 11 x 21 sq ft). Recent upgrades include a New Roof (2023), New AC (2023) New Washer and Dryer (2024), New Storm Door (2024), and Updated Bathrooms (2024). HOA repainted whole outside of the unit (2024). Residents of Riverwood Plantation enjoy exceptional amenities such as a Rentable Clubhouse with Full Kitchen, Swimming Pool, Pickleball, Racquetball, Basketball and Tennis Courts, as well as a Scenic Nature Boardwalk leading to a Fishing Pier and Gazebo. New owners can pay for access to a Private Boat Launch that connects to Spruce Creek River—all just steps from your backyard. HOA fees include weekly lawn mowing, fertilization, irrigation system maintenance, exterior painting, pressure washing of driveways and sidewalks and more, and access to RV/boat storage (assigned spots as available). Enjoy a low-maintenance lifestyle with resort-style living in one of Port Orange’s most sought-after communities!

Location

Facts and features

Type:
Residential
Parking:
Driveway / Garage Door Opener / Ground Level / Guest / Tandem
Year Built:
1990
Lot:
0.14 Acres
Heating:
Central / Electric
Price/sqft:
$200
Cooling:
Central Air
HOA:
$360
All facts and features
  • Flooring

    • Carpet

    • Tile

    Heating

    • Central

    • Electric

    Cooling

    • Central Air

    Appliances

    • Cooktop

    • Dishwasher

    • Dryer

    • Electric Water Heater

    • Microwave

    • Range

    • Refrigerator

    • Washer

    Other interior features

    • Ceiling Fan(s)

    • High Ceilings

    • Open Floorplan

    • Primary Bedroom Main Floor

    • Solid Surface Counters

    • Split Bedroom

    • Thermostat

    • Vaulted Ceiling(s)

    • Walk-In Closet(s)

    • Window Treatments

    Bedrooms and bathrooms

    • Bedrooms: 2

    • Full bathrooms: 2

  • Parking

    • Driveway

    • Garage Door Opener

    • Ground Level

    • Guest

    • Tandem

    Property

    • Levels: Two

    • Exterior Features: Irrigation System / Lighting / Private Mailbox / Rain Gutters / Sidewalk

    Lot

    • Lot: 0.14 Acres

    Other Property Information

    • Parcel Number: 633808000530

    • Zoning: 16PUD

  • Type and style

    • Property Type: Residential

    • Property Sub Type: Townhouse

  • Utility

    • Cable Connected

    • Electricity Connected

    • Sewer Connected

    • Sprinkler Recycled

    • Street Lights

    • Water Connected

  • Other financial information

    • HOA: $360

    • HOA Frequency: Quarterly

    • Annual tax amount: $3,286

  • Source details

    • MLS ID: O6348951

    Other facts

    • Construction Materials: Block / Concrete / Stucco

    • Foundation Details: Slab

    • Laundry Features: Laundry Room

    • Lot Features: Corner Lot / Greenbelt / Sidewalk

    • Patio And Porch Features: Enclosed / Front Porch / Porch / Screened

    • Window Features: Aluminum Frames / Blinds / Window Treatments

    • Direction Faces: North

    • Waterfront: Yes

    • Water Body Name: SPRUCE CREEK

    • Garage Spaces: 2

    • Attached Garage: Yes

    • Garage: Yes

    • Living Area: 1362

    • Water Source: Public

    • Subdivision Name: RIVERWOOD PH 04A

Similar Homes

485 MERRIMAC DRIVE placeholder 485 MERRIMAC DRIVE
4 days
For Sale
House
$235,000
3 bds 2 ba 1,572 sqft
485 MERRIMAC DRIVE
5784 HEATHERMERE LANE placeholder 5784 HEATHERMERE LANE
5 days
For Sale
House
$349,900
3 bds 2 ba 1,672 sqft
5784 HEATHERMERE LANE
253 N BRIGHTON DRIVE placeholder 253 N BRIGHTON DRIVE
5 days
For Sale
House
$299,900
2 bds 2 ba 1,315 sqft
253 N BRIGHTON DRIVE
168 TURNBERRY CIRCLE placeholder 168 TURNBERRY CIRCLE
14 days
For Sale
House
$315,000
2 bds 2 ba 1,289 sqft
168 TURNBERRY CIRCLE
1316 POINT COURT placeholder 1316 POINT COURT
21 days
For Sale
House
$279,900
2 bds 2 ba 1,019 sqft
1316 POINT COURT
4624 HARBOUR VILLAGE BOULEVARD UNIT 4204 placeholder 4624 HARBOUR VILLAGE BOULEVARD UNIT 4204
-$2K (2026/01/06)
For Sale
Condo/Co-op
$347,000
2 bds 2 ba 1,339 sqft
4624 HARBOUR VILLAGE BOULEVARD UNIT 4204
706 TANTALLON COURT placeholder 706 TANTALLON COURT
-$5K (2026/01/07)
For Sale
House
$344,900
2 bds 3 ba 1,789 sqft
706 TANTALLON COURT
6157 SEQUOIA DRIVE placeholder 6157 SEQUOIA DRIVE
48 days
For Sale
Townhouse
$265,000
3 bds 2 ba 2,132 sqft
6157 SEQUOIA DRIVE

The multiple listing information is provided by the Stellar MLS from a copyrighted compilation of listings. The compilation of listings and each individual listing are ©2026-present Stellar MLS. All Rights Reserved. The information provided is for consumers' personal, noncommercial use and may not be used for any purpose other than to identify prospective properties consumers may be interested in purchasing. All properties are subject to prior sale or withdrawal. All information provided is deemed reliable but is not guaranteed accurate, and should be independently verified. Listing courtesy of: FANNIE HILLMAN & ASSOCIATES