Contact
Tell us about your needs

6884 NW 30 Ave, Fort Lauderdale FL 33309

Townhouse For Sale
$544,000

BTC: 6.07821229

ETH: 179.24217463

47 days
5 bds
2 ba
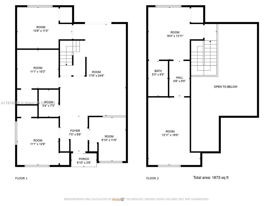
1,873 sqft
Est. Estimated sales range: $0 - $0
$0

Overview

OPEN SAT. BRAND NEW 2025 CONSTRUCTION with POOL and SOARING CATHEDRAL CEILINGS in Sought-After Oakland Park! Amazing Layout and High Roof Line. Stunning Curb Appeal and Energy Efficiency. ALL HURRICANE IMPACT WINDOWS & DOORS. Spacious, Fully Fenced Lot w/ Super Deep In-Ground Pool. ALL NEW EVERYTHING, New Plumbing, New Electric, HVAC, Ducting, Insulation, Roof Structure (Roof is much higher than neighbors because owner built a higher roof when building), Fixtures, etc. NO RENTAL RESTRICTIONS. A+ Finishes, High-End Fixtures... The works! PRIME LOCATION in a Beautiful WALKABLE Neighborhood, Backs Up to a Lovely Park! HOA FEE ONLY is $30 a MONTH! Surrounded by Gorgeous Homes. A+ Neighborhood: Just 6 Mins to Chase Stadium, 14 to projectROCK, 16 to Coral Ridge Country Club & Lauderdale-by-the-Sea Beach, 18 to Fort Lauderdale Airport. Call Now!

Location

Facts and features

Type:
Residential
Parking:
2 Or More Spaces
Year Built:
2025
Lot:
No Data
Heating:
Central
Price/sqft:
$290
Cooling:
Central Air
HOA:
$30
All facts and features
  • Flooring

    • Tile

    Heating

    • Central

    Cooling

    • Central Air

    Appliances

    • Other Equipment/Appliances

    Other interior features

    • First Floor Entry

    • Den/Library/Office

    Bedrooms and bathrooms

    • Bedrooms: 5

    • Full bathrooms: 2

  • Parking

    • 2 Or More Spaces

    Property

    • Exterior Features: None

    Other Property Information

    • Parcel Number: 494208010621

  • Type and style

    • Property Type: Residential

    • Property Sub Type: Townhouse

  • Other financial information

    • HOA: $30

    • HOA Frequency: Monthly

    • Annual tax amount: $362

  • Source details

    • MLS ID: A11918595

    Other facts

    • Construction Materials: CBS Construction / Frame

    • Window Features: Complete Impact Glass

    • Direction Faces: South

    • Living Area: 1873

    • Subdivision Name: PALM-AIRE VILLAGE SECTION

Similar Homes

4488 E Appleton Cir E, Oakland Park FL 33309 placeholder 4488 E Appleton Cir E, Oakland Park FL 33309
New
For Sale
Townhouse
$619,000
3 bds 2 ba 1,754 sqft
4488 E Appleton Cir E, Oakland Park FL 33309
4846 14th, Coconut Creek, FL 33063 placeholder 4846 14th, Coconut Creek, FL 33063
1 days
For Sale
House
$549,900
4 bds 2 ba 1,779 sqft
4846 14th, Coconut Creek, FL 33063
316 Bishop Rd, North Lauderdale FL 33068 placeholder 316 Bishop Rd, North Lauderdale FL 33068
2 days
For Sale
House
$470,000
3 bds 2 ba 1,326 sqft
316 Bishop Rd, North Lauderdale FL 33068
4331 NW 9th Ct, Coconut Creek FL 33066 placeholder 4331 NW 9th Ct, Coconut Creek FL 33066
2 days
For Sale
House
$559,990
3 bds 2 ba 1,387 sqft
4331 NW 9th Ct, Coconut Creek FL 33066
3570 NW 36th Ave, Lauderdale Lakes FL 33309 placeholder 3570 NW 36th Ave, Lauderdale Lakes FL 33309
4 days
For Sale
House
$489,000
4 bds 2 ba
3570 NW 36th Ave, Lauderdale Lakes FL 33309
4321 NW 12th Ter, Oakland Park FL 33309 placeholder 4321 NW 12th Ter, Oakland Park FL 33309
5 days
For Sale
House
$548,900
3 bds 2 ba 1,144 sqft
4321 NW 12th Ter, Oakland Park FL 33309
2800 Palm Aire, Pompano Beach, FL 33069 placeholder 2800 Palm Aire, Pompano Beach, FL 33069
6 days
For Sale
Condo/Co-op
$400,000
2 bds 2 ba 1,064 sqft
2800 Palm Aire, Pompano Beach, FL 33069
559 NW 70th Way, Margate FL 33063 placeholder 559 NW 70th Way, Margate FL 33063
7 days
For Sale
House
$550,000
3 bds 2 ba 1,441 sqft
559 NW 70th Way, Margate FL 33063

The multiple listing information is provided by the Miami Association of REALTORS® from a copyrighted compilation of listings. The compilation of listings and each individual listing are ©2026-present Miami Association of REALTORS®. All Rights Reserved. The information provided is for consumers' personal, noncommercial use and may not be used for any purpose other than to identify prospective properties consumers may be interested in purchasing. All properties are subject to prior sale or withdrawal. All information provided is deemed reliable but is not guaranteed accurate, and should be independently verified. Listing courtesy of: Keller Williams Eagle Realty