Contact
Tell us about your needs

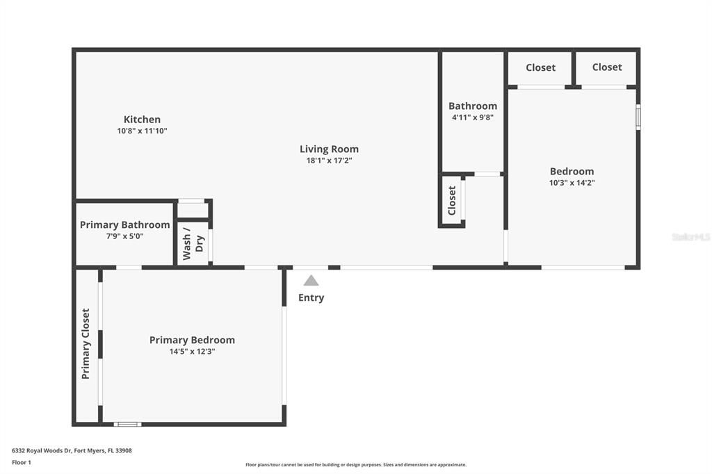
6332 ROYAL WOODS DRIVE

House For Sale
$199,000

BTC: 2.30457441

ETH: 68.01093643

119 days
2 bds
2 ba
1,008 sqft
Est. Estimated sales range: $0 - $0
$0

Overview

**MOVE-IN READY Villa at Royal Wood in Island Park with DOWN PAYMENT ASSISTANCE AVAILABLE!** Discover your dream home in this completely renovated attached villa located in the beautiful Royal Wood community in Island Park. This affordable home offers just over 1,000 square feet of beautifully renovated living space, showcasing professional craftsmanship by local contractors with luxury upgrades and energy-efficient improvements throughout. Key features include impact windows and doors installed in August 2024 for enhanced security and energy efficiency, modern open-concept floor plan perfect for entertaining, luxury granite countertops with gourmet kitchen and stainless steel appliances, premium tile flooring throughout, white shaker cabinetry with ample storage, and a newer architectural shingle roof with 150 mph wind resistance rating. The spacious layout offers 2 bedrooms with private patio access from each room, master suite with ensuite bathroom, guest bath, spacious patio perfect for outdoor dining and relaxation, assigned parking spaces, and pet-friendly community. Located just behind Route 41, enjoy quick access to shopping centers, restaurants, entertainment, schools, places of worship, airport and major stadiums. Resort-style community amenities with low HOA fees include sparkling community pool, tennis and pickleball courts, shuffleboard facilities, clubhouse with pond views, and water feature for tranquil ambiance. **FINANCING OPPORTUNITY:** Special financing terms available - this property qualifies for down payment assistance programs that can help make homeownership more affordable. Call for eligibility requirements and program details. Investment protection includes transferable flood insurance policy and energy-efficient features that reduce utility costs. This isn't just a house - it's your gateway to the Florida lifestyle you've been dreaming of. Schedule your private showing today and see why Royal Wood residents love calling this community home.

Location

Facts and features

Type:
Residential
Parking:
No Data
Year Built:
1981
Lot:
0.04 Acres
Heating:
Electric
Price/sqft:
$197
Cooling:
Central Air
HOA:
$279
All facts and features
  • Flooring

    • Tile

    Heating

    • Electric

    Cooling

    • Central Air

    Appliances

    • Dishwasher

    • Microwave

    • Range

    • Refrigerator

    Other interior features

    • Kitchen/Family Room Combo

    • Split Bedroom

    • Stone Counters

    • Thermostat

    • Vaulted Ceiling(s)

    Bedrooms and bathrooms

    • Bedrooms: 2

    • Full bathrooms: 2

  • Property

    • Levels: One

    • Exterior Features: Courtyard / Rain Gutters / Sliding Doors

    Lot

    • Lot: 0.04 Acres

    Other Property Information

    • Parcel Number: 1246240407002.00C0

    • Zoning: RM-2

  • Type and style

    • Property Type: Residential

    • Property Sub Type: Villa

  • Utility

    • BB/HS Internet Available

    • Cable Connected

    • Electricity Connected

    • Sewer Connected

    • Water Connected

  • Other financial information

    • HOA: $279

    • HOA Frequency: Monthly

    • Annual tax amount: $1,249

  • Source details

    • MLS ID: C7514022

    Other facts

    • Construction Materials: Stucco / Wood Frame / Wood Siding

    • Foundation Details: Slab

    • Laundry Features: Electric Dryer Hookup / Inside / Laundry Closet / Washer Hookup

    • Direction Faces: North

    • Living Area: 1008

    • Water Source: Public

    • Subdivision Name: ROYAL WOODS PH 01

Similar Homes

17025 GOLFSIDE CIRCLE UNIT 303 placeholder 17025 GOLFSIDE CIRCLE UNIT 303
22 days
For Sale
Townhouse
$189,000
2 bds 2 ba 1,214 sqft
17025 GOLFSIDE CIRCLE UNIT 303
7150 GOLDEN EAGLE COURT UNIT 213 placeholder 7150 GOLDEN EAGLE COURT UNIT 213
26 days
For Sale
Condo/Co-op
$234,900
2 bds 2 ba 1,048 sqft
7150 GOLDEN EAGLE COURT UNIT 213
6300 Royal Woods Drive, Fort Myers FL 33908 placeholder 6300 Royal Woods Drive, Fort Myers FL 33908
-$5K (2025/11/24)
For Sale
House
$210,000
2 bds 2 ba 1,006 sqft
6300 Royal Woods Drive, Fort Myers FL 33908
6478 E Royal Woods, Fort Myers FL 33908 placeholder 6478 E Royal Woods, Fort Myers FL 33908
-$100K (2025/08/26)
For Sale
House
$255,000
2 bds 2 ba
6478 E Royal Woods, Fort Myers FL 33908
6396 Royal Woods Dr, Fort Myers FL 33908 placeholder 6396 Royal Woods Dr, Fort Myers FL 33908
153 days
For Sale
House
$239,900
2 bds 2 ba
6396 Royal Woods Dr, Fort Myers FL 33908
6322 Royal Woods Dr, Fort Myers FL 33908 placeholder 6322 Royal Woods Dr, Fort Myers FL 33908
154 days
For Sale
House
$249,000
3 bds 2 ba 1,179 sqft
6322 Royal Woods Dr, Fort Myers FL 33908
17287 TIMBER OAK LANE placeholder 17287 TIMBER OAK LANE
-$10K (2025/11/12)
For Sale
House
$179,999
2 bds 1 ba 1,006 sqft
17287 TIMBER OAK LANE
15075 PARKSIDE DRIVE UNIT 201 placeholder 15075 PARKSIDE DRIVE UNIT 201
-$19K (2025/06/02)
For Sale
Condo/Co-op
$205,000
2 bds 2 ba 909 sqft
15075 PARKSIDE DRIVE UNIT 201

The multiple listing information is provided by the Stellar MLS from a copyrighted compilation of listings. The compilation of listings and each individual listing are ©2025-present Stellar MLS. All Rights Reserved. The information provided is for consumers' personal, noncommercial use and may not be used for any purpose other than to identify prospective properties consumers may be interested in purchasing. All properties are subject to prior sale or withdrawal. All information provided is deemed reliable but is not guaranteed accurate, and should be independently verified. Listing courtesy of: DALTON WADE INC