Contacto
Cuéntenos sobre sus necesidades

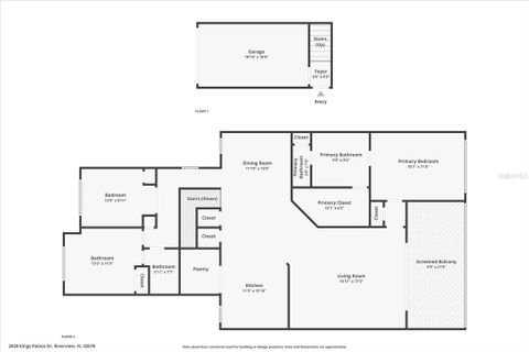
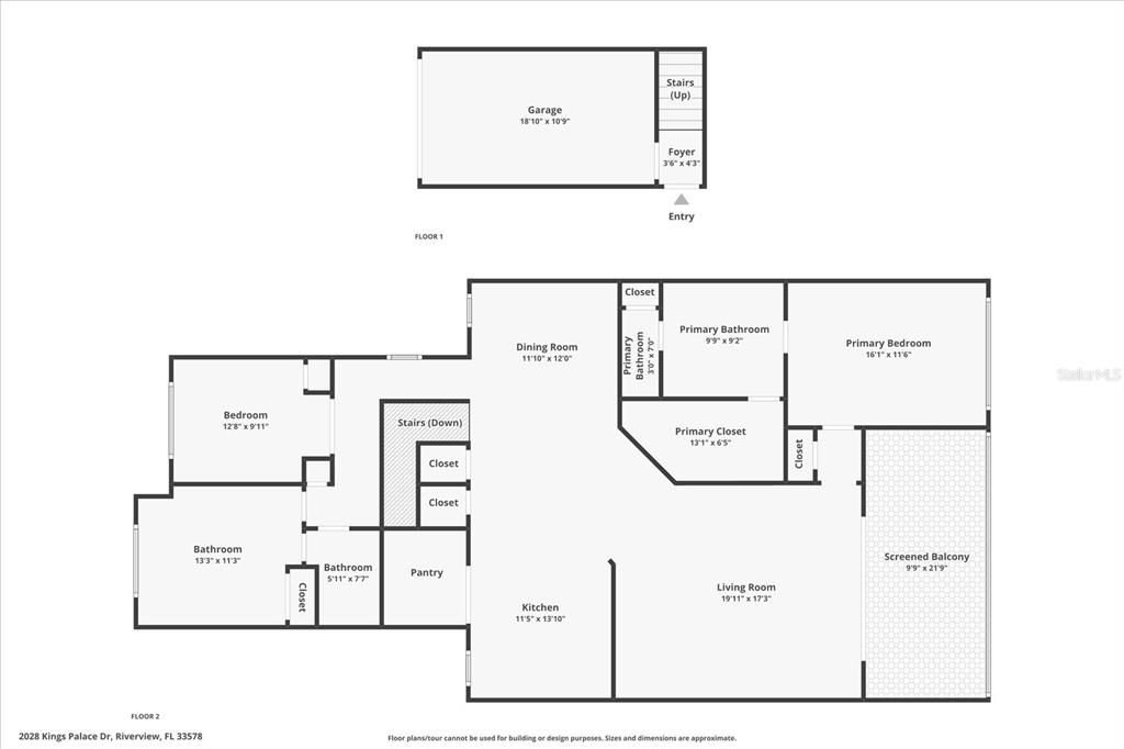
2028 KINGS PALACE DRIVE UNIT 202

Condo / Coop Activo con contrato
$225,000

BTC: 3.06015240

ETH: 111.68747363

-$24K (2025/11/14)
47 días
3 camas
2 baños
1,771 sqft
Est. Rango de ventas estimado: $0 - $0
$0

Visión general

Under contract-accepting backup offers. Discover the best of maintenance-free Florida living in this spacious, move-in-ready condo located within the desirable Villa Serena community in the heart of Riverview. This is a rare opportunity to own a generously sized 3-bedroom, 2-bathroom unit with an intelligent, open floor plan spanning 1,771 square feet—one of the largest layouts in the neighborhood. This home has been meticulously updated, featuring plush new carpet throughout the main living areas and bedrooms, a recently installed new water heater for instant peace of mind, and the added benefit of a community sprinkler system for exterior maintenance. The open living areas boast high ceilings and plenty of room for entertaining, while the gourmet kitchen is equipped with solid wood cabinets and essential appliances. Retreat to the large owner's suite, which includes an oversized master closet and dual vanities in the private bath. For added comfort and energy efficiency, the unit includes multiple ceiling fans. The highly sought-after location offers unparalleled convenience, providing quick access to I-75 and the Selmon Expressway for an easy commute to Downtown Tampa, MacDill Air Force Base, and the vibrant shopping and dining of the Brandon area. Beyond the unit itself, enjoy a truly resort-style lifestyle thanks to the fantastic community amenities, including a stunning resort-style swimming pool, a fully equipped fitness center, a clubhouse for social events, and a playground. With a dedicated one-car garage and HOA fees that cover water, sewer, trash, insurance, and maintenance, this condo truly is a fantastic value. Schedule your showing today!

Ubicación

Hechos y características

Tipo:
Residential
Estacionamiento:
Sin datos
Año de construcción:
2006
Lote:
2 Pies Cuadrados
Calefacción:
Central
precio por sq. medidor:
$127
Enfriamiento:
Central Air
HOA:
$423
Más hechos y características
  • Piso

    • Carpet

    • Tile

    Calefacción

    • Central

    Enfriamiento

    • Central Air

    Accesorios

    • Dishwasher

    • Range

    • Refrigerator

    Otras características interiores

    • Open Floorplan

    Dormitorios y baños

    • Dormitorios: 3

    • Baños completos: 2

  • Propiedad

    • Pisos: Two

    • Características Exteriores: Sliding Doors

    Lote

    • Lote: 2 Pies Cuadrados

    Otra Información de Propiedad

    • Número de Parcela: U05302092K00000001202.0

    • Zonificación: PD

  • Tipo y estilo

    • Tipo de propiedad: Residential

    • Subtipo de propiedad: Condominium

  • Utilidad

    • Public

  • Otra información financiera

    • HOA: $423

    • Frecuencia HOA: Monthly

    • Importe anual de impuestos: $1,870

  • Detalles de la fuente

    • MLS ID: TB8434946

    Otros hechos

    • Materiales de construcción: Stucco

    • Detalles de la fundación: Block

    • Características de lavandería: Inside

    • Caras de dirección: West

    • Espacios de garaje: 1

    • Garaje adjunto: Si

    • Garaje: Si

    • Salón: 1771

    • Fuente de agua: Public

    • Nombre de subdivisión: VILLA SERENA A CONDO

Casas similares

10612 SHADY FALLS COURT placeholder 10612 SHADY FALLS COURT
8 días
Activo con contrato
Adosados
$199,900
2 camas 2 baños 1,539 sqft
10612 SHADY FALLS COURT
2802 CONCH HOLLOW DRIVE placeholder 2802 CONCH HOLLOW DRIVE
13 días
Activo con contrato
Adosados
$259,900
3 camas 2 baños 1,684 sqft
2802 CONCH HOLLOW DRIVE
7037 WOODCHASE GLEN DRIVE placeholder 7037 WOODCHASE GLEN DRIVE
13 días
Activo con contrato
Adosados
$256,500
3 camas 2 baños 1,400 sqft
7037 WOODCHASE GLEN DRIVE
4420 BARNSTEAD DRIVE placeholder 4420 BARNSTEAD DRIVE
14 días
Activo con contrato
Adosados
$217,000
2 camas 2 baños 1,110 sqft
4420 BARNSTEAD DRIVE
9510 NEWDALE WAY UNIT 102 placeholder 9510 NEWDALE WAY UNIT 102
19 días
Activo con contrato
Condo / Coop
$175,000
3 camas 2 baños 1,151 sqft
9510 NEWDALE WAY UNIT 102
1723 ELK SPRING DRIVE placeholder 1723 ELK SPRING DRIVE
-$10K (2025/12/13)
Activo con contrato
Casa
$279,900
3 camas 2 baños 1,490 sqft
1723 ELK SPRING DRIVE
964 SOMBRA STREET placeholder 964 SOMBRA STREET
34 días
Activo con contrato
Adosados
$225,000
3 camas 2 baños 1,650 sqft
964 SOMBRA STREET
6227 KRYCUL AVENUE placeholder 6227 KRYCUL AVENUE
40 días
Activo con contrato
Lotes / Tierras
$219,000
0 room(s)
6227 KRYCUL AVENUE

The multiple listing information is provided by the Stellar MLS from a copyrighted compilation of listings. The compilation of listings and each individual listing are ©2026-present Stellar MLS. All Rights Reserved. The information provided is for consumers' personal, noncommercial use and may not be used for any purpose other than to identify prospective properties consumers may be interested in purchasing. All properties are subject to prior sale or withdrawal. All information provided is deemed reliable but is not guaranteed accurate, and should be independently verified. Listing courtesy of: KELLER WILLIAMS SUBURBAN TAMPA