Contacto
Cuéntenos sobre sus necesidades

1112 LAKE SHORE RANCH DRIVE

Casa En Venta
$299,900

BTC: 9.99666667

ETH: 149.95000000

3 días
4 camas
2 baños
1,754 sqft
Est. Rango de ventas estimado: $0 - $0
$0

Visión general

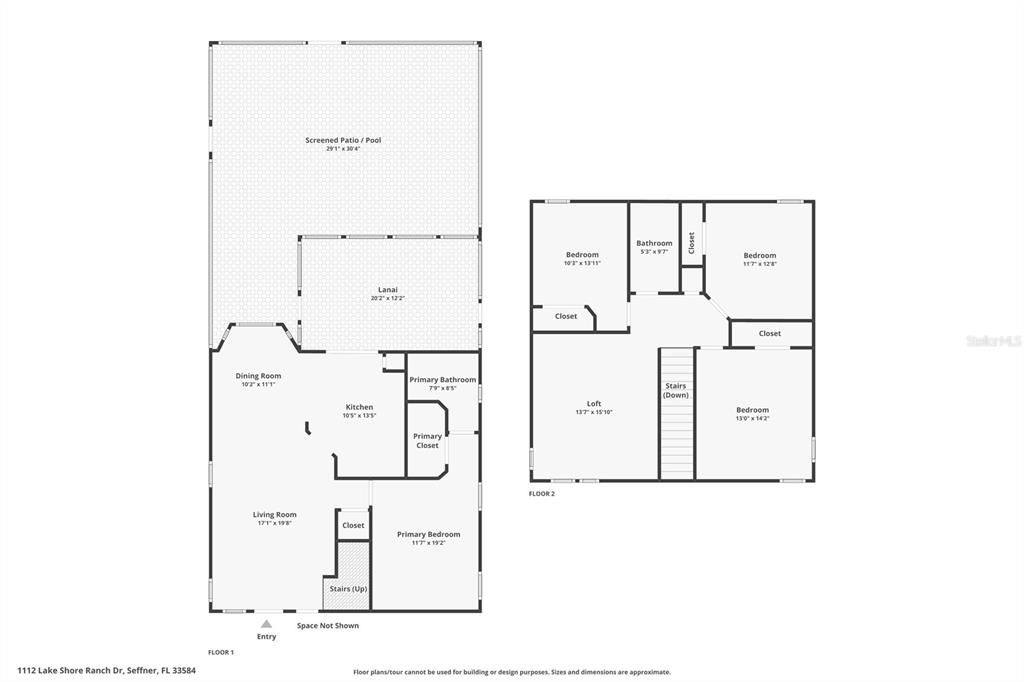
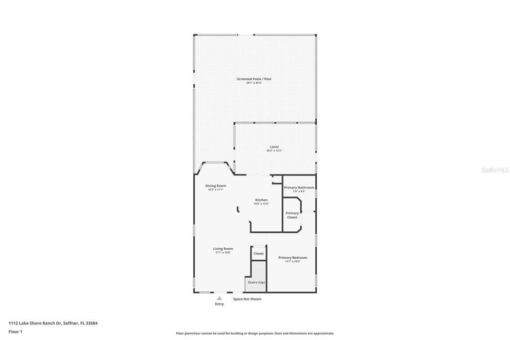
Discover your next home at 1112 Lake Shore Ranch Dr in Seffner, FL, where this 4-bedroom, 2-bathroom house offers 1,754 square feet of living space with tremendous potential. Located in convenient Seffner, this property provides easy access to highways, schools, shopping, and dining options throughout the area. This home features a practical layout with the primary bedroom conveniently located on the first floor, making it suitable for various living arrangements. The recently installed roof provides added security and peace of mind for new owners. Step outside to enjoy the screened-in patio and pool area, which overlooks peaceful water views in a location that's not within a flood zone. The property offers excellent bones and flexibility for buyers looking to customize their living space. Whether you're seeking a move-in ready home or a project to transform into your dream residence, this house provides the foundation for either approach. The four bedrooms offer ample space for families, guests, or home office needs, while two full bathrooms serve the household efficiently. The outdoor space truly sets this property apart, with the pool and patio area creating an ideal setting for relaxation and entertainment. The serene water views add a calming element to daily life, while the screened patio extends your living space into the Florida climate. Seffner's location provides the perfect balance of suburban comfort with urban convenience. This home represents an opportunity to create something special in a desirable area. With its solid structure, attractive features, and prime location, this property is ready for your personal touch and vision.

Ubicación

Hechos y características

Tipo:
Residential
Estacionamiento:
Sin datos
Año de construcción:
2001
Lote:
0.10 Hectáreas
Calefacción:
Central
precio por sq. medidor:
$171
Enfriamiento:
Central Air
HOA:
$230
Más hechos y características
  • Piso

    • Carpet

    • Ceramic Tile

    • Concrete

    Calefacción

    • Central

    Enfriamiento

    • Central Air

    Accesorios

    • Dishwasher

    • Range

    • Refrigerator

    Otras características interiores

    • Ceiling Fan(s)

    • Vaulted Ceiling(s)

    Dormitorios y baños

    • Dormitorios: 4

    • Baños completos: 2

  • Propiedad

    • Pisos: Two

    • Piscina Privada: Si

    • Características Exteriores: Sidewalk

    Lote

    • Lote: 0.10 Hectáreas

    Otra Información de Propiedad

    • Número de Parcela: U1229202AIA0000000071.0

    • Zonificación: PD

  • Tipo y estilo

    • Tipo de propiedad: Residential

    • Subtipo de propiedad: Single Family Residence

  • Utilidad

    • BB/HS Internet Available

    • Electricity Available

    • Electricity Connected

  • Otra información financiera

    • HOA: $230

    • Frecuencia HOA: Semi-Annually

    • Importe anual de impuestos: $3,103

  • Detalles de la fuente

    • MLS ID: TB8452463

    Otros hechos

    • Materiales de construcción: Block

    • Detalles de la fundación: Slab

    • Características de lavandería: Laundry Room

    • Características de la piscina: In Ground

    • Caras de dirección: South

    • Espacios de garaje: 2

    • Garaje adjunto: Si

    • Garaje: Si

    • Salón: 1754

    • Fuente de agua: Public

    • Tamaño de la parcela: 40 x 110

    • Nombre de subdivisión: LAKE SHORE RANCH PH I

Casas similares

2503 ELM STREET placeholder 2503 ELM STREET
1 días
En Venta
Casa
$349,900
4 camas 2 baños 1,519 sqft
2503 ELM STREET
1206 WINDY RIDGE DRIVE placeholder 1206 WINDY RIDGE DRIVE
1 días
En Venta
Casa
$375,000
3 camas 2 baños 1,446 sqft
1206 WINDY RIDGE DRIVE
505 MURCOTT PLACE placeholder 505 MURCOTT PLACE
1 días
En Venta
Casa
$355,000
4 camas 2 baños 1,903 sqft
505 MURCOTT PLACE
1112 LAKE SHORE RANCH DRIVE placeholder 1112 LAKE SHORE RANCH DRIVE
2 días
En Venta
Casa
$299,900
4 camas 2 baños 1,754 sqft
1112 LAKE SHORE RANCH DRIVE
2501 LENNA AVENUE placeholder 2501 LENNA AVENUE
9 días
En Venta
Casa
$239,900
3 camas 1 baños 906 sqft
2501 LENNA AVENUE
804 WALNUT DRIVE placeholder 804 WALNUT DRIVE
10 días
En Venta
Casa
$359,900
3 camas 2 baños 1,436 sqft
804 WALNUT DRIVE
1116 SAGAMORE DRIVE placeholder 1116 SAGAMORE DRIVE
10 días
En Venta
Casa
$350,000
3 camas 2 baños 1,141 sqft
1116 SAGAMORE DRIVE
2408 CAMDEN OAKS PLACE placeholder 2408 CAMDEN OAKS PLACE
12 días
En Venta
Casa
$339,990
3 camas 2 baños 1,379 sqft
2408 CAMDEN OAKS PLACE

The multiple listing information is provided by the Stellar MLS from a copyrighted compilation of listings. The compilation of listings and each individual listing are ©2025-present Stellar MLS. All Rights Reserved. The information provided is for consumers' personal, noncommercial use and may not be used for any purpose other than to identify prospective properties consumers may be interested in purchasing. All properties are subject to prior sale or withdrawal. All information provided is deemed reliable but is not guaranteed accurate, and should be independently verified. Listing courtesy of: EXP REALTY LLC