Contacto
Cuéntenos sobre sus necesidades

13446 LEAPING WATER WAY

Casa Vendido Recientemente
$388,900

BTC: 4.09368421

ETH: 125.45161290

Fecha de venta: 2025-12-31
353 días
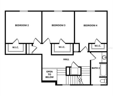
4 camas
2 baños
2,059 sqft
Est. Rango de ventas estimado: $0 - $0
$0

Visión general

Located in Lake County, Astatula offers residents a serene and picturesque setting surrounded by the beauty of nature. The community itself is situated in close proximity to Little Lake Harris, providing easy access to recreational activities such as boating, fishing, and kayaking. With its peaceful atmosphere and convenient location, Tula Parc offers residents a tranquil retreat while still being within reach of the amenities of larger cities. The Parc floor plan offers superior value at an affordable price. At first glance, lush front yard landscaping invites you to step in and see the beautiful floor plan and interior that awaits. This dream home comes stocked with incredible features including all new kitchen appliances, beautiful granite countertops and an open floor plan that will be enjoyed for years to come. Affordability and style combined means the Parc plan offers more than just the dream of homeownership. A covered entryway leads to a stunning family room and adjoining kitchen covered with fresh granite countertops and upper wood cabinets, perfect for sharing meals and memories alike. The Tula offers four large bedrooms each with its own walk-in closet, which is great for families and guests staying over. On one end of the home, the secluded master bedroom highlights privacy and luxury with its own bathroom and massive walk-in closet! Picture yourself owning a brand new, wide-stretched, move-in ready home with added value already included. Picture yourself living and hosting comfortably in the Parc. The Parc floor plan was designed to surpass all expectations with impressive upgrades included at no extra cost to you. This home includes the CompleteHome™ package, a modern take on additional style and convenience. An array of energy-efficient Whirlpool® appliances, including the refrigerator, stunning granite countertops, 36” upper-wood cabinets with crown molding, Moen® faucets and LED flush mount ENERGY STAR kitchen lights are just a few of the remarkable upgrades that complete the kitchen. In addition, programmable thermostats, designer coach lighting, double-pane Low-E vinyl windows and a WiFi-enabled garage door opener give the home features and finishes today’s homebuyers are looking for.

Ubicación

Hechos y características

Tipo:
Residential
Estacionamiento:
Driveway / Garage Door Opener
Año de construcción:
2025
Lote:
0.11 Hectáreas
Calefacción:
Electric / Heat Pump
precio por sq. medidor:
$189
Enfriamiento:
Central Air
HOA:
$95
Más hechos y características
  • Piso

    • Carpet

    • Luxury Vinyl

    Calefacción

    • Electric

    • Heat Pump

    Enfriamiento

    • Central Air

    Accesorios

    • Dishwasher

    • Disposal

    • Electric Water Heater

    • Exhaust Fan

    • Ice Maker

    • Microwave

    • Range

    • Refrigerator

    Otras características interiores

    • Ceiling Fan(s)

    • Kitchen/Family Room Combo

    • Open Floorplan

    • Pest Guard System

    • Primary Bedroom Main Floor

    • Stone Counters

    • Thermostat

    • Walk-In Closet(s)

    • Window Treatments

    Dormitorios y baños

    • Dormitorios: 4

    • Baños: 1

    • Baños completos: 2

  • Estacionamiento

    • Driveway

    • Garage Door Opener

    Propiedad

    • Pisos: Two

    • Características Exteriores: Irrigation System / Lighting / Sidewalk / Sliding Doors

    Lote

    • Lote: 0.11 Hectáreas

    Otra Información de Propiedad

    • Número de Parcela: 292026020000001900

    • Zonificación: MPUD

  • Tipo y estilo

    • Tipo de propiedad: Residential

    • Subtipo de propiedad: Single Family Residence

  • Utilidad

    • Cable Available

    • Electricity Available

    • Electricity Connected

    • Fiber Optics

    • Phone Available

    • Public

    • Street Lights

    • Underground Utilities

    • Water Available

    • Water Connected

  • Otra información financiera

    • HOA: $95

    • Frecuencia HOA: Monthly

    • Importe anual de impuestos: $343

  • Detalles de la fuente

    • MLS ID: TB8329458

    Otros hechos

    • Materiales de construcción: Block / Stucco

    • Detalles de la fundación: Slab

    • Características de lavandería: Electric Dryer Hookup / In Kitchen / Inside / Laundry Room / Washer Hookup

    • Características del patio y el porche: Covered / Front Porch / Patio / Rear Porch

    • Características de la ventana: Blinds / Double Pane Windows / ENERGY STAR Qualified Windows / Low-Emissivity Windows / Window Treatments

    • Caras de dirección: Northwest

    • Estilo arquitectónico: Traditional

    • Espacios de garaje: 2

    • Garaje adjunto: Si

    • Garaje: Si

    • Salón: 2059

    • Fuente de agua: Public

    • Nombre de subdivisión: TULA PARC

Casas similares

5327 INDIAN OCEAN LOOP placeholder 5327 INDIAN OCEAN LOOP
Nuevo
Vendido Recientemente
Casa
$299,000
3 camas 2 baños 1,602 sqft
5327 INDIAN OCEAN LOOP
464 AVILA PLACE placeholder 464 AVILA PLACE
Nuevo
Vendido Recientemente
Casa
$373,411
4 camas 3 baños 2,510 sqft
464 AVILA PLACE
604 AVILA PLACE placeholder 604 AVILA PLACE
Nuevo
Vendido Recientemente
$442,965
5 camas 4 baños 3,446 sqft
604 AVILA PLACE
1100 N VALENCIA AVENUE placeholder 1100 N VALENCIA AVENUE
Nuevo
Vendido Recientemente
Casa
$420,000
3 camas 2 baños 1,918 sqft
1100 N VALENCIA AVENUE
13590 KANSAS AVENUE placeholder 13590 KANSAS AVENUE
Nuevo
Vendido Recientemente
Casa
$300,000
4 camas 2 baños 1,644 sqft
13590 KANSAS AVENUE
14210 COUNTY ROAD 48 placeholder 14210 COUNTY ROAD 48
Nuevo
Vendido Recientemente
Casa
$344,429
4 camas 2 baños 1,618 sqft
14210 COUNTY ROAD 48
485 AVILA PLACE placeholder 485 AVILA PLACE
Nuevo
Vendido Recientemente
Casa
$408,353
4 camas 4 baños 2,945 sqft
485 AVILA PLACE
3892 3892 BANNOCK AVENUE placeholder 3892 3892 BANNOCK AVENUE
Nuevo
Vendido Recientemente
Casa
$484,962
3 camas 2 baños 1,960 sqft
3892 3892 BANNOCK AVENUE

The multiple listing information is provided by the Stellar MLS from a copyrighted compilation of listings. The compilation of listings and each individual listing are ©2026-present Stellar MLS. All Rights Reserved. The information provided is for consumers' personal, noncommercial use and may not be used for any purpose other than to identify prospective properties consumers may be interested in purchasing. All properties are subject to prior sale or withdrawal. All information provided is deemed reliable but is not guaranteed accurate, and should be independently verified. Listing courtesy of: LGI REALTY- FLORIDA, LLC