Contact
Tell us about your needs

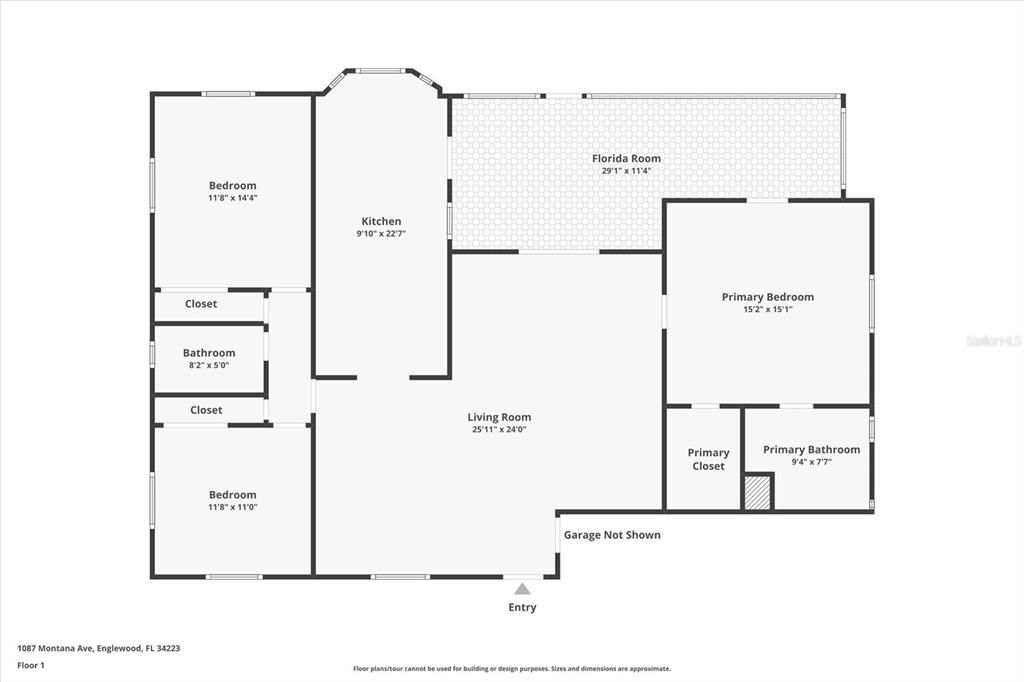
1087 MONTANA AVENUE

House Active With Contract
$378,000

BTC: 5.40000000

ETH: 183.94160584

67 days
3 bds
2 ba
1,665 sqft
Est. Estimated sales range: $0 - $0
$0

Overview

Welcome to Bay Vista Blvd, a community known for its proximity to Lemon Bay Park. Residents here enjoy kayaking, birdwatching, hiking, fishing, and more in the 210-acre park, which is also one of only two dog-friendly parks in Sarasota County, with only $60 a year in annual dues. This deed-restricted community has public water and sewer and offers a peaceful and convenient lifestyle. This home is in a flood zone X, giving peace of mind for a homeowner. Inside this charming home, you'll find a spacious living room, a remodeled kitchen with solid wood cabinets and Quartz countertops, hurricane windows in the kitchen, and a spacious family room. A brand-new A/C unit, all drains have been lined. The split-bedroom floor plan offers privacy, with a large primary suite and two guest bedrooms on opposite sides of the house. Porcelain Tile flooring and Luxury Laminate throughout make for easy maintenance. Step into the Florida Room, complete with all-new Hurricane Slider windows and porcelain flooring. Just a short distance to Lemon Bay Park and minutes to Historic Dearborn Street, Beaches, Shopping, and Restaurants make this home ideally located for those who love outdoor activities and local amenities. This is an excellent opportunity for those looking for a 3-bedroom house ready to move in and start enjoying. Most furnishings will remain.

Location

Facts and features

Type:
Residential
Parking:
Garage Door Opener
Year Built:
1982
Lot:
0.19 Acres
Heating:
Central / Electric
Price/sqft:
$227
Cooling:
Central Air
HOA:
$60
All facts and features
  • Flooring

    • Porcelain Tile

    • Tile

    Heating

    • Central

    • Electric

    Cooling

    • Central Air

    Appliances

    • Dishwasher

    • Disposal

    • Dryer

    • Electric Water Heater

    • Range

    • Range Hood

    • Washer

    Other interior features

    • Ceiling Fan(s)

    • Eating Space In Kitchen

    • Kitchen/Family Room Combo

    • Primary Bedroom Main Floor

    • Solid Surface Counters

    • Solid Wood Cabinets

    • Split Bedroom

    • Stone Counters

    • Thermostat

    • Walk-In Closet(s)

    • Window Treatments

    Bedrooms and bathrooms

    • Bedrooms: 3

    • Full bathrooms: 2

  • Parking

    • Garage Door Opener

    Property

    • Levels: One

    • Exterior Features: Rain Gutters

    Lot

    • Lot: 0.19 Acres

    Other Property Information

    • Parcel Number: 0493010048

    • Zoning: RSF3

  • Type and style

    • Property Type: Residential

    • Property Sub Type: Single Family Residence

  • Utility

    • Cable Connected

    • Electricity Connected

    • Public

    • Sewer Connected

    • Street Lights

    • Water Connected

  • Other financial information

    • HOA: $60

    • HOA Frequency: Annually

    • Annual tax amount: $4,373

  • Source details

    • MLS ID: D6144345

    Other facts

    • Construction Materials: Block / Stucco

    • Foundation Details: Slab

    • Laundry Features: In Garage

    • Window Features: Window Treatments

    • Direction Faces: West

    • Architectural Style: Ranch

    • Garage Spaces: 2

    • Attached Garage: Yes

    • Garage: Yes

    • Living Area: 1665

    • Water Source: Public

    • Lot Size Dimensions: 75 x 111 x 75 x 111

    • Subdivision Name: BAY-VISTA BOULEVARD/ENGLEWOOD

Similar Homes

285 S OXFORD DRIVE placeholder 285 S OXFORD DRIVE
8 days
Active With Contract
House
$369,900
2 bds 1 ba 1,020 sqft
285 S OXFORD DRIVE
209 WOODLAND DRIVE placeholder 209 WOODLAND DRIVE
11 days
Active With Contract
House
$375,000
3 bds 2 ba 2,147 sqft
209 WOODLAND DRIVE
16 GOLF VIEW DRIVE placeholder 16 GOLF VIEW DRIVE
15 days
Active With Contract
House
$399,900
3 bds 2 ba 2,276 sqft
16 GOLF VIEW DRIVE
29031 CORAL HARBOUR DRIVE placeholder 29031 CORAL HARBOUR DRIVE
15 days
Active With Contract
House
$454,025
2 bds 2 ba 1,448 sqft
29031 CORAL HARBOUR DRIVE
1035 OLEANDER STREET placeholder 1035 OLEANDER STREET
15 days
Active With Contract
House
$344,500
2 bds 2 ba 1,553 sqft
1035 OLEANDER STREET
11120 MCDERMOTT COURT placeholder 11120 MCDERMOTT COURT
19 days
Active With Contract
House
$405,000
2 bds 2 ba 1,632 sqft
11120 MCDERMOTT COURT
29027 CORAL HARBOUR DRIVE placeholder 29027 CORAL HARBOUR DRIVE
20 days
Active With Contract
House
$458,010
2 bds 2 ba 1,448 sqft
29027 CORAL HARBOUR DRIVE
18026 TOPIARY PARK PLACE placeholder 18026 TOPIARY PARK PLACE
31 days
Active With Contract
House
$412,000
2 bds 2 ba 1,524 sqft
18026 TOPIARY PARK PLACE

The multiple listing information is provided by the Stellar MLS from a copyrighted compilation of listings. The compilation of listings and each individual listing are ©2026-present Stellar MLS. All Rights Reserved. The information provided is for consumers' personal, noncommercial use and may not be used for any purpose other than to identify prospective properties consumers may be interested in purchasing. All properties are subject to prior sale or withdrawal. All information provided is deemed reliable but is not guaranteed accurate, and should be independently verified. Listing courtesy of: MICHAEL SAUNDERS & COMPANY