Contact
Tell us about your needs

15913 SE 101ST CIRCLE

House For Sale
$272,990

BTC: 3.14323546

ETH: 136.49500000

-$8K (2025/12/16)
52 days
4 bds
2 ba
1,498 sqft
Est. Estimated sales range: $0 - $0
$0

Overview

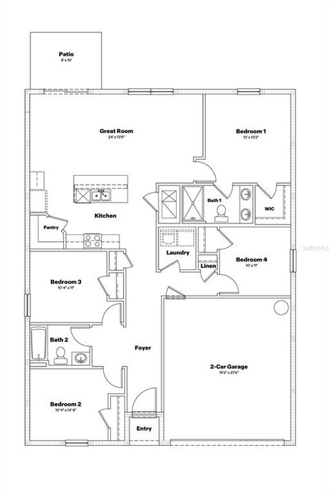
One or more photo(s) has been virtually staged. Under Construction. This all concrete block constructed, one-story home optimizes living space, featuring an open-concept kitchen overlooking the great room and outdoor patio. The well-appointed kitchen comes with all stainless-steel appliances, including a built-in dishwasher, range, and microwave. Bedroom 1 is located at the rear of the home for privacy and features an ensuite bathroom and walk-in closet near the bathroom. Two additional bedrooms at the front of the home are separated by the second bathroom. The third bedroom is located across the hallway near the laundry room. Pictures, photographs, colors, features, and sizes are for illustration purposes only and will vary from the homes as built. Home and community information including pricing, included features, terms, availability and amenities are subject to change and prior sale at any time without notice or obligation. CRC057592.

Location

Facts and features

Type:
Residential
Parking:
No Data
Year Built:
2025
Lot:
0.15 Acres
Heating:
Electric / Heat Pump
Price/sqft:
$182
Cooling:
Central Air
HOA:
$45
All facts and features
  • Flooring

    • Carpet

    • Luxury Vinyl

    Heating

    • Electric

    • Heat Pump

    Cooling

    • Central Air

    Appliances

    • Dishwasher

    • Microwave

    • Range

    Other interior features

    • Open Floorplan

    Bedrooms and bathrooms

    • Bedrooms: 4

    • Full bathrooms: 2

  • Property

    • Levels: One

    • Exterior Features: Irrigation System

    Lot

    • Lot: 0.15 Acres

    Other Property Information

    • Parcel Number: 4820002159

    • Zoning: PUD

  • Type and style

    • Property Type: Residential

    • Property Sub Type: Single Family Residence

  • Utility

    • Other

  • Other financial information

    • HOA: $45

    • HOA Frequency: Monthly

  • Source details

    • MLS ID: OM712496

    Other facts

    • Construction Materials: Block

    • Foundation Details: Slab

    • Laundry Features: Laundry Room

    • Direction Faces: West

    • Garage Spaces: 2

    • Attached Garage: Yes

    • Garage: Yes

    • Living Area: 1498

    • Water Source: Public

    • Subdivision Name: SUNSET HILLS

Similar Homes

13709 SE 86TH TERRACE placeholder 13709 SE 86TH TERRACE
New
For Sale
House
$299,900
2 bds 2 ba 1,537 sqft
13709 SE 86TH TERRACE
8931 SE 156TH STREET placeholder 8931 SE 156TH STREET
2 days
For Sale
House
$299,900
4 bds 2 ba 1,642 sqft
8931 SE 156TH STREET
17766 SE 91ST POPLAR TERRACE placeholder 17766 SE 91ST POPLAR TERRACE
2 days
For Sale
House
$319,500
3 bds 2 ba 1,392 sqft
17766 SE 91ST POPLAR TERRACE
8516 SE 137TH LOOP placeholder 8516 SE 137TH LOOP
2 days
For Sale
House
$265,000
2 bds 2 ba 1,296 sqft
8516 SE 137TH LOOP
15649 SE 88 AVENUE placeholder 15649 SE 88 AVENUE
3 days
For Sale
House
$338,050
3 bds 2 ba 1,511 sqft
15649 SE 88 AVENUE
9393 SE 158 PLACE, Other City - In The State Of Florida FL 34491 placeholder 9393 SE 158 PLACE, Other City - In The State Of Florida FL 34491
3 days
For Sale
House
$349,000
4 bds 3 ba 1,990 sqft
9393 SE 158 PLACE, Other City - In The State Of Florida FL 34491
8265 SE 164TH PLACE placeholder 8265 SE 164TH PLACE
3 days
For Sale
House
$255,000
3 bds 2 ba 1,824 sqft
8265 SE 164TH PLACE
3468 ROANOKE STREET placeholder 3468 ROANOKE STREET
3 days
For Sale
House
$265,000
2 bds 2 ba 1,182 sqft
3468 ROANOKE STREET

The multiple listing information is provided by the Stellar MLS from a copyrighted compilation of listings. The compilation of listings and each individual listing are ©2025-present Stellar MLS. All Rights Reserved. The information provided is for consumers' personal, noncommercial use and may not be used for any purpose other than to identify prospective properties consumers may be interested in purchasing. All properties are subject to prior sale or withdrawal. All information provided is deemed reliable but is not guaranteed accurate, and should be independently verified. Listing courtesy of: DR HORTON REALTY OF WEST CENTRAL FLORIDA