Contact
Tell us about your needs

3367 ZORATOA AVENUE

House For Sale
$430,000

BTC: 4.95106505

ETH: 215.00000000

53 days
4 bds
3 ba
2,123 sqft
Est. Estimated sales range: $0 - $0
$0

Overview

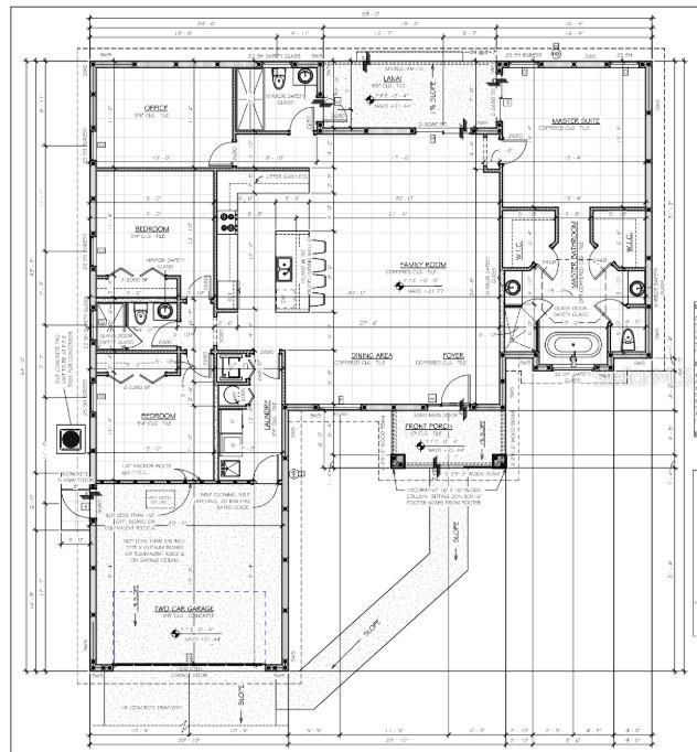
Under Construction. Your dream home is in the making! This brand new 4 bedroom, 3 bathroom home is currently under construction with an expected completion date of March 2026. Designed for modern living, it offers an open-concept floor plan, a spacious family room, and a chef-inspired kitchen with a large center island, perfect for entertaining and everyday life. The thoughtful split-bedroom layout provides privacy, with the primary suite featuring a luxurious ensuite bathroom complete with dual vanities, a soaking tub, a walk-in shower, and an oversized walk-in closet. The remaining three bedrooms are generously sized and ideal for family, guests, or a home office. Step outside to your covered lanai, perfect for relaxing or dining al fresco while enjoying Florida’s beautiful weather. Buy early and enjoy the opportunity to customize your finishes and upgrades—from flooring and cabinetry to countertops and paint colors—to truly make this home your own.

Location

Facts and features

Type:
Residential
Parking:
No Data
Year Built:
2026
Lot:
0.25 Acres
Heating:
Central
Price/sqft:
$203
Cooling:
Central Air
HOA:
No Data
All facts and features
  • Flooring

    • Vinyl

    Heating

    • Central

    Cooling

    • Central Air

    Appliances

    • Convection Oven

    • Dishwasher

    • Microwave

    • Refrigerator

    Other interior features

    • Ceiling Fan(s)

    • Open Floorplan

    Bedrooms and bathrooms

    • Bedrooms: 4

    • Full bathrooms: 3

  • Property

    • Levels: One

    • Exterior Features: Lighting / Other

    Lot

    • Lot: 0.25 Acres

    Other Property Information

    • Parcel Number: 0980041610

    • Zoning: RSF2

  • Type and style

    • Property Type: Residential

    • Property Sub Type: Single Family Residence

  • Utility

    • Electricity Connected

    • Public

    • Water Connected

  • Other financial information

    • Annual tax amount: $600

  • Source details

    • MLS ID: TB8441542

    Other facts

    • Construction Materials: Stucco

    • Foundation Details: Slab

    • Laundry Features: Electric Dryer Hookup / Washer Hookup

    • Direction Faces: North

    • Garage Spaces: 2

    • Garage: Yes

    • Living Area: 2123

    • Water Source: Well

    • Subdivision Name: PORT CHARLOTTE SUB 09

Similar Homes

5349 JESSAMINE AVENUE placeholder 5349 JESSAMINE AVENUE
1 days
For Sale
House
$414,000
4 bds 2 ba 1,650 sqft
5349 JESSAMINE AVENUE
2509 WYOLA AVENUE placeholder 2509 WYOLA AVENUE
1 days
For Sale
House
$350,000
4 bds 2 ba 1,800 sqft
2509 WYOLA AVENUE
3930 SESAME STREET placeholder 3930 SESAME STREET
2 days
For Sale
House
$370,000
3 bds 2 ba 1,628 sqft
3930 SESAME STREET
TBD FLAGAMI LANE placeholder TBD FLAGAMI LANE
4 days
For Sale
House
$339,900
4 bds 2 ba 2,052 sqft
TBD FLAGAMI LANE
TBD SHALIMAR TERRACE placeholder TBD SHALIMAR TERRACE
4 days
For Sale
House
$349,900
4 bds 2 ba 2,052 sqft
TBD SHALIMAR TERRACE
2172 PENGUIN LANE placeholder 2172 PENGUIN LANE
4 days
For Sale
House
$364,900
4 bds 2 ba 1,868 sqft
2172 PENGUIN LANE
2391 YANKEE TERRACE placeholder 2391 YANKEE TERRACE
4 days
For Sale
House
$359,900
3 bds 2 ba 1,637 sqft
2391 YANKEE TERRACE
12978 BLACKBERRY COURT UNIT 48-101 placeholder 12978 BLACKBERRY COURT UNIT 48-101
5 days
For Sale
Condo/Co-op
$423,597
3 bds 2 ba 1,741 sqft
12978 BLACKBERRY COURT UNIT 48-101

The multiple listing information is provided by the Stellar MLS from a copyrighted compilation of listings. The compilation of listings and each individual listing are ©2025-present Stellar MLS. All Rights Reserved. The information provided is for consumers' personal, noncommercial use and may not be used for any purpose other than to identify prospective properties consumers may be interested in purchasing. All properties are subject to prior sale or withdrawal. All information provided is deemed reliable but is not guaranteed accurate, and should be independently verified. Listing courtesy of: BAY TO BAY BROKERAGE