Недвижимость
Ознакомьтесь с нашими объявлениями
Контакты
Расскажите нам о своих потребностях

1275 CLEVELAND STREET UNIT A

На продажу
$64,800

BTC: 0.96189572

ETH: 33.23076923

-$18K (2026/01/03)
133 Дней
0 room(s)
4,990 кв.фт.
Est. Предполагаемый диапазон продаж: $0 - $0
$0

Обзор

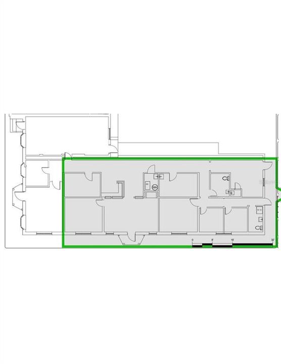
Limited-time lease incentive: sign a 3-year lease and your January and February 2026 rent will be $100 per month. Position your business in the heart of Downtown Clearwater at a highly visible corner location in the Downtown Clearwater Business District—just steps from the $84M “The Sound” waterfront redevelopment featuring a 9,000-seat amphitheater, splash pad, and expanded public amenities. This approximately 2,700 SF, fully remodeled standalone office building (renovation completed June 2023) is well-suited for medical, professional, or general business use, with Downtown “D” zoning that supports a wide range of uses including medical clinic, professional office, business services, educational facilities, entertainment, museum, place of worship, and more. The space offers a functional layout with a large reception/lobby and waiting area, plus seven multi-purpose rooms ideal for private offices, exam rooms, consultation rooms, or conference space. Additional highlights include two restrooms (one ADA-compliant), multiple sink and cabinetry stations, modern finishes, and a flexible configuration that can accommodate a variety of operational needs. A washer/dryer and full-size refrigerator are included, and one room can easily serve as a break room. Parking is a major advantage for downtown: a private on-site lot with approximately 10 spaces, additional parking available upon request, and a shared handicap space. The building also includes a main entrance from the parking lot plus two additional side entrances for staff convenience. Lease structure is triple net (NNN). Minimum lease term is three years (negotiable). Minutes to Clearwater Beach, The Sound, restaurants, shopping, and the area’s expanding business corridor. Larger space available upon request. Tenant pays its pro-rata share of real estate taxes and property insurance (currently approximately half of the building).

Локация

Факты и особенности

Тип:
Commercial Lease
Парковка:
13 to 18 Spaces / 19 to 30 Spaces / Ground Level
Год постройки:
1960
Лот:
0.38 Акров
Отопление:
Central Building / Electric
Цена/кв.фут:
$13
Охлаждение:
Central Air / Mini-Split Unit(s)
HOA:
Нет данных
Больше фактов и особенностей
  • Напольное покрытие

    • Luxury Vinyl

    • Porcelain Tile

    Отопление

    • Central Building

    • Electric

    Охлаждение

    • Central Air

    • Mini-Split Unit(s)

    Бытовая техника

    • Dryer

    • Washer

  • Парковка

    • 13 to 18 Spaces

    • 19 to 30 Spaces

    • Ground Level

    Имущество

    • Этажи: One

    Лот

    • Лот: 0.38 Акров

    Другая Информация о Недвижимости

    • Номер Земельного Участка: 152915385740020010

    • Зонирование: DOWNTOWN

  • Тип и стиль

    • Тип недвижимости: Commercial Lease

    • Подтип недвижимости: Business

  • Общественное благосостояние

    • BB/HS Internet Capable

    • Electricity Available

    • Phone Available

    • Public

    • Water Connected

  • Другая финансовая информация

    • Годовая сумма налога: $10,151

  • Детали источника

    • MLS ID: TB8421250

    Другие факты

    • Строительные материалы: Block / Brick / Stucco

    • Детали фундамента: Slab

    • Особенности лота: Corner Lot / Landscaped / Neighbourhood / Street Lights

    • Особенности окна: Aluminum Frames

    • Направленные лица: West

    • Жилая площадь: 4990

    • Источник воды: Public

    • Размеры участка: 138 x 120

    • Название подразделения: HIBISCUS GARDENS

Похожие дома

2001 GREENBRIAR BOULEVARD UNIT 13 placeholder 2001 GREENBRIAR BOULEVARD UNIT 13
3 Дней
На продажу
Квартира
$69,900
1 спален 1 ванн 605 кв.фт.
2001 GREENBRIAR BOULEVARD UNIT 13
2001 GREENBRIAR BOULEVARD UNIT 7 placeholder 2001 GREENBRIAR BOULEVARD UNIT 7
19 Дней
На продажу
Квартира
$60,000
1 спален 1 ванн 605 кв.фт.
2001 GREENBRIAR BOULEVARD UNIT 7
601 CLEVELAND STREET UNIT 140 placeholder 601 CLEVELAND STREET UNIT 140
43 Дней
На продажу
Коммерческий
$65,000
0 room(s) 1,000 кв.фт.
601 CLEVELAND STREET UNIT 140
980 7TH STREET NW UNIT 53 placeholder 980 7TH STREET NW UNIT 53
43 Дней
На продажу
Дом
$80,000
2 спален 1 ванн 726 кв.фт.
980 7TH STREET NW UNIT 53
211 N MISSOURI AVENUE placeholder 211 N MISSOURI AVENUE
75 Дней
На продажу
$54,000
0 room(s) 5,178 кв.фт.
211 N MISSOURI AVENUE
1105 S FORT HARRISON AVENUE placeholder 1105 S FORT HARRISON AVENUE
159 Дней
На продажу
$64,680
0 room(s)
1105 S FORT HARRISON AVENUE
GRANT STREET placeholder GRANT STREET
208 Дней
На продажу
Участки / Земля
$75,000
0 room(s)
GRANT STREET

The multiple listing information is provided by the Stellar MLS from a copyrighted compilation of listings. The compilation of listings and each individual listing are ©2026-present Stellar MLS. All Rights Reserved. The information provided is for consumers' personal, noncommercial use and may not be used for any purpose other than to identify prospective properties consumers may be interested in purchasing. All properties are subject to prior sale or withdrawal. All information provided is deemed reliable but is not guaranteed accurate, and should be independently verified. Listing courtesy of: TAMPA BAY HOME REALTY