Недвижимость
Ознакомьтесь с нашими объявлениями
Контакты
Расскажите нам о своих потребностях

11403 VERSAILLES LANE UNIT E

Квартира На продажу
$149,000

BTC: 1.71560161

ETH: 74.50000000

47 Дней
2 спален
2 ванн
1,171 кв.фт.
Est. Предполагаемый диапазон продаж: $0 - $0
$0

Обзор

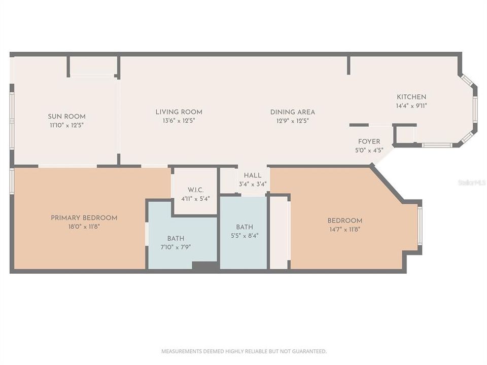
Welcome home to this beautifully maintained 2-bedroom, 2-bath, 1-car garage condo in the sought-after 55+ community of Timber Oaks! As you step inside, you’re greeted by a freshly painted interior and tile plank flooring in the living area and vinyl plant in both bedrooms, providing a clean, modern feel. The well-lit eat-in kitchen features real oak cabinets, granite countertops, a bay window, closet pantry, and convenient pull-out drawers plus a lazy Susan beneath the sink. The primary bedroom offers a walk-in closet, full bath, and sliding doors leading to the enclosed sun porch, a perfect place to relax with your morning coffee. The second bedroom features a charming bay window that adds natural light and character. Step out your back door and you’re just a few steps from the Village pool, the perfect spot to unwind and enjoy the Florida sunshine. Timber Oaks offers a vibrant lifestyle with amenities including a heated lakefront pool and spa, fitness center, card and billiard rooms, library, and courts for tennis, shuffleboard, and bocce. The HOA fee covers exterior maintenance (including roof), lawn care, pest control, trash, and basic cable. Conveniently located near shopping, dining, and Gulf beaches—just move in and start living your best Florida life!

Локация

Факты и особенности

Тип:
Residential
Парковка:
Нет данных
Год постройки:
1982
Лот:
5.66 Акров
Отопление:
Electric
Цена/кв.фут:
$127
Охлаждение:
Central Air
HOA:
$55
Больше фактов и особенностей
  • Напольное покрытие

    • Laminate

    • Tile

    Отопление

    • Electric

    Охлаждение

    • Central Air

    Бытовая техника

    • Dishwasher

    • Electric Water Heater

    • Microwave

    • Range

    Другие особенности интерьера

    • Ceiling Fan(s)

    • Eating Space In Kitchen

    • Living Room/Dining Room Combo

    Спальни и ванные комнаты

    • Спальни: 2

    • Полные ванные комнаты: 2

  • Имущество

    • Этажи: One

    • Особенности Экстерьера: Lighting / Sidewalk

    Лот

    • Лот: 5.66 Акров

    Другая Информация о Недвижимости

    • Номер Земельного Участка: 162511018.A010.0000E.0

    • Зонирование: PUD

  • Тип и стиль

    • Тип недвижимости: Residential

    • Подтип недвижимости: Condominium

  • Общественное благосостояние

    • BB/HS Internet Available

    • Cable Available

    • Electricity Connected

    • Sewer Connected

  • Другая финансовая информация

    • HOA: $55

    • Частота HOA: Monthly

    • Годовая сумма налога: $873

  • Детали источника

    • MLS ID: W7880404

    Другие факты

    • Строительные материалы: Block / Concrete / Stucco

    • Детали фундамента: Slab

    • Особенности прачечной: Inside / Laundry Closet

    • Направленные лица: South

    • Мест в гараже: 1

    • Гараж: Да

    • Жилая площадь: 1171

    • Источник воды: Public

    • Название подразделения: CHATEAU VILLAGE CONDO 01

Похожие дома

10206 WILLOW DRIVE placeholder 10206 WILLOW DRIVE
Новое
На продажу
Дом
$185,000
2 спален 2 ванн 1,240 кв.фт.
10206 WILLOW DRIVE
9809 FRED STREET placeholder 9809 FRED STREET
2 Дней
На продажу
Дом
$135,000
2 спален 1 ванн 672 кв.фт.
9809 FRED STREET
11435 STANSBERRY DRIVE placeholder 11435 STANSBERRY DRIVE
2 Дней
На продажу
Дом
$185,000
2 спален 2 ванн 972 кв.фт.
11435 STANSBERRY DRIVE
9732 WARRICK STREET placeholder 9732 WARRICK STREET
2 Дней
На продажу
Дом
$160,000
3 спален 2 ванн 1,006 кв.фт.
9732 WARRICK STREET
7931 LOTUS DRIVE placeholder 7931 LOTUS DRIVE
5 Дней
На продажу
Дом
$189,900
2 спален 2 ванн 1,096 кв.фт.
7931 LOTUS DRIVE
6205 WESTPORT DRIVE placeholder 6205 WESTPORT DRIVE
5 Дней
На продажу
Дом
$125,000
2 спален 2 ванн 1,114 кв.фт.
6205 WESTPORT DRIVE
7321 GRAND PINE DRIVE placeholder 7321 GRAND PINE DRIVE
12 Дней
На продажу
$169,900
3 спален 2 ванн 1,394 кв.фт.
7321 GRAND PINE DRIVE
12404 EAGLESWOOD DRIVE UNIT D placeholder 12404 EAGLESWOOD DRIVE UNIT D
16 Дней
На продажу
Квартира
$175,000
2 спален 2 ванн 1,144 кв.фт.
12404 EAGLESWOOD DRIVE UNIT D

The multiple listing information is provided by the Stellar MLS from a copyrighted compilation of listings. The compilation of listings and each individual listing are ©2025-present Stellar MLS. All Rights Reserved. The information provided is for consumers' personal, noncommercial use and may not be used for any purpose other than to identify prospective properties consumers may be interested in purchasing. All properties are subject to prior sale or withdrawal. All information provided is deemed reliable but is not guaranteed accurate, and should be independently verified. Listing courtesy of: NEXTHOME LUXURY REAL ESTATE