Недвижимость
Ознакомьтесь с нашими объявлениями
Контакты
Расскажите нам о своих потребностях

36750 US HIGHWAY 19 N UNIT 5-202

Квартира На продажу
$550,000

BTC: 6.04395604

ETH: 275.00000000

1 Дней
3 спален
2 ванн
1,660 кв.фт.
Est. Предполагаемый диапазон продаж: $0 - $0
$0

Обзор

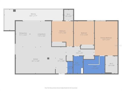
One or more photo(s) has been virtually staged. Welcome to this beautifully updated three-bedroom, two-bathroom condo located in the highly sought-after, gated Innisbrook community of Palm Harbor. This spacious end-unit residence sits on the second floor and offers peaceful views, a welcoming foyer entry, and an open floor plan designed for both comfort and style. The gorgeous open kitchen is a true centerpiece, featuring stunning granite countertops, stainless steel appliances, abundant cabinetry - including glass-front display cabinets - plus a wine rack and beverage fridge. A large island with elegant pendant lighting provides the perfect spot for prepping, dining, or entertaining. Crown molding flows throughout the living areas, where the living room - dining room combo seamlessly opens to the kitchen. Large sliding doors fill the space with natural light, complemented by plantation shutters, updated ceiling fans, and beautiful French-patterned travertine flooring. The spacious primary bedroom offers a large walk-in closet with custom organizers and a private en-suite bathroom showcasing a dual-sink stone-top vanity, generous storage, and a luxurious travertine stone shower. The updated second bathroom features a stone-top vanity and a glass-enclosed shower with dual showerheads. The third bedroom includes its own walk-in closet and sliding-door access to the expansive balcony. An in-unit washer and dryer adds everyday convenience. Enjoy Florida living year-round on the oversized covered patio and balcony, offering multiple seating areas perfect for relaxing or entertaining. Innisbrook’s impressive amenities include multiple sparkling pools, world-famous golf courses that host the PGA Valspar Championship every year, four on-site restaurants, three bars, tennis and pickleball courts, Salamander Spa, a fitness center, and more. Monthly fees cover grounds maintenance, 24-hour guard service, sewer, trash, and additional conveniences. Perfectly situated near shopping, dining, award-winning Gulf beaches, and offering a quick commute to neighboring cities, this condo delivers luxury, lifestyle, and unbeatable community living. Schedule your tour today!

Локация

Факты и особенности

Тип:
Residential
Парковка:
Нет данных
Год постройки:
1971
Лот:
Нет данных
Отопление:
Central
Цена/кв.фут:
$331
Охлаждение:
Central Air
HOA:
Нет данных
Больше фактов и особенностей
  • Напольное покрытие

    • Travertine

    Отопление

    • Central

    Охлаждение

    • Central Air

    Бытовая техника

    • Dishwasher

    • Dryer

    • Microwave

    • Range

    • Refrigerator

    • Washer

    • Wine Refrigerator

    Другие особенности интерьера

    • Built-in Features

    • Ceiling Fan(s)

    • Crown Molding

    • Eating Space In Kitchen

    • High Ceilings

    • Living Room/Dining Room Combo

    • Open Floorplan

    • Stone Counters

    • Thermostat

    • Walk-In Closet(s)

    • Window Treatments

    Спальни и ванные комнаты

    • Спальни: 3

    • Полные ванные комнаты: 2

  • Имущество

    • Этажи: One

    • Особенности Экстерьера: Balcony / Lighting / Rain Gutters / Sliding Doors

    Другая Информация о Недвижимости

    • Номер Земельного Участка: 252715430850002020

  • Тип и стиль

    • Тип недвижимости: Residential

    • Подтип недвижимости: Condominium

  • Общественное благосостояние

    • Cable Connected

    • Electricity Connected

    • Water Connected

  • Другая финансовая информация

    • Годовая сумма налога: $7,864

  • Детали источника

    • MLS ID: TB8454984

    Другие факты

    • Строительные материалы: Block

    • Детали фундамента: Slab

    • Особенности прачечной: Inside / Laundry Closet

    • Особенности окна: Shutters / Window Treatments

    • Направленные лица: North

    • Жилая площадь: 1660

    • Источник воды: Public

    • Название подразделения: INNISBROOK

Похожие дома

1461 RIDGE TERRACE placeholder 1461 RIDGE TERRACE
Новое
На продажу
Таунхаус
$414,727
3 спален 2 ванн 1,801 кв.фт.
1461 RIDGE TERRACE
1444 RIDGE TERRACE placeholder 1444 RIDGE TERRACE
Новое
На продажу
Таунхаус
$469,747
3 спален 2 ванн 1,990 кв.фт.
1444 RIDGE TERRACE
2217 TUSCANY TRACE UNIT 10 placeholder 2217 TUSCANY TRACE UNIT 10
1 Дней
На продажу
Квартира
$425,000
4 спален 3 ванн 1,670 кв.фт.
2217 TUSCANY TRACE UNIT 10
1170 FALCON RIDGE LANE placeholder 1170 FALCON RIDGE LANE
1 Дней
На продажу
Дом
$619,900
3 спален 2 ванн 1,486 кв.фт.
1170 FALCON RIDGE LANE
1708 RICHARD ERVIN PARKWAY placeholder 1708 RICHARD ERVIN PARKWAY
3 Дней
На продажу
Дом
$575,000
4 спален 4 ванн 3,453 кв.фт.
1708 RICHARD ERVIN PARKWAY
1021 15TH STREET placeholder 1021 15TH STREET
4 Дней
На продажу
Дом
$619,950
4 спален 3 ванн 2,086 кв.фт.
1021 15TH STREET
TENNESSEE AVENUE placeholder TENNESSEE AVENUE
6 Дней
На продажу
Участки / Земля
$579,000
0 room(s)
TENNESSEE AVENUE
1436 GOPHER LOOP placeholder 1436 GOPHER LOOP
7 Дней
На продажу
Дом
$674,900
4 спален 3 ванн 2,422 кв.фт.
1436 GOPHER LOOP

The multiple listing information is provided by the Stellar MLS from a copyrighted compilation of listings. The compilation of listings and each individual listing are ©2025-present Stellar MLS. All Rights Reserved. The information provided is for consumers' personal, noncommercial use and may not be used for any purpose other than to identify prospective properties consumers may be interested in purchasing. All properties are subject to prior sale or withdrawal. All information provided is deemed reliable but is not guaranteed accurate, and should be independently verified. Listing courtesy of: EXP REALTY LLC