Недвижимость
Ознакомьтесь с нашими объявлениями
Контакты
Расскажите нам о своих потребностях

400 Flagler, West Palm Beach, FL 33401

Квартира На продажу
$3,795,000

BTC: 43.94904459

ETH: 1,296.99248120

22 Дней
Набережная
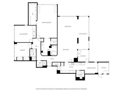
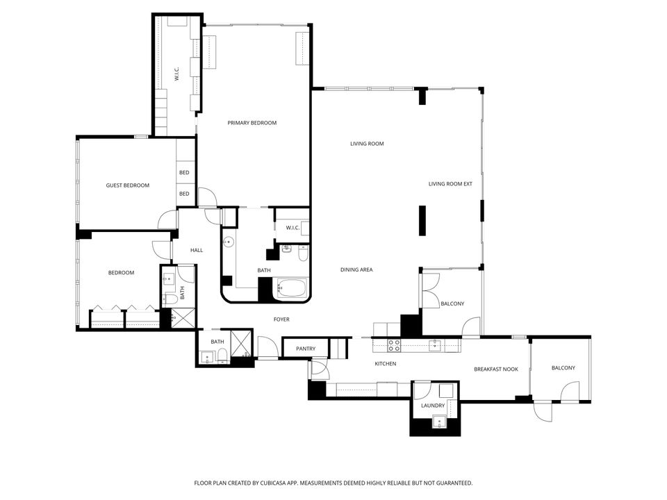
3 спален
3 ванн
2,647 кв.фт.
Est. Предполагаемый диапазон продаж: $0 - $0
$0

Обзор

This Waterfront 3 Bedroom/ 3 Bath extra large unit boasts breathtaking Ocean, Intracoastal, Marina, and City views from the 22nd floor. Extra Large Primary Bedroom & Primary Bedroom Closet. Full-service amenities include a concierge, valet, maintenance department, manned security, a heated pool, a state-of-the-art gym, lighted tennis and pickleball courts, and a dog park. The location is unbeatable, with easy access to all that West Palm Beach and Palm Beach have to offer, including the nearby Brightline Express Trains serving Miami to West Palm Beach and Orlando. For Additional Marina Information call Palm Harbor Marina. TWO COVERED PARKING SPACES. Spectacular views of the Ocean, Intracoastal, and Palm Harbor Marina. All size to be confirmed by buyer.

Локация

Факты и особенности

Тип:
Residential
Парковка:
2+ Spaces / Assigned / Covered / Garage - Building
Год постройки:
1981
Лот:
Нет данных
Отопление:
Central / Central Individual / Electric
Цена/кв.фут:
$1,434
Охлаждение:
Central / Central Individual / Electric
HOA:
Нет данных
Больше фактов и особенностей
  • Напольное покрытие

    • Carpet

    • Ceramic Tile

    • Wood Floor

    Отопление

    • Central

    • Central Individual

    • Electric

    Охлаждение

    • Central

    • Central Individual

    • Electric

    Бытовая техника

    • Dishwasher

    • Disposal

    • Dryer

    • Fire Alarm

    • Freezer

    • Ice Maker

    • Microwave

    • Range - Electric

    • Refrigerator

    • Smoke Detector

    • Washer

    • Water Heater - Elec

    Другие особенности интерьера

    • Closet Cabinets

    • Pantry

    • Walk-in Closet

    Спальни и ванные комнаты

    • Спальни: 3

    • Полные ванные комнаты: 3

  • Парковка

    • 2+ Spaces

    • Assigned

    • Covered

    • Garage - Building

    Имущество

    • Особенности Экстерьера: Tennis Court

    Другая Информация о Недвижимости

    • Номер Земельного Участка: 74434322170002201

    • Зонирование: CC2(ci

  • Тип и стиль

    • Тип недвижимости: Residential

    • Подтип недвижимости: Condominium

  • Общественное благосостояние

    • Cable

    • Electric

    • Public Sewer

    • Public Water

  • Другая финансовая информация

    • Годовая сумма налога: $53,221

  • Детали источника

    • MLS ID: RX-11145391

    Другие факты

    • Строительные материалы: CBS / Concrete

    • Особенности прачечной: Washer and Dryer

    • Особенности двора и крыльца: Balcony

    • Направленные лица: I-95 East on Okeechobee Blvd to Flagler. North on Flagler, 1st building on the right ~ 1/2 mile

    • Берег: Да

    • Мест в гараже: 2

    • Гараж: Да

    • Жилая площадь: 2647

    • Название подразделения: WATERVIEW TOWERS CONDO

Похожие дома

400 Flagler, West Palm Beach, FL 33401 placeholder 400 Flagler, West Palm Beach, FL 33401
3 Дней
На продажу
Квартира
$3,495,000
3 спален 2 ванн 2,251 кв.фт.
400 Flagler, West Palm Beach, FL 33401
1016 Clare, West Palm Beach, FL 33401 placeholder 1016 Clare, West Palm Beach, FL 33401
-$3M (2025/12/20)
На продажу
Коммерческий
$3,500,000
0 room(s) 10,014 кв.фт.
1016 Clare, West Palm Beach, FL 33401
1016 Clare, West Palm Beach, FL 33401 placeholder 1016 Clare, West Palm Beach, FL 33401
5 Дней
На продажу
Коммерческий
$3,500,000
0 room(s) 10,026 кв.фт.
1016 Clare, West Palm Beach, FL 33401
383 31st, West Palm Beach, FL 33407 placeholder 383 31st, West Palm Beach, FL 33407
7 Дней
На продажу
Дом
$3,950,000
4 спален 5 ванн 4,400 кв.фт.
383 31st, West Palm Beach, FL 33407
244 31st, West Palm Beach, FL 33407 placeholder 244 31st, West Palm Beach, FL 33407
7 Дней
На продажу
Дом
$3,695,000
4 спален 5 ванн 4,169 кв.фт.
244 31st, West Palm Beach, FL 33407
369 Lake, Palm Beach, FL 33480 placeholder 369 Lake, Palm Beach, FL 33480
7 Дней
На продажу
Квартира
$3,350,000
2 спален 2 ванн 2,330 кв.фт.
369 Lake, Palm Beach, FL 33480
525 S Flagler, West Palm Beach, FL 33401 placeholder 525 S Flagler, West Palm Beach, FL 33401
9 Дней
На продажу
Квартира
$3,800,000
3 спален 2 ванн 2,091 кв.фт.
525 S Flagler, West Palm Beach, FL 33401
100 Worth, Palm Beach, FL 33480 placeholder 100 Worth, Palm Beach, FL 33480
9 Дней
На продажу
Квартира
$4,300,000
2 спален 2 ванн 1,624 кв.фт.
100 Worth, Palm Beach, FL 33480

The multiple listing information is provided by the Beaches MLS from a copyrighted compilation of listings. The compilation of listings and each individual listing are ©2025-present Beaches MLS. All Rights Reserved. The information provided is for consumers' personal, noncommercial use and may not be used for any purpose other than to identify prospective properties consumers may be interested in purchasing. All properties are subject to prior sale or withdrawal. All information provided is deemed reliable but is not guaranteed accurate, and should be independently verified. Listing courtesy of: The Corcoran Group