Недвижимость
Ознакомьтесь с нашими объявлениями
Контакты
Расскажите нам о своих потребностях

67 OCEAN PALM VILLA S UNIT 67

Квартира На продажу
$299,900

BTC: 9.99666667

ETH: 149.95000000

9 Дней
2 спален
2 ванн
1,184 кв.фт.
Est. Предполагаемый диапазон продаж: $0 - $0
$0

Обзор

If you've been dreaming of the ultimate Florida getaway, this is the second home that will steal your heart. Heck, it's perfect as a primary residence, as well! Imagine waking up each morning to shimmering direct river views, enjoying your coffee from your back patio looking out over the expansive lawn, or enjoying a glass of wine over the most exquisite sunsets! Take a nice walk or hop on your golf cart for a two-minute ride to dinner at the beach — all for under $300,000. This home isn't just updated... it’s completely transformed. Every inch has been professionally redesigned: new windows, gourmet enlarged kitchen, gorgeous baths, upgraded flooring, baseboards, fans, fixtures—right down to the epoxied garage floor. The smartly modified floor plan gives both bedrooms private access to the upstairs bath, creating comfort and convenience rarely found at this price point. The attached one-car garage offers secure storage, making this the ideal lock-and-leave retreat. Flagler Beach is the epitome of Florida charm - an authentic small beach town with no chain restaurants, golf carts everywhere, and a personality all its own. Whether you prefer ice cream shoppes, burger joints and burrito shacks, or intimate fine-dining spots, you'll find it here. And with St. Augustine and Daytona Beach less than 40 minutes away, you can enjoy true coastal living with endless day-trip options. This home doesn't just offer a place to stay... it offers a lifestyle. A vibe. A feeling. The Florida dream wrapped in one perfect, move-in-ready package.

Локация

Факты и особенности

Тип:
Residential
Парковка:
Нет данных
Год постройки:
1974
Лот:
9.05 Акров
Отопление:
Central / Electric
Цена/кв.фут:
$253
Охлаждение:
Central Air
HOA:
$780
Больше фактов и особенностей
  • Напольное покрытие

    • Luxury Vinyl

    Отопление

    • Central

    • Electric

    Охлаждение

    • Central Air

    Бытовая техника

    • Dishwasher

    • Electric Water Heater

    • Microwave

    • Range

    • Refrigerator

    Другие особенности интерьера

    • Built-in Features

    • Ceiling Fan(s)

    • Living Room/Dining Room Combo

    Спальни и ванные комнаты

    • Спальни: 2

    • Полные ванные комнаты: 2

  • Имущество

    • Этажи: Two

    • Особенности Экстерьера: Other

    Лот

    • Лот: 9.05 Акров

    Другая Информация о Недвижимости

    • Номер Земельного Участка: 223101010670

    • Зонирование: PUD

  • Тип и стиль

    • Тип недвижимости: Residential

    • Подтип недвижимости: Condominium

  • Общественное благосостояние

    • Cable Connected

    • Electricity Connected

    • Sewer Connected

    • Water Connected

  • Другая финансовая информация

    • HOA: $780

    • Частота HOA: Monthly

    • Годовая сумма налога: $3,654

  • Детали источника

    • MLS ID: V4946086

    Другие факты

    • Строительные материалы: Block / Concrete / Stucco / Wood Frame

    • Детали фундамента: Slab

    • Особенности прачечной: In Garage

    • Направленные лица: South

    • Мест в гараже: 1

    • Прикрепленный гараж: Да

    • Гараж: Да

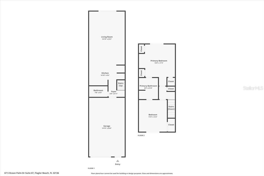
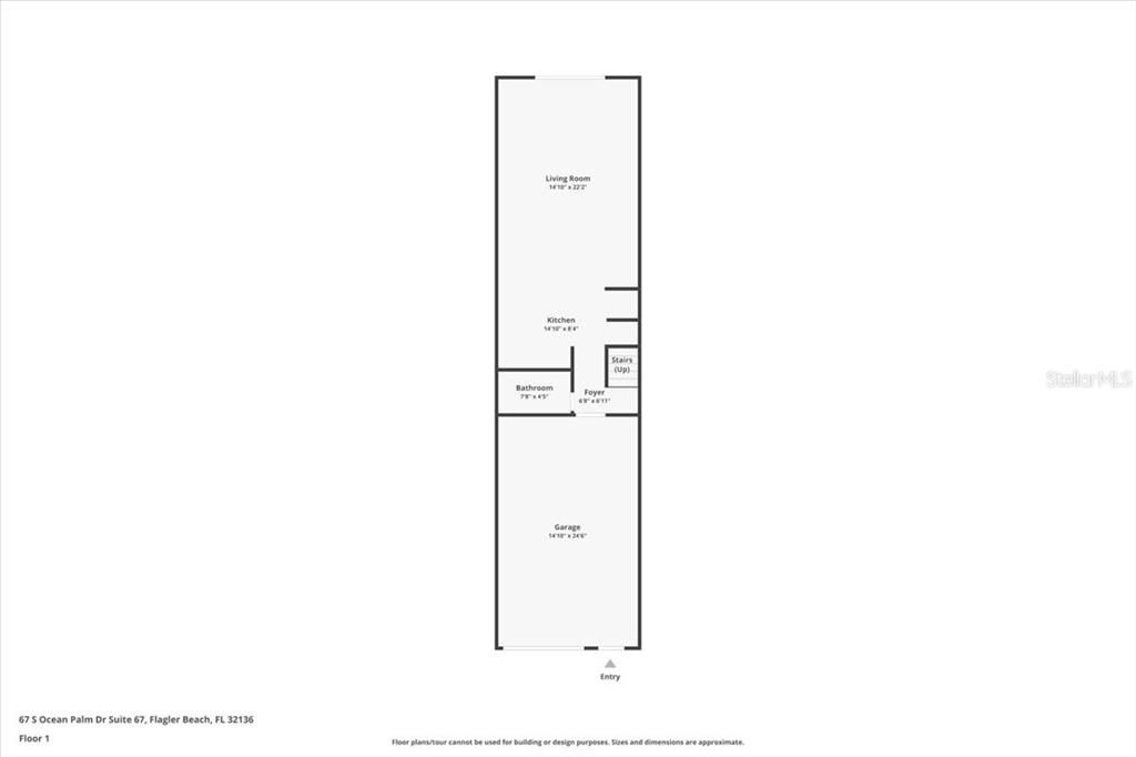
    • Жилая площадь: 1184

    • Источник воды: Public

    • Название подразделения: OCEAN PALM VILLAS SOUTH

Похожие дома

N OCEAN BOULEVARD placeholder N OCEAN BOULEVARD
14 Дней
На продажу
Участки / Земля
$350,000
0 room(s)
N OCEAN BOULEVARD
CREEK BLUFF RUN placeholder CREEK BLUFF RUN
17 Дней
На продажу
Участки / Земля
$289,000
0 room(s)
CREEK BLUFF RUN
3510 S OCEAN SHORE BOULEVARD UNIT 109 placeholder 3510 S OCEAN SHORE BOULEVARD UNIT 109
24 Дней
На продажу
Квартира
$369,000
2 спален 2 ванн 1,107 кв.фт.
3510 S OCEAN SHORE BOULEVARD UNIT 109
3900 S OCEAN SHORE BOULEVARD UNIT 5 placeholder 3900 S OCEAN SHORE BOULEVARD UNIT 5
29 Дней
На продажу
Квартира
$379,900
2 спален 2 ванн 1,184 кв.фт.
3900 S OCEAN SHORE BOULEVARD UNIT 5
3600 S OCEAN SHORE BOULEVARD UNIT 423 placeholder 3600 S OCEAN SHORE BOULEVARD UNIT 423
+$20K (2025/10/29)
На продажу
Квартира
$289,900
1 спален 1 ванн 693 кв.фт.
3600 S OCEAN SHORE BOULEVARD UNIT 423
10 OCEAN PALM VILLA N UNIT 10 placeholder 10 OCEAN PALM VILLA N UNIT 10
46 Дней
На продажу
Квартира
$279,900
2 спален 2 ванн 1,184 кв.фт.
10 OCEAN PALM VILLA N UNIT 10
1313 RUNABY LANE placeholder 1313 RUNABY LANE
51 Дней
На продажу
Дом
$385,000
3 спален 2 ванн 1,810 кв.фт.
1313 RUNABY LANE
3580 S OCEAN SHORE BOULEVARD UNIT 509 placeholder 3580 S OCEAN SHORE BOULEVARD UNIT 509
56 Дней
На продажу
Квартира
$369,000
2 спален 2 ванн 1,358 кв.фт.
3580 S OCEAN SHORE BOULEVARD UNIT 509

The multiple listing information is provided by the Stellar MLS from a copyrighted compilation of listings. The compilation of listings and each individual listing are ©2025-present Stellar MLS. All Rights Reserved. The information provided is for consumers' personal, noncommercial use and may not be used for any purpose other than to identify prospective properties consumers may be interested in purchasing. All properties are subject to prior sale or withdrawal. All information provided is deemed reliable but is not guaranteed accurate, and should be independently verified. Listing courtesy of: SIMPLY REAL ESTATE