Недвижимость
Ознакомьтесь с нашими объявлениями
Контакты
Расскажите нам о своих потребностях

901 S ATLANTIC AVENUE UNIT 3

Квартира На продажу
$699,000

BTC: 8.04835924

ETH: 349.50000000

262 Дней
Набережная
4 спален
4 ванн
2,790 кв.фт.
Est. Предполагаемый диапазон продаж: $0 - $0
$0

Обзор

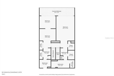
Welcome to the only 4-bedroom, 3-story penthouse available in the Aliki Atrium — a one-of-a-kind coastal escape where every detail was designed with comfort, luxury, and lifestyle in mind. From the moment you arrive, this home makes a statement. The lush, garden-style atrium welcomes you with the peaceful sound of water and vibrant greenery, creating a serene first impression. Step inside the penthouse, and it’s impossible to ignore the view — floor-to-ceiling glass draws your eyes straight to the horizon, where the Atlantic Ocean meets the sky. The first floor is made for gathering. The open kitchen features stone countertops, a closet pantry, and a laundry room tucked just off the side — keeping everything organized and out of sight. Cook dinner while the sun sets, serve guests in the spacious dining area, or curl up in the living room as you listen to the waves from the private balcony just beyond the glass doors. Upstairs, each of the four bedrooms offers its own private escape — each with an en-suite bathroom, walk-in closets, and its own oceanfront balcony. Whether it's morning coffee, a sunset glass of wine, or just a moment to breathe in the salty air — you’ll find yourself gravitating to the balconies every chance you get. And the lifestyle? It’s just as elevated. Swim in the heated oceanfront pool, stroll across the sand just steps away, or grab a bite next door at Riptides Bar & Grill. With two covered parking spots (plus built-in storage) and guest parking with pool access, hosting family and friends is a breeze. And when you need to run errands or grab a quick bite, Publix and Belair Plaza are just minutes away. This is more than a condo — this is a rare opportunity to live at the top, with three full floors of space, privacy, and unforgettable views that make every day feel like a getaway.

Локация

Факты и особенности

Тип:
Residential
Парковка:
Covered / Guest
Год постройки:
1980
Лот:
2.84 Акров
Отопление:
Central
Цена/кв.фут:
$251
Охлаждение:
Central Air
HOA:
$1,525
Больше фактов и особенностей
  • Напольное покрытие

    • Carpet

    • Tile

    Отопление

    • Central

    Охлаждение

    • Central Air

    Бытовая техника

    • Dishwasher

    • Dryer

    • Microwave

    • Range

    • Refrigerator

    • Washer

    Другие особенности интерьера

    • Ceiling Fan(s)

    • Living Room/Dining Room Combo

    • PrimaryBedroom Upstairs

    • Stone Counters

    • Walk-In Closet(s)

    • Window Treatments

    Спальни и ванные комнаты

    • Спальни: 4

    • Ванные: 1

    • Полные ванные комнаты: 4

  • Парковка

    • Covered

    • Guest

    Имущество

    • Этажи: Three Or More

    • Частный Бассейн: Да

    • Особенности Экстерьера: Balcony / Courtyard / Hurricane Shutters / Lighting / Sidewalk / Sliding Doors

    Лот

    • Лот: 2.84 Акров

    Другая Информация о Недвижимости

    • Номер Земельного Участка: 422403003030

    • Зонирование: RESI

  • Тип и стиль

    • Тип недвижимости: Residential

    • Подтип недвижимости: Condominium

  • Общественное благосостояние

    • BB/HS Internet Available

    • Cable Connected

    • Electricity Connected

    • Water Connected

  • Другая финансовая информация

    • HOA: $1,525

    • Частота HOA: Monthly

    • Годовая сумма налога: $8,810

  • Детали источника

    • MLS ID: O6294912

    Другие факты

    • Строительные материалы: Block / Cement Siding / Concrete

    • Детали фундамента: Concrete Perimeter / Slab

    • Особенности камина: Electric

    • Особенности прачечной: Inside / Laundry Room

    • Особенности бассейна: Heated / In Ground

    • Направленные лица: Southwest

    • Берег: Да

    • Камин: Да

    • Мест в гараже: 2

    • Прикрепленный гараж: Да

    • Гараж: Да

    • Жилая площадь: 2790

    • Источник воды: Public

    • Название подразделения: ALIKI ATRIUM CONDO

Похожие дома

350 N ATLANTIC AVENUE UNIT 2330 placeholder 350 N ATLANTIC AVENUE UNIT 2330
2 Дней
На продажу
$549,000
2 спален 2 ванн 1,494 кв.фт.
350 N ATLANTIC AVENUE UNIT 2330
 placeholder
2 Дней
На продажу
Дом
$540,000
5 спален 2 ванн 2,520 кв.фт.
1 JOHN ANDERSON DRIVE UNIT 604 placeholder 1 JOHN ANDERSON DRIVE UNIT 604
23 Дней
На продажу
Квартира
$565,000
3 спален 3 ванн 2,440 кв.фт.
1 JOHN ANDERSON DRIVE UNIT 604
130 HERNANDEZ AVENUE placeholder 130 HERNANDEZ AVENUE
+$60K (2025/11/22)
На продажу
Дом
$739,999
3 спален 2 ванн 2,292 кв.фт.
130 HERNANDEZ AVENUE
395 S ATLANTIC AVENUE UNIT 501 placeholder 395 S ATLANTIC AVENUE UNIT 501
28 Дней
На продажу
Квартира
$529,000
3 спален 2 ванн 2,082 кв.фт.
395 S ATLANTIC AVENUE UNIT 501
529 RIDGEWOOD AVENUE placeholder 529 RIDGEWOOD AVENUE
29 Дней
На продажу
Коммерческий
$899,900
0 room(s) 7,172 кв.фт.
529 RIDGEWOOD AVENUE
231 RIVERSIDE DRIVE UNIT 102 placeholder 231 RIVERSIDE DRIVE UNIT 102
31 Дней
На продажу
Квартира
$725,000
3 спален 3 ванн 2,239 кв.фт.
231 RIVERSIDE DRIVE UNIT 102
169 VALENCIA DRIVE placeholder 169 VALENCIA DRIVE
-$15K (2025/12/08)
На продажу
Дом
$634,000
4 спален 3 ванн 2,574 кв.фт.
169 VALENCIA DRIVE

The multiple listing information is provided by the Stellar MLS from a copyrighted compilation of listings. The compilation of listings and each individual listing are ©2025-present Stellar MLS. All Rights Reserved. The information provided is for consumers' personal, noncommercial use and may not be used for any purpose other than to identify prospective properties consumers may be interested in purchasing. All properties are subject to prior sale or withdrawal. All information provided is deemed reliable but is not guaranteed accurate, and should be independently verified. Listing courtesy of: OCEANS LUXURY REALTY FULL SVC