Недвижимость
Ознакомьтесь с нашими объявлениями
Контакты
Расскажите нам о своих потребностях

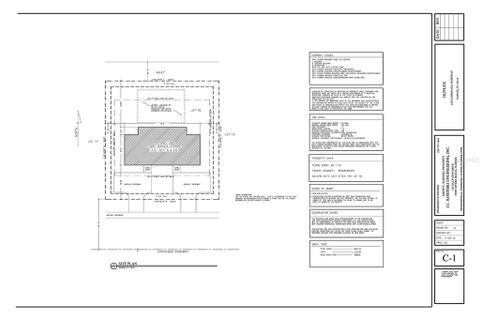
5255 CORONADO PARKWAY

Многосемейный На продажу
$825,000

BTC: 13.03317536

ETH: 434.21052632

-$100K (2025/12/05)
279 Дней
6 спален
2,667 кв.фт.
Est. Предполагаемый диапазон продаж: $0 - $0
$0

Обзор

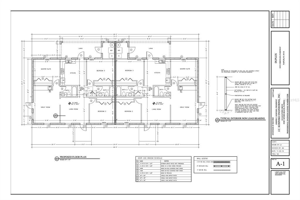
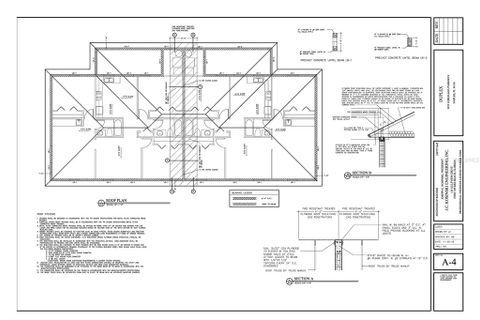
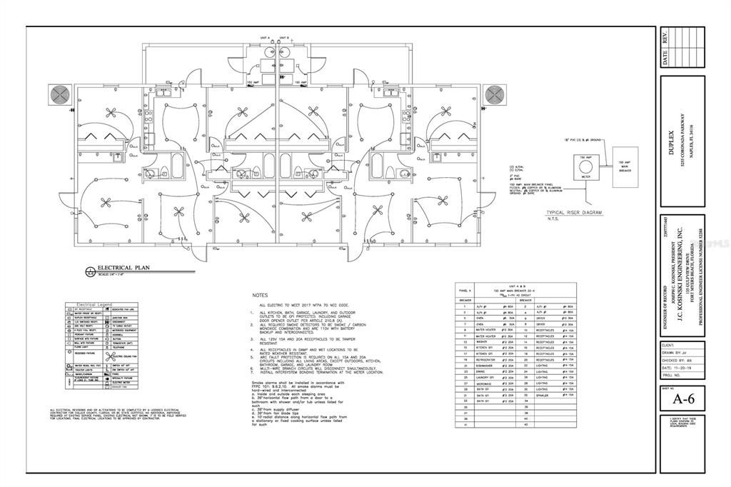
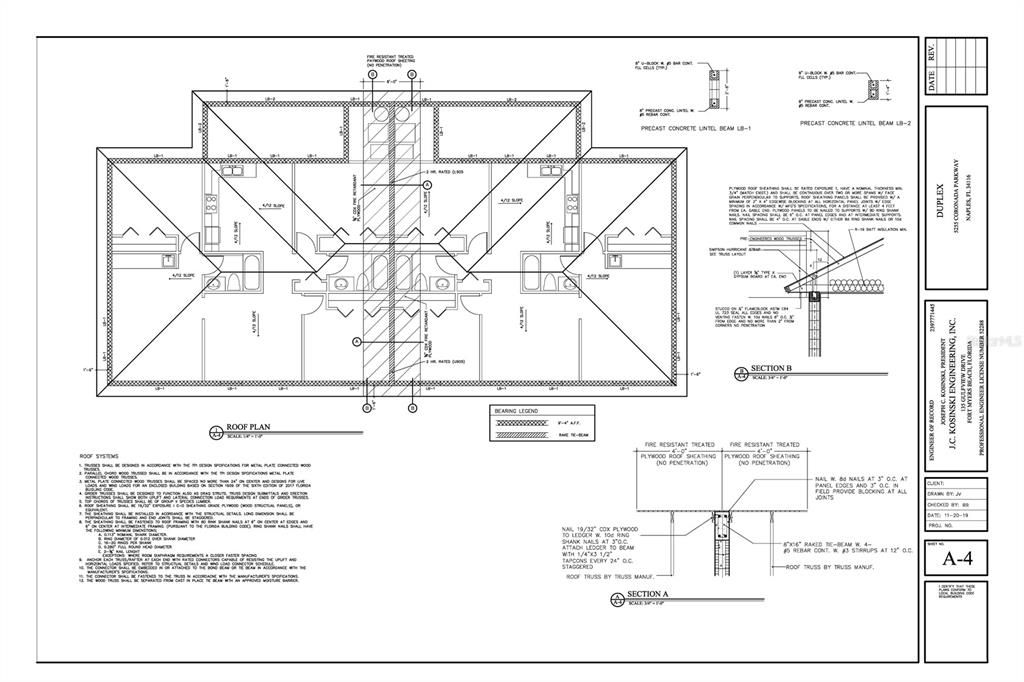
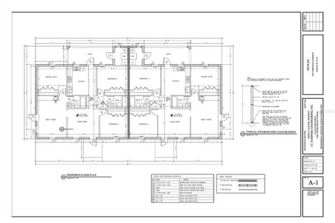
Asking Price Has Been Further REDUCED ($165,000 from original list price) * Bring Your Offer Today * Updated Completion Date Below * Photos were updated 12/10/2025 * Make Sure to Compare this Income Property with Identical Floorplan Closed Sale (Sold) Comparable: SWFLA MLS 224049094 to help see the value in this Price Reduced Duplex / Quadruplex located at 5255 Coronado Pkwy, Naples, FL 34116, perfectly positioned just off Santa Barbara Blvd in Golden Gate City. This Upgraded New Construction (6 bed 4 bath) Three Bed Two Bath Duplex (each side) with a Laundry Room (each side) which can be used as 4 different units but is technically a Duplex with a total of 2,667 sq ft, Vinyl Plank Flooring throughout, Upgraded PGT Impact Windows and Colored Metal Roof in one of Naples / Collier County Hottest Markets. This unit, currently Under Construction with roof, stucco, drywall, bathrooms, etc complete, has a Total of Six Bedrooms and Four Bathrooms to offer a new owner many different possibilities, on a 0.34 acre lot 120 ft wide x 125 feet deep with an AH flood zone rating. This investment property is located close to everything for its occupants to fully enjoy the Desirable Southwest Florida Lifestyle. Florida Living at its best here on the Gulf of America for its residents to be able to enjoy all of the areas amenities, attractions and desirable lifestyle. This Investment Type Home for sale is suitable to Live in / Work from Home on one side and rent the other side; or Rent Both sides where there is additional flexibility due to its unique “Fourplex Floorplan Design”, all without HOA fees and condo commandoes. Property is offered $150,000 under appraised value, $975,000 appraisal is on hand, please feel free to ask. 5301 Coronado Pkwy just down the street, built in 2017 with the same floorplan but not with the same upgrades / specifications; MLS: 224049094 Sold / Closed on 11/27/2024 for $875,000. Then allow / adjust for upgraded Metal Roof, etc for brand new 5255 Coronado Pkwy. Please Note, for rental income we have a rental income projections sheet available from a local rental specialist. Estimated Monthly Rent: $3,225 per month, per side = $6,450 per month combined. Floorplans, Features Sheet, Appraisal, Disclosures and Rental Income Projections Sheet are available. (Driveways, Metal Roof, Stucco, Drywall, Floor Tile, Showers/baths are complete) 12/10/2025 Update: Seller plans to have all construction finished including driveways, kitchen and a/c with CO issued by end of December 2025. There is a Yard Sign to help locate. HT232.

Локация

Факты и особенности

Тип:
Residential Income
Парковка:
Driveway / Other / Parking Pad
Год постройки:
2025
Лот:
0.34 Акров
Отопление:
Central / Electric
Цена/кв.фут:
$309
Охлаждение:
Central Air
HOA:
Нет данных
Больше фактов и особенностей
  • Отопление

    • Central

    • Electric

    Охлаждение

    • Central Air

    Бытовая техника

    • Dishwasher

    • Electric Water Heater

    • Microwave

    • Range

    • Refrigerator

    Другие особенности интерьера

    • Built-in Features

    Спальни и ванные комнаты

    • Спальни: 6

  • Парковка

    • Driveway

    • Other

    • Parking Pad

    Имущество

    • Особенности Экстерьера: Garden / Other / Private Mailbox / Sidewalk

    Лот

    • Лот: 0.34 Акров

    Другая Информация о Недвижимости

    • Номер Земельного Участка: 36308160001

    • Зонирование: RMF-12

  • Тип и стиль

    • Тип недвижимости: Residential Income

    • Подтип недвижимости: Duplex

  • Общественное благосостояние

    • Cable Available

    • Electricity Connected

    • Fire Hydrant

    • Underground Utilities

    • Water Connected

  • Другая финансовая информация

    • Годовая сумма налога: $1,933

  • Детали источника

    • MLS ID: G5095238

    Другие факты

    • Строительные материалы: Stucco

    • Детали фундамента: Slab

    • Особенности прачечной: Laundry Room

    • Особенности лота: In County / Level

    • Особенности двора и крыльца: Rear Porch

    • Особенности окна: Storm Window(s)

    • Жилая площадь: 2667

    • Источник воды: Public / See Remarks

    • Название подразделения: GOLDEN GATE CITY

Похожие дома

3440 19th Ave SW, Other City - In The State Of Florida FL 34117 placeholder 3440 19th Ave SW, Other City - In The State Of Florida FL 34117
12 Дней
На продажу
Дом
$700,000
3 спален 2 ванн 1,969 кв.фт.
3440 19th Ave SW, Other City - In The State Of Florida FL 34117
6631 Middlesex PL, Other City - In The State Of Florida FL 34104 placeholder 6631 Middlesex PL, Other City - In The State Of Florida FL 34104
92 Дней
На продажу
Дом
$700,000
2 спален 2 ванн 1,519 кв.фт.
6631 Middlesex PL, Other City - In The State Of Florida FL 34104

The multiple listing information is provided by the Stellar MLS from a copyrighted compilation of listings. The compilation of listings and each individual listing are ©2026-present Stellar MLS. All Rights Reserved. The information provided is for consumers' personal, noncommercial use and may not be used for any purpose other than to identify prospective properties consumers may be interested in purchasing. All properties are subject to prior sale or withdrawal. All information provided is deemed reliable but is not guaranteed accurate, and should be independently verified. Listing courtesy of: 239REALESTATEDEALS.COM LLC