Недвижимость
Ознакомьтесь с нашими объявлениями
Контакты
Расскажите нам о своих потребностях

861 28TH AVENUE N

Многосемейный Под контрактом
$675,000

BTC: 7.81702374

ETH: 230.69036227

20 Дней
3 спален
1,608 кв.фт.
Est. Предполагаемый диапазон продаж: $0 - $0
$0

Обзор

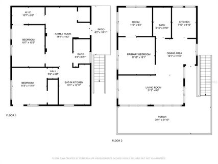
Under contract-accepting backup offers. Non Flood Zone. Non Evacuation Zone. High and Dry. Situated in the desirable Crescent Heights neighborhood, this turn-key, DUPLEX offers an exceptional investment or house-hacking opportunity. Live in the vacant downstairs unit while the tenant upstairs contributes to your mortgage payments. Recently updated, this property combines classic Florida charm with modern conveniences, featuring new kitchens, bathrooms, and stackable washer/dryers in each unit. Key updates include complete rewiring in 2018 with new electrical panels, energy-efficient HVAC mini-split units, tankless water heaters, and re-plumbing—all completed in 2018, with the roof replaced in 2015. The duplex includes: - **Upstairs Unit**: A bright one-bedroom with a spacious walk-in closet, stackable washer/dryer, updated bathroom with elegant marble shower, and an open-concept kitchen, dining, and living area. Enjoy the natural light from wall-to-wall windows and relax on the wrap-around second-story balcony. Vacant. - **Downstairs Unit**: This beautifully remodeled two-bedroom unit features a walk-in closet with stackable washer/dryer, updated bathroom, and a kitchen with marble countertops, stainless steel appliances, and a marble backsplash. Previously rented at $2,400 per month, it’s currently ready for occupancy. Vacant. Nestled on a spacious 6,368 square foot lot, the property offers a private yard shaded by Lychee and Oak trees, a large second-story deck, and convenient alley access. Just minutes from Downtown St. Petersburg and a short distance to Crescent Lake Park, this gem is perfectly located for enjoying parks, shops, and the Gulf Beaches just 15 minutes away.

Локация

Факты и особенности

Тип:
Residential Income
Парковка:
Нет данных
Год постройки:
1927
Лот:
0.15 Акров
Отопление:
Electric
Цена/кв.фут:
$420
Охлаждение:
Mini-Split Unit(s)
HOA:
Нет данных
Больше фактов и особенностей
  • Отопление

    • Electric

    Охлаждение

    • Mini-Split Unit(s)

    Бытовая техника

    • Dishwasher

    • Dryer

    • Microwave

    • Refrigerator

    • Washer

    Другие особенности интерьера

    • Ceiling Fan(s)

    • Stone Counters

    • Walk-In Closet(s)

    • Window Treatments

    Спальни и ванные комнаты

    • Спальни: 3

  • Имущество

    • Особенности Экстерьера: Balcony

    Лот

    • Лот: 0.15 Акров

    Другая Информация о Недвижимости

    • Номер Земельного Участка: 073117283320000930

  • Тип и стиль

    • Тип недвижимости: Residential Income

    • Подтип недвижимости: Duplex

  • Общественное благосостояние

    • Cable Connected

    • Electricity Connected

    • Sewer Connected

    • Water Connected

  • Другая финансовая информация

    • Годовая сумма налога: $11,477

  • Детали источника

    • MLS ID: TB8418832

    Другие факты

    • Строительные материалы: Asbestos / Wood Frame

    • Детали фундамента: Slab

    • Особенности прачечной: Inside / Same Floor As Condo Unit

    • Жилая площадь: 1608

    • Источник воды: Public

    • Размеры участка: 50 x 127

    • Название подразделения: FLORIDA HEIGHTS

Похожие дома

2742 5TH AVENUE S UNIT 10 placeholder 2742 5TH AVENUE S UNIT 10
Новое
Под контрактом
Таунхаус
$675,000
3 спален 3 ванн 2,079 кв.фт.
2742 5TH AVENUE S UNIT 10
535 MONTEREY BOULEVARD NE placeholder 535 MONTEREY BOULEVARD NE
Новое
Под контрактом
Многосемейный
$625,000
0 room(s) 2,796 кв.фт.
535 MONTEREY BOULEVARD NE
600 3RD AVENUE S UNIT 209 placeholder 600 3RD AVENUE S UNIT 209
1 Дней
Под контрактом
Квартира
$589,500
2 спален 2 ванн 1,158 кв.фт.
600 3RD AVENUE S UNIT 209
3641 50TH AVENUE N placeholder 3641 50TH AVENUE N
1 Дней
Под контрактом
Дом
$534,000
3 спален 2 ванн 1,477 кв.фт.
3641 50TH AVENUE N
1085 16TH AVENUE N placeholder 1085 16TH AVENUE N
3 Дней
Под контрактом
Дом
$585,000
2 спален 1 ванн 984 кв.фт.
1085 16TH AVENUE N
2101 BURLINGTON AVENUE N placeholder 2101 BURLINGTON AVENUE N
+$10K (2025/12/01)
Под контрактом
Дом
$790,000
3 спален 2 ванн 1,618 кв.фт.
2101 BURLINGTON AVENUE N
745 48TH AVENUE N placeholder 745 48TH AVENUE N
5 Дней
Под контрактом
Дом
$519,900
3 спален 2 ванн 2,220 кв.фт.
745 48TH AVENUE N
3018 JACKSON STREET N placeholder 3018 JACKSON STREET N
5 Дней
Под контрактом
Дом
$600,000
3 спален 2 ванн 1,591 кв.фт.
3018 JACKSON STREET N

The multiple listing information is provided by the Stellar MLS from a copyrighted compilation of listings. The compilation of listings and each individual listing are ©2025-present Stellar MLS. All Rights Reserved. The information provided is for consumers' personal, noncommercial use and may not be used for any purpose other than to identify prospective properties consumers may be interested in purchasing. All properties are subject to prior sale or withdrawal. All information provided is deemed reliable but is not guaranteed accurate, and should be independently verified. Listing courtesy of: COMPASS FLORIDA LLC