Недвижимость
Ознакомьтесь с нашими объявлениями
Контакты
Расскажите нам о своих потребностях

1308 WOODLAWN AVE

На продажу
$95,000

BTC: 1.05561526

ETH: 31.14754098

-$34K (2026/01/04)
157 Дней
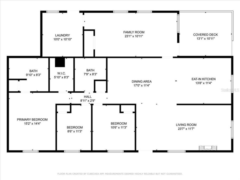
3 спален
2 ванн
1,581 кв.фт.
Est. Предполагаемый диапазон продаж: $0 - $0
$0

Обзор

Yes, you read that right — just $95,000 for this spacious 3-bedroom, 2-bath manufactured home with over 1,500 square feet of living space and 100% land ownership! Seller is motivated! Seller open to seller financing up to 50%. Step into a bright, open kitchen with nearly new appliances (less than a year old), a large indoor laundry room, and a cozy covered front patio. Mature landscaping offers wonderful privacy along one side of the home. Major updates include a 3-year-young roof and a 2-year-old hot water heater. Plus, the backyard shed sits on a poured concrete slab for added stability and utility. No lot rent. No HOA. No deed restrictions. This means you can use your property however you choose — live in it full-time, rent it out seasonally or annually, or turn it into an Airbnb investment. Bring your RV, boat, kayaks, or other toys — there’s plenty of space! Want to add a second shed, an art studio, trampoline, or even a treehouse? Go for it — the freedom is yours in this flexible Charlotte County neighborhood. Located in charming Punta Gorda, you’re close to shopping, dining, and just minutes to I-75. Call today for your private showing!

Локация

Факты и особенности

Тип:
Residential
Парковка:
Нет данных
Год постройки:
1980
Лот:
0.13 Акров
Отопление:
Electric
Цена/кв.фут:
$60
Охлаждение:
Central Air
HOA:
Нет данных
Больше фактов и особенностей
  • Напольное покрытие

    • Luxury Vinyl

    Отопление

    • Electric

    Охлаждение

    • Central Air

    Бытовая техника

    • Dishwasher

    • Microwave

    • Range

    • Refrigerator

    Другие особенности интерьера

    • Ceiling Fan(s)

    Спальни и ванные комнаты

    • Спальни: 3

    • Полные ванные комнаты: 2

  • Имущество

    • Этажи: One

    • Особенности Экстерьера: Awning(s) / Storage

    Лот

    • Лот: 0.13 Акров

    Другая Информация о Недвижимости

    • Номер Земельного Участка: 412308376012

    • Зонирование: MHC

  • Тип и стиль

    • Тип недвижимости: Residential

    • Подтип недвижимости: Manufactured Home

  • Общественное благосостояние

    • Public

  • Другая финансовая информация

    • Годовая сумма налога: $1,976

  • Детали источника

    • MLS ID: C7513066

    Другие факты

    • Строительные материалы: Vinyl Siding

    • Детали фундамента: Crawlspace

    • Особенности прачечной: Inside / Laundry Room

    • Особенности лота: Cleared

    • Особенности двора и крыльца: Covered / Front Porch / Patio

    • Направленные лица: South

    • Другие структуры: Shed(s) / Storage

    • Жилая площадь: 1581

    • Источник воды: Public

    • Название подразделения: PINECREST

Похожие дома

5601 DUNCAN # 125 placeholder 5601 DUNCAN # 125
Новое
На продажу
$77,777
2 спален 2 ванн 1,368 кв.фт.
5601 DUNCAN # 125
623 FITZHUGH AVENUE placeholder 623 FITZHUGH AVENUE
Новое
На продажу
Участки / Земля
$82,000
0 room(s)
623 FITZHUGH AVENUE
627 MONACO DRIVE placeholder 627 MONACO DRIVE
6 Дней
На продажу
Участки / Земля
$114,900
0 room(s)
627 MONACO DRIVE
1535 ATARES DRIVE placeholder 1535 ATARES DRIVE
15 Дней
На продажу
Участки / Земля
$99,900
0 room(s)
1535 ATARES DRIVE
1432 CORAL RIDGE DRIVE placeholder 1432 CORAL RIDGE DRIVE
19 Дней
На продажу
Дом
$99,000
2 спален 1 ванн 648 кв.фт.
1432 CORAL RIDGE DRIVE
10101 BURNT STORE ROAD UNIT 41 placeholder 10101 BURNT STORE ROAD UNIT 41
29 Дней
На продажу
$95,000
2 спален 2 ванн 1,196 кв.фт.
10101 BURNT STORE ROAD UNIT 41
10101 BURNT STORE ROAD UNIT 54 placeholder 10101 BURNT STORE ROAD UNIT 54
29 Дней
На продажу
$105,000
2 спален 2 ванн 1,170 кв.фт.
10101 BURNT STORE ROAD UNIT 54
26430 PEACHLAND LANE placeholder 26430 PEACHLAND LANE
34 Дней
На продажу
Участки / Земля
$95,000
0 room(s)
26430 PEACHLAND LANE

The multiple listing information is provided by the Stellar MLS from a copyrighted compilation of listings. The compilation of listings and each individual listing are ©2026-present Stellar MLS. All Rights Reserved. The information provided is for consumers' personal, noncommercial use and may not be used for any purpose other than to identify prospective properties consumers may be interested in purchasing. All properties are subject to prior sale or withdrawal. All information provided is deemed reliable but is not guaranteed accurate, and should be independently verified. Listing courtesy of: RE/MAX PALM REALTY