Недвижимость
Ознакомьтесь с нашими объявлениями
Контакты
Расскажите нам о своих потребностях

3023 BAMBOO COURT

Под контрактом
$315,000

BTC: 4.50000000

ETH: 153.28467153

-$80K (2025/12/21)
107 Дней
Набережная
3 спален
2 ванн
1,800 кв.фт.
Est. Предполагаемый диапазон продаж: $0 - $0
$0

Обзор

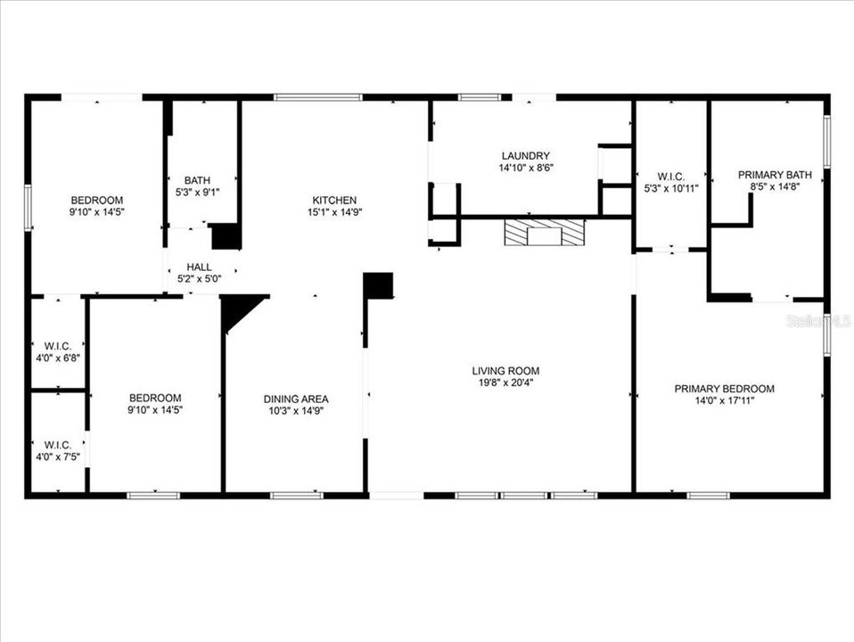
OWNER MOTIVATED - Beautiful 2005 Palm Harbor Pool Home on Saltwater Canal – 150 Ft. of Frontage! Welcome to this 3-bedroom, 2-bath, 1,800 sq. ft. pool home perfectly positioned on a wide saltwater canal with direct access to Charlotte Harbor and the Gulf of Mexico. Nestled off Aqui Esta among other beautiful homes, this property combines charm, function, and Florida lifestyle living. No flooding in the home from recent hurricanes! Built with quality in mind, the home features 3/4-inch plywood wrap on the roof, walls, and floor, a durable metal roof, and hurricane shutters for added strength, protection, and peace of mind. Set on two lots totaling 0.59 acres, this residence offers both space and versatility. Boating enthusiasts will appreciate the private wood dock and boat ramp, making this a true fisherman’s dream. Additional exterior highlights include a circular driveway, covered carport and a large storage shed. Step inside to a warm and inviting open floor plan, enhanced by luxury vinyl plank flooring, neutral tones, and tasteful accents. The cozy electric fireplace with a custom mantle creates a welcoming focal point, while the ceiling fan and breakfast bar with seating add comfort and convenience. An adjacent dining area with pendant lighting provides the perfect setting for family gatherings or entertaining. The bright, functional kitchen is designed with wood cabinetry, ample counter space, a center island with seating, and a suite of stainless-steel appliances. A large window above the sink brings in natural light, while the open layout flows seamlessly to the living and dining areas. Just off the kitchen, the laundry room offers extra storage and everyday practicality. The spacious primary suite features a large walk-in closet and a well-appointed en-suite bath with dual vanities, soaking tub, and separate shower. Two additional guest bedrooms—one with sliding doors to the lanai—also feature walk-in closets and share a full bathroom. Outdoor living shines in this tropical retreat, complete with a sparkling pool with new pool pump, flagstone decking, screened lanai, and a sturdy Bamboo Tiki Hut with summer kitchen—ideal for entertaining or simply relaxing. Whether you’re fishing from your dock, swimming in the pool, or enjoying the Florida sunshine, this home truly has it all. Close to I-75/US41 and nearby to Fishermen's Village, downtown Punta Gorda shops & restaurants, airports, great boating, fishing, sailing, and more. Home is completely spotless and waiting for you. Come enjoy the Florida lifestyle in this impressive home! **PLEASE ENJOY THE 3D INTERACTIVE VIRTUAL TOUR ASSOCIATED WITH THIS LISTING**

Локация

Факты и особенности

Тип:
Residential
Парковка:
Boat / Circular Driveway / Covered / Driveway / Off Street / Oversized / RV Parking
Год постройки:
2005
Лот:
0.39 Акров
Отопление:
Central
Цена/кв.фут:
$175
Охлаждение:
Central Air
HOA:
Нет данных
Больше фактов и особенностей
  • Напольное покрытие

    • Luxury Vinyl

    Отопление

    • Central

    Охлаждение

    • Central Air

    Бытовая техника

    • Dishwasher

    • Dryer

    • Kitchen Reverse Osmosis System

    • Microwave

    • Range

    • Refrigerator

    • Washer

    Другие особенности интерьера

    • Built-in Features

    • Ceiling Fan(s)

    • Crown Molding

    • Eating Space In Kitchen

    • High Ceilings

    • Living Room/Dining Room Combo

    • Open Floorplan

    • Primary Bedroom Main Floor

    • Split Bedroom

    • Thermostat

    • Walk-In Closet(s)

    Спальни и ванные комнаты

    • Спальни: 3

    • Полные ванные комнаты: 2

  • Парковка

    • Boat

    • Circular Driveway

    • Covered

    • Driveway

    • Off Street

    • Oversized

    • RV Parking

    Имущество

    • Этажи: One

    • Частный Бассейн: Да

    • Особенности Экстерьера: Hurricane Shutters / Outdoor Grill / Private Mailbox / Rain Gutters / Sliding Doors / Storage

    Лот

    • Лот: 0.39 Акров

    Другая Информация о Недвижимости

    • Номер Земельного Участка: 412213284004

    • Зонирование: MHC

  • Тип и стиль

    • Тип недвижимости: Residential

    • Подтип недвижимости: Manufactured Home

  • Общественное благосостояние

    • Cable Available

    • Electricity Available

    • Electricity Connected

  • Другая финансовая информация

    • Годовая сумма налога: $4,929

  • Детали источника

    • MLS ID: C7514844

    Другие факты

    • Строительные материалы: Metal Siding

    • Детали фундамента: Stilt/On Piling

    • Особенности камина: Electric / Living Room / Non Wood Burning

    • Особенности прачечной: Electric Dryer Hookup / Inside / Laundry Room / Washer Hookup

    • Особенности лота: Cleared / Cul-De-Sac / FloodZone / Oversized Lot / Street Dead-End

    • Особенности двора и крыльца: Rear Porch / Screened

    • Особенности бассейна: Fiberglass / In Ground / Screen Enclosure

    • Особенности окна: Blinds

    • Направленные лица: West

    • Другие структуры: Gazebo / Shed(s) / Storage

    • Берег: Да

    • Камин: Да

    • Жилая площадь: 1800

    • Источник воды: Public

    • Размеры участка: 151 x 114

    • Название подразделения: CHAR PARK SEC2

Похожие дома

1415 COLUMBIAN DRIVE placeholder 1415 COLUMBIAN DRIVE
4 Дней
Под контрактом
Дом
$275,000
3 спален 2 ванн 1,680 кв.фт.
1415 COLUMBIAN DRIVE
442 MACEDONIA DRIVE placeholder 442 MACEDONIA DRIVE
9 Дней
Под контрактом
Дом
$399,900
3 спален 2 ванн 2,200 кв.фт.
442 MACEDONIA DRIVE
7268 MIKASA DRIVE placeholder 7268 MIKASA DRIVE
14 Дней
Под контрактом
Дом
$300,000
4 спален 2 ванн 1,846 кв.фт.
7268 MIKASA DRIVE
240 WEST END DRIVE UNIT 522 placeholder 240 WEST END DRIVE UNIT 522
-$16K (2025/12/19)
Под контрактом
Квартира
$279,000
3 спален 2 ванн 1,519 кв.фт.
240 WEST END DRIVE UNIT 522
1605 ATARES DRIVE UNIT 112 placeholder 1605 ATARES DRIVE UNIT 112
23 Дней
Под контрактом
Дом
$275,000
3 спален 2 ванн 1,622 кв.фт.
1605 ATARES DRIVE UNIT 112
5464 RIVER BAY DRIVE placeholder 5464 RIVER BAY DRIVE
24 Дней
Под контрактом
$394,000
2 спален 2 ванн 1,152 кв.фт.
5464 RIVER BAY DRIVE
1500 PARK BEACH CIRCLE UNIT 4E placeholder 1500 PARK BEACH CIRCLE UNIT 4E
-$25K (2025/12/13)
Под контрактом
Квартира
$325,000
2 спален 2 ванн 988 кв.фт.
1500 PARK BEACH CIRCLE UNIT 4E
3959 SAN ROCCO DRIVE UNIT 412 placeholder 3959 SAN ROCCO DRIVE UNIT 412
33 Дней
Под контрактом
Квартира
$234,900
3 спален 2 ванн 1,883 кв.фт.
3959 SAN ROCCO DRIVE UNIT 412

The multiple listing information is provided by the Stellar MLS from a copyrighted compilation of listings. The compilation of listings and each individual listing are ©2026-present Stellar MLS. All Rights Reserved. The information provided is for consumers' personal, noncommercial use and may not be used for any purpose other than to identify prospective properties consumers may be interested in purchasing. All properties are subject to prior sale or withdrawal. All information provided is deemed reliable but is not guaranteed accurate, and should be independently verified. Listing courtesy of: MARINA PARK REALTY LLC